Submitted by WA Contents
Cadaval & Solà-Morales' white excavated house features porous interior that expands activities
Mexico Architecture News - Nov 20, 2019 - 14:43 13555 views

Barcelona and Mexico-based architecture practice Cadaval & Solà-Morales has completed a house with big holes that help to expand the interiors spaces for different types of activities in Monterrey, Mexico.
Named Ombra House or La Casa Ombra, the 608-square-etre house acts as an entire porous building that follows the same strategy inside. All the program elements are scattered within a perfect cube that offers surprising spaces to its owners.

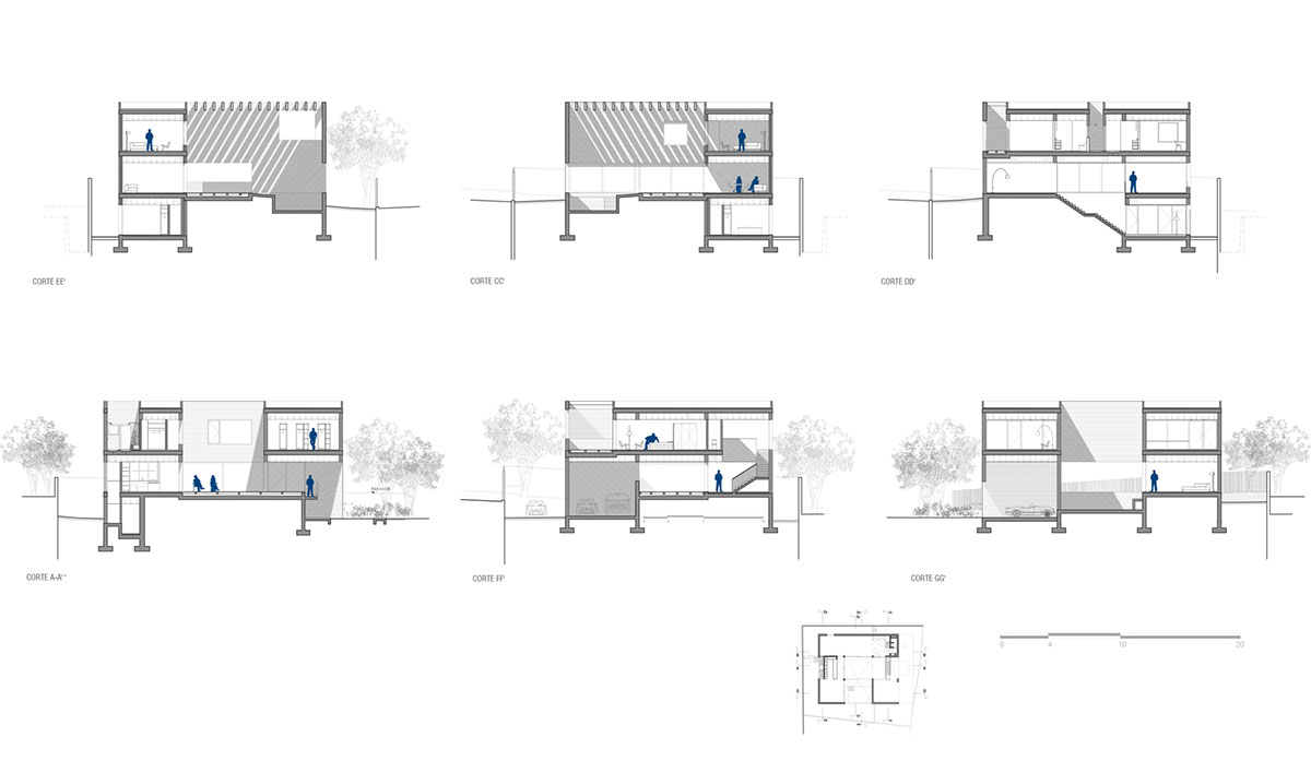
Ombra House is a white excavated cube whose mass has been subtracted to allow it to be inhabited. Terraces, visual frames, windows, and a central courtyard of double-height form the palette of perforation strategies that transgress the purity of its geometry.
The house is located in the municipality of San Pedro Garza García, in the metropolitan area of Monterrey, and is set around a central courtyard that acts as an extension of the interior spaces.

The architects designed a covered courtyard, with a pergola that allows mitigating the high solar incidence prevalent in this area of northern Mexico, but also to contain the space and provide it with a porous limit that allows the feeling of being protected in an interior space while being outside.

"Picking up the medieval European tradition, the main floor of the house is one level above street level. This gives it greater thermal comfort, but above all, it grants greater privacy and allows having bigger windows without the interior being observed from street level," said Cadaval & Solà-Morales.

The architects placed all the public uses of the house on the main floor: the living room, the dining room, the kitchen, the breakfast room and the TV room.
They are organized around the central courtyard and open towards it, building a continuum between the rooms and the pool contained between the walls of the courtyard, and opening to the adjacent garden.

Private spaces are designed on the upper floor. Three rooms and a study open through large terraces and windows to the stunning views of the Sierra Madre de Monterrey.

The ground floor contains a cinema, a playground and the service areas. Despite such an elementary programmatic organization of the different floors of the house, spatial reading is organized through a single vertical void, building an intricate cross-view that makes the void the real protagonist of the project.

The house was realized for the SorteoTEC and all the benefits obtained will go to scholarships for low-income students.





Plans

Sections

Elevations
Cadaval & Solà-Morales' X House on the skirts of Barcelona, Cebrils, is one of the key projects of the office. Cadaval & Sola-Morales renovated existing old vernacular house by using dry stone in Spain.
All images © The Raws
All drawings © Cadaval & Solà-Morales
> via Cadaval & Solà-Morales
