Submitted by WA Contents
CPD ESTUDIO completes House Francia with corten steel volume in Argentina
Argentina Architecture News - Dec 03, 2019 - 10:50 12537 views

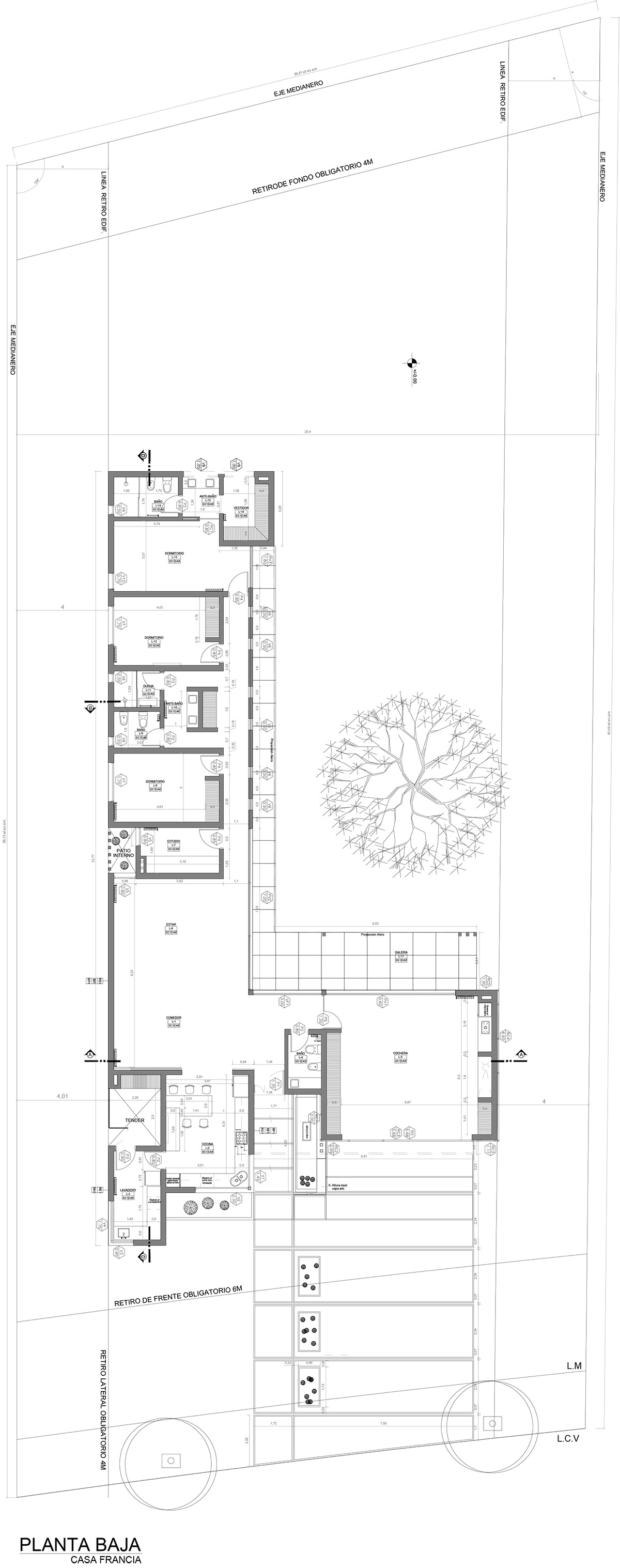
CPD ESTUDIO has completed a private residence with corten steel volume in Córdoba Capital, Argentina. Named Casa Francia or House Francia, the 260-square-metre building was designed as a low-rise structure combining different types of volumes with white and corten steel volume.

"It could not be otherwise, it had to be the project's star. We think of a house that accompanies, without competing," said CPD ESTUDIO.

The studio worked with the orientations and the location of the tree to connect them and ensure that they live respecting and empowering each other.

They created a harmonic volume, all on the ground floor. The facade with simple morphologies and contrasts of materialities. The idea was always to highlight the carob tree, but the studio could not leave it alone, so the architects combined materials and refined the details in each element that made up this composition.





















Project facts
Project Name: Casa Francia.
Name Office of Architecture: CPD ESTUDIO
Architects authors of the work: Carlos Piedrabuena Demmel - Fernando Baigorria
Location (street, commune, city, country): L09 M38 Cañuelas Country Golf, Córdoba Capital, Argentina.
Construction term year: 2019
Constructed area: (m2) 260
Construction: CPD ESTUDIO
Structural Calculation: Mattiuz Lozano Structural Advisors
Design Team: Architect Carlos Piedrabuena Demmel, Architect Fernando Baigorria, Architect Camila Rodríguez Sanz, Victoria Alfonso.
All images © Gonzalo Viramonte
> via CPD ESTUDIO
