Submitted by WA Contents
Studio Precht designs new villas with private gardens in the sky in Hyderabad
India Architecture News - Mar 25, 2019 - 02:03 33201 views

Studio Precht, led by Fei and Chris Precht, has unveiled design for a new residential compound in Hyderabad, India. The new villas reinterpret "a house with a garden" concept in verticality.
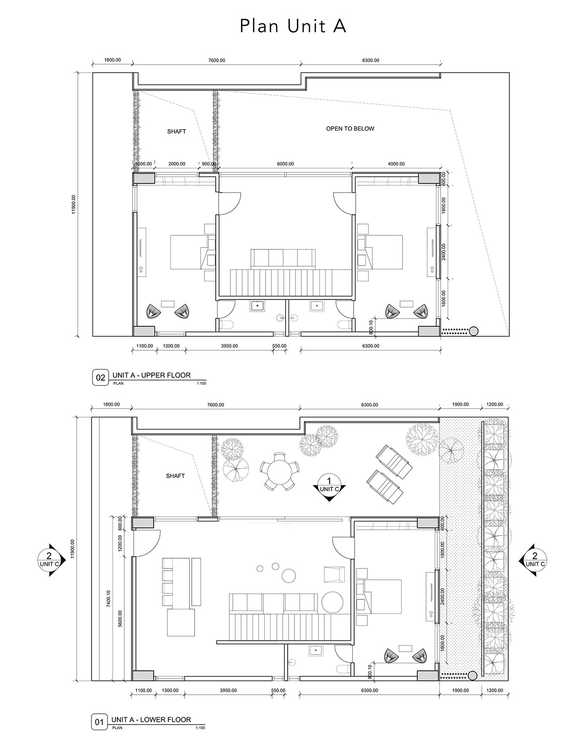
Named Magic Breeze, the new homes are developed for Pooja Crafted Homes to introduce a new type of verticality in Hyderabad. The 450,000-square-feet (41,800-square-metre) development is composed of 127 units, which are designed as duplex sky villas and range from 2,600 to 4,000 square feet (from 242 square meters to 372 square meters).

Each unit is divided from its neighbouring by a double-height, private garden of 500 square feet (46 square meters). These green in-betweens give a great sense of openness and vitality to the compound that loosens up the density a tenant would experience in a common condominium building.

The private gardens are not just designed as an organic division to their neighbouring units, but also provide a natural ventilation throughout the complex, which is a healthy alternative to common mechanical cooling.
The natural air flow circulation prevents the building from overheating and saves more than 60% of energy, which results in a lower carbon footprint for the entire development.

"For the project, we developed a modular planter system, which gets installed as an extension for the balconies of each unit. Each planter can be filled with different kinds and sizes of plants and serve as a natural border to the surrounding," said Studio Precht.
"This large area of urban gardening gives the tenants the opportunity to plant their own vegetables or herbs in their garden and gives the project a sense of a self-sustaining development. The balcony is designed as a grass-surface, which underlines the ‘private house with a garden’ typology."

For the whole compound, the architects are inspired by the rules of Vaastu, which is a traditional Hindu architectural system and describes layout, orientation or floorpan arrangements.

"Vaastu is still an important part in Indian culture and an integral element of a successful real estate development. Apart from orientation and layout principles, Vaastu also describes the importance to create architecture in harmony with nature," added the studio.
"This was of essence to create as many garden areas as possible within the compound to give back a space for nature to vertically grow on the building." Therefore nature and plants become the main design-element for the Magic Breeze Sky Villas.

For the compound, Studio Precht also designed the landscape design, which features a combination of Indian Stairwells and traditional local water-mazes. Through a redline-setback the building creates similar steps with its series of balconies as the landscape, which keeps all design-part in a coherent expression of vertical plates that are filled with plants.

The site for Magic Breeze is surrounded by a natural lake on the South/Eastern border, which is used as part of a natural irrigation system for the vegetation of the landscape design and the vertical gardens.








Site plan








Chris Precht, who is also the co-founder of Penda. Penda was founded by Chris Precht and Dayong Sun in 2013. Recently, the studio was divided into 2 studios that work independent from each other. Chris Precht and his wife Fei Precht are working under their own brand Studio Precht in Austria.
Studio Precht released images for a new farmhouse that connects architecture with agriculture in Austria.
All images courtesy of Studio Precht
> via Studio Precht
