Submitted by WA Contents
Colourful Metal Canopies Provide Thermal Comfort For Niger's Regional Market by Atelier Masōmī
Niger Architecture News - Aug 06, 2019 - 01:40 14882 views

A series of metal canopies fly over a regional market in Dandadji, Tahoua, Niger to provide thermal comfort for each individual selling unit, while creating its own public space complementing the products.
Designed by Niger-based architecture studio Atelier Masōmī, the project's main goal is to create a space that projects a sense of confidence and aspirations for the future in the users themselves. In rural Niger, markets run on a weekly basis, allowing sellers to move from village to village all week long to offer their products.

"With a rapidly increasing population, the village Dandaji felt a need for a more permanent market for its own inhabitants to both procure and sell goods in a more consistant way," said the studio.
"The current weekly market is organized around an ancestral tree that has become the public space to be during Market Day for market-goers and sellers."

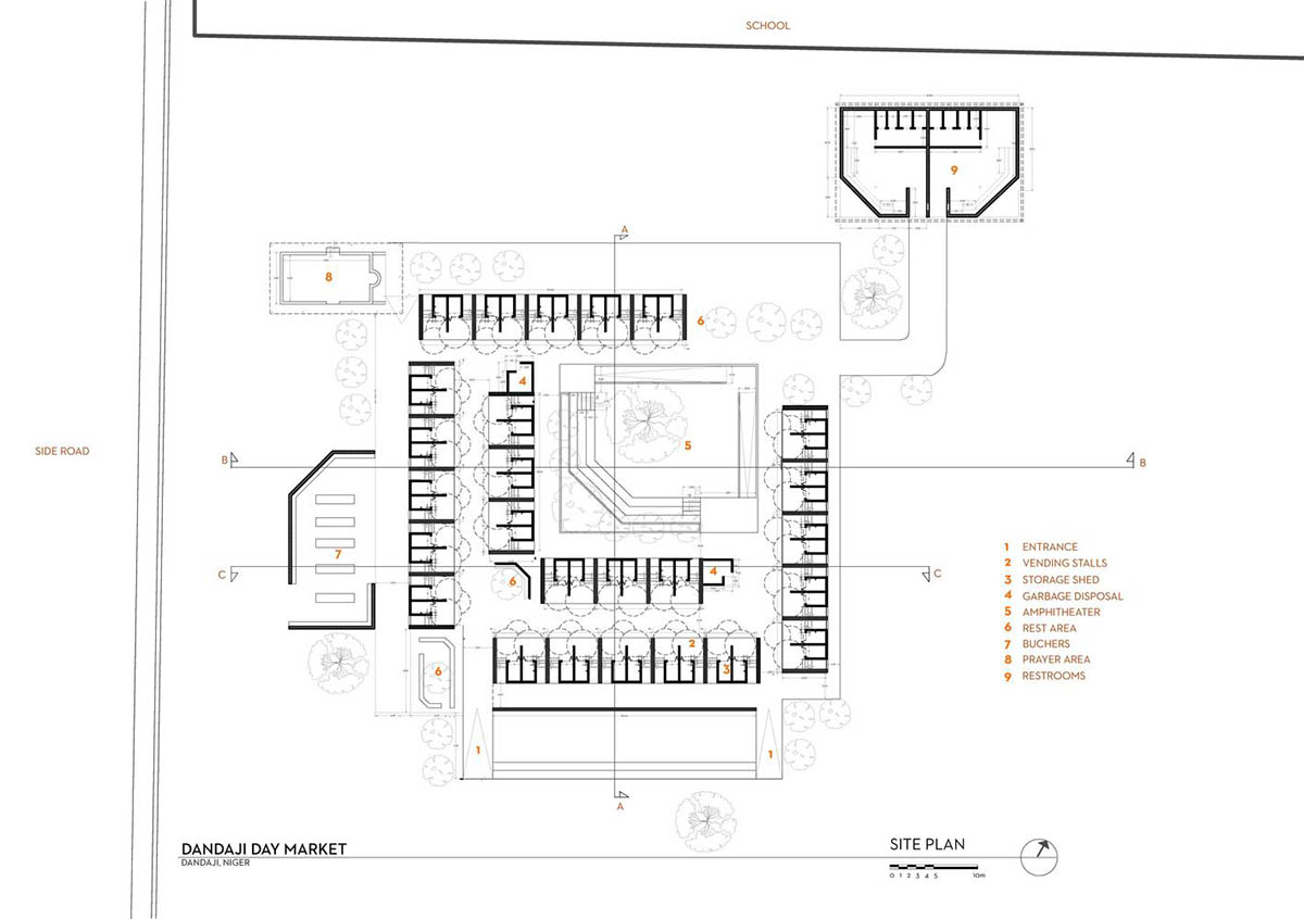
Covering a total of 7,530-square-metre area, the new project stays on the same site and amplifies an experience the village inhabitants have come to count on.
The project, led by Mariam Kamara - who is Principal Architect of Atelier Masōmī, takes cues from the area’s traditional market architecture of adobe posts and reed roofs, pushing the typology forward using compressed earth bricks and metal for durability.

The result is in an infrastructure that is visually appealing, that the users can be proud of, and that has the potential of consequently attracting more commerce to the area.

"The design of the project is kept very simple, using a colorful recycled metal canopy produced through a succession of individual shading structures that compensate for the difficulty in growing trees in such an arid, desert climate," added Atelier Masōmī.
"The difference in level of the various discs promotes natural ventilation while precipitating hot air up to the top discs. It thus provides solar and thermal protection to the vending spaces underneath."

The canopies create a whimsical world that complements the colorful goods on display, while protecting patrons from the scorching sun. The project is made of a new material (compressed earth bricks or CEB) in a region where one either uses cement or adobe.

The first is too costly and increases ambient heat, while the latter is negatively impacted by the strong rainy season. Using CEBs offers an excellent method for integrating earth-based construction with the contemporary demands of the construction industry, while maintaining the thermal advantages associated with adobe for a climate as hot and arid as Niger’s.

The market is laid out to progressively step down to the old tree, the surroundings of which are formalized to become a real public space with seating and rest spaces for all to gather around.

It was important for us to make it a focal point to signal that we acknowledge its importance, to protect it going forward, but also to provide a way for people to enjoy its presence fully.
Walking along the shaded lanes, one experiences the simplicity of the compressed-earth brick stalls that contribute to the cooling of the space, while the alternating heights of the shading structures helps the air flow throughout.







Site plan

Market unit set plan

Market unit section

Market site section
Atelier Masōmī is a Niger-based architecture office developing innovative solutions in architecture and design, while exploring new adaptations to local techniques.
The firm's main goal is to serve local communities and their needs. Before starting design, the studio make in-depth investigations among local communities to understand their needs better.
Project facts
Status: Completed
Date: 2018
Location: Dandaji, Niger.
Site: 7530 m²
Lead Architect: Mariam Kamara
Design Team: Mariam Kamara, Harouna Diallo
All images © Maurice Ascani
> via Atelier Masōmī
