Submitted by WA Contents
Studio AG designed large wooden residence featuring punctured volumes with gabled roof in São Paulo
Brazil Architecture News - Sep 25, 2019 - 17:16 14040 views

A large wooden block seems as if it is floating in the air, but it is supported with slim columns underneath and features a large common public area for dining and living, designed by Brazilian architecture practice Studio AG Arquitetura.
Called GGL House, the 450-square-metre house has been designed for a young couple and the house is located within a narrow and long-shaped plot - measuring 10x30m - in São Paulo city, Brazil.

The house offers an intimate atmosphere and variations of spaces with an efficient use of solid-void relationships in both on the ground floor and upper floor. The different layers of outer wooden skin create a different kind of depth and visual permeability for privacy.
The upper volume of the residence emerges as a reinterpretation of the traditional houses of São Paulo. By adding a gable roof to the house, the architects wanted to respect the language of the adjacent houses of the neighborhood. The façade is built with metal profiles, clad on the front and the back by a high-pressure laminate panel, has extended durability.

The architects' aim was to use this narrow plot as efficient as possible. "From a pre-existing scenario, the pursuit for the new and unusual was the strongest issue of the project," said Studio AG Arquitetura.
"With a contemporary architecture, the house uses classic and modern elements, creating a mix of styles, which balance two aspects: beauty and comfort. With an extensive program, its distribution offers three floors plus the rooftop."

The ground floor of the house was designed as the social area of the house. A lowered block, coated in expanded metal screen, hosts the kitchen, service area and open living room, with direct access to the garden.

Besides that, there is an untied bulk with the gourmet area and sauna, which does not interfere in the main structure of the house, keeping the upper bulk highlighted.
The kitchen, integrated most of the time, has pivot sliding doors, isolating it completely on days with events, since the lighting is projected by a tensioned ceiling on the bench.

"Another emphasized point of the house is the side fair-faced concrete wall, where it was built-in a metallic stairs, casting, which allows the light, that comes from the door of the access to the solarium, to reach the lower floors," the architects added.
"The wine cellar was created from the concreting of the wall, specifying the importance of the bar to the residents that receive guests frequently."

The closing among the horizontal planes is made with large glass panels, which dilute the visual boundaries between the house and the landscape. A vertical garden was created in the side and in the back wall in order to harmonize with the garden of the adjacent house.

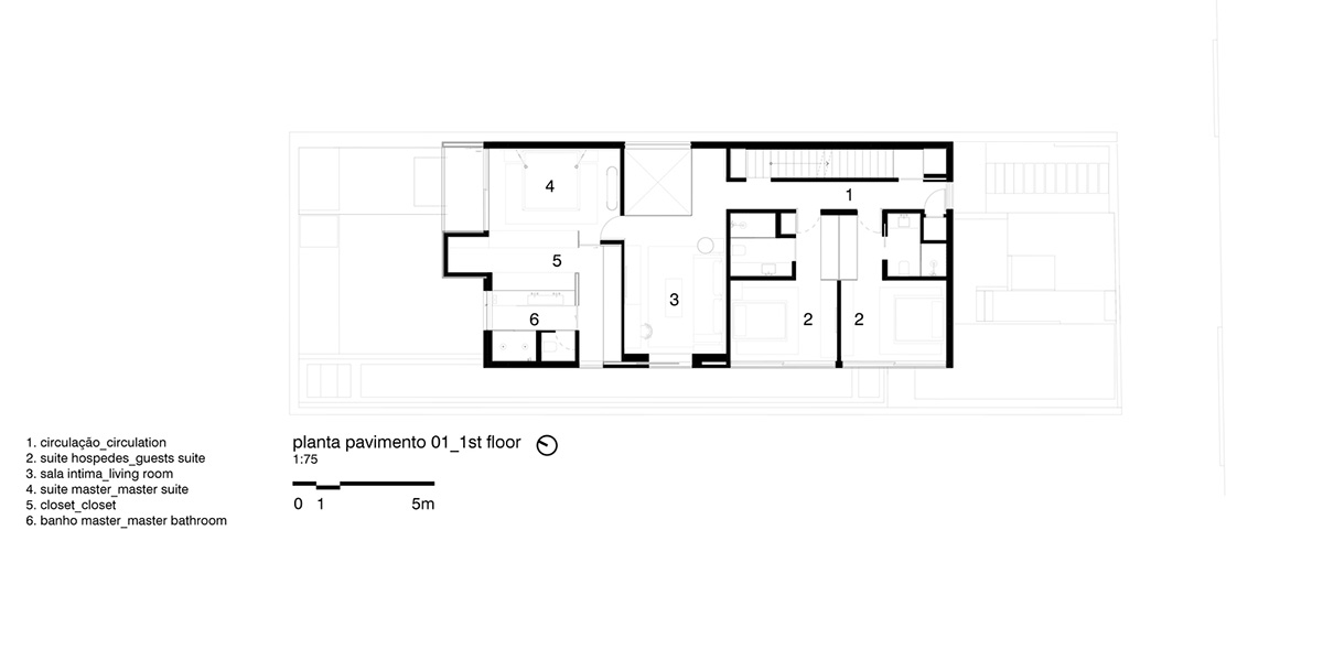
The upper volume of the house was designed as the private area of the house, composed by three suites and a living room. In this block, it was elaborated the idea of full and empty, explored by the rips that emphasize the natural lighting influence during the day in the rooms.
The interior garden, in the private room, brings the green to the interior of the house and provides privacy to the façade of the back, besides lighting, in a subtle manner, the living room.

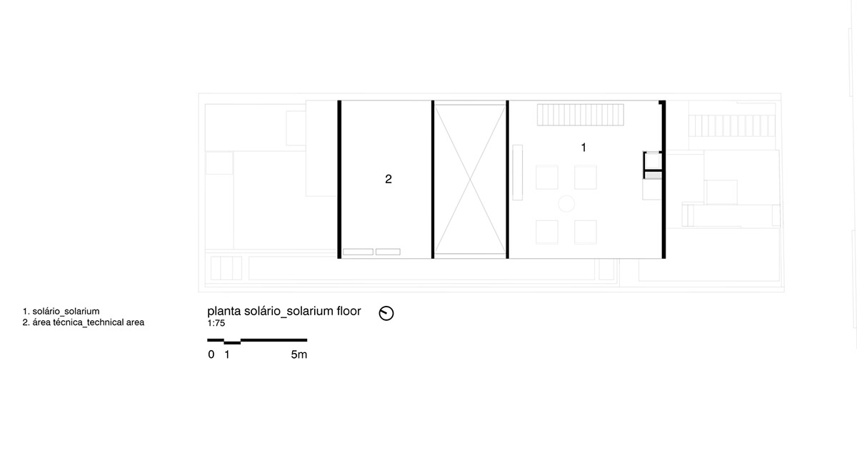
"Bi-fold windows filter the light of the bedrooms that are facing the side of the plot and the master suite that has a view to the backyard. The gable roof was asymmetrical designed in order to provide a room for the solarium – space of contemplation of the treetops, where the ridge of the roof achieves the maximum height authorized by the law," they added.

The swimming pool was the highlight of the project. Located in a mandatory setback of 1,50m in one of the sides of the house, it optimizes the space that, in advance, would be unused. The basement floor also contains the garage and the technical area of the house.


















Basement floor plan

Ground floor plan

First floor plan

Solarium
All images © Fernando Guerra | FG+SG
All drawings © Studio AG Arquitetura
> via Studio AG Arquitetura
