Submitted by WA Contents
Steven Holl Architects and Architecture Acts design smoothed-pod shape concert hall in Ostrava
Czech Republic Architecture News - Jul 09, 2019 - 23:16 16261 views

Steven Holl Architects and Architecture Acts have won an international competition to design a world-class concert hall in Ostrava, Czech Republic.
The international competition was officially announced last August by the City of Ostrava and in the two-round competition, Steven Holl Architects and Architecture Acts's design scheme saw off Nieto Sobejano Arquitectos, Van Dongen – Koschuch Architects and Planners in the second round - the names were among the six shortlisted teams.
The 1,300-seat concert hall, situated adjacent to the existing House of Culture, will house a perfectly-designed acoustical and sufficient space for the audience and facilities for Janáček Philharmonic Orchestra, the leading Czech orchestra for commissioning contemporary music.
The design is made of a smoothed-pod volume that cuts the existing House of Culture and its spiky part faces with the main street and is glazed with transparent façade.

The Ostrava Cultural Centre building was constructed between 1956 and 1961 in the spirit of modern classicism but it has not been adequately serving this purpose and has been facing a lack of proper use and involvement in the city’s cultural life for many years.
Rafi Segal, a jury member of the competition, evaluated the team's design "it's not the size of the building, but the importance and significance of it."
Another jury member, Krzysztof Ingarden, said: "It is a fantastic piece of architecture considering very well the relationship between the City of Ostrava and the park behind the existing building. I believe the winning project will be an emblematic piece of architecture for Ostrava revitalizing the city as well."

The design is shielded by considering urban traffic noise and its main hall's facade is positioned towards the existing park on the building’s rear, while a new entrance on the promenade rises to glide over the top of the existing historical House of Culture in a sky-lit lobby for the new hall.

The concert hall creates a dramatic complimentary contrast between new and old to be a cultural landmark for Ostrava. The building is designed as a "perfect acoustic instrument in its case" which will be developed in collaboration with Nagata Acoustics.

The smooth case of zinc holds an "instrument" in an extended vineyard-type plan made of concrete and maple wood. Czech composer, Leoš Janáček’s theories of time will guide and give order to the concert hall’s interior geometry. Acoustic wall panels are organized according to scasovani, or rhythm, in three variants: Znici for sounding, Citaci for counting and Scolovac for summing.

"It is a splendid message for Ostrava that the author of the winning proposal is Steven Holl Architects plus Architecture Acts studio by which success in a number of top world-class projects was achieved. It is the U.S. studio that presented the best connection of the existing Ostrava Cultural Centre building with the new concert hall. The winning concept offers not only an original architecture but also a very interesting, albeit demanding, design featuring environmental friendliness and long-term sustainability and leading to low operation costs," said Ostrava Mayor Tomáš Macura.
"The building of new concert hall will strengthen Ostrava’s position of cultural centre and rank the city among significant metropolises proud of their concert halls. Those with top architecture and acoustics are always not only impulse for development of local culture and education but also a magnet for development of tourism.

The last full-fledged concert hall (Rudolfinum in Prague) was built in our country at the end of the 19th century. I believe our hall will be attracting interest by its architecture, acoustics and programme for at least the same time," added Tomáš Macura.
The costs of the project implementation at Ostrava Cultural Centre (Dům kultury města Ostravy) are estimated at 1.5 billion CZK excluding VAT. The construction is set to be scheduled in 2022 and the Ostrava Concert hall is expected to open in 2023.

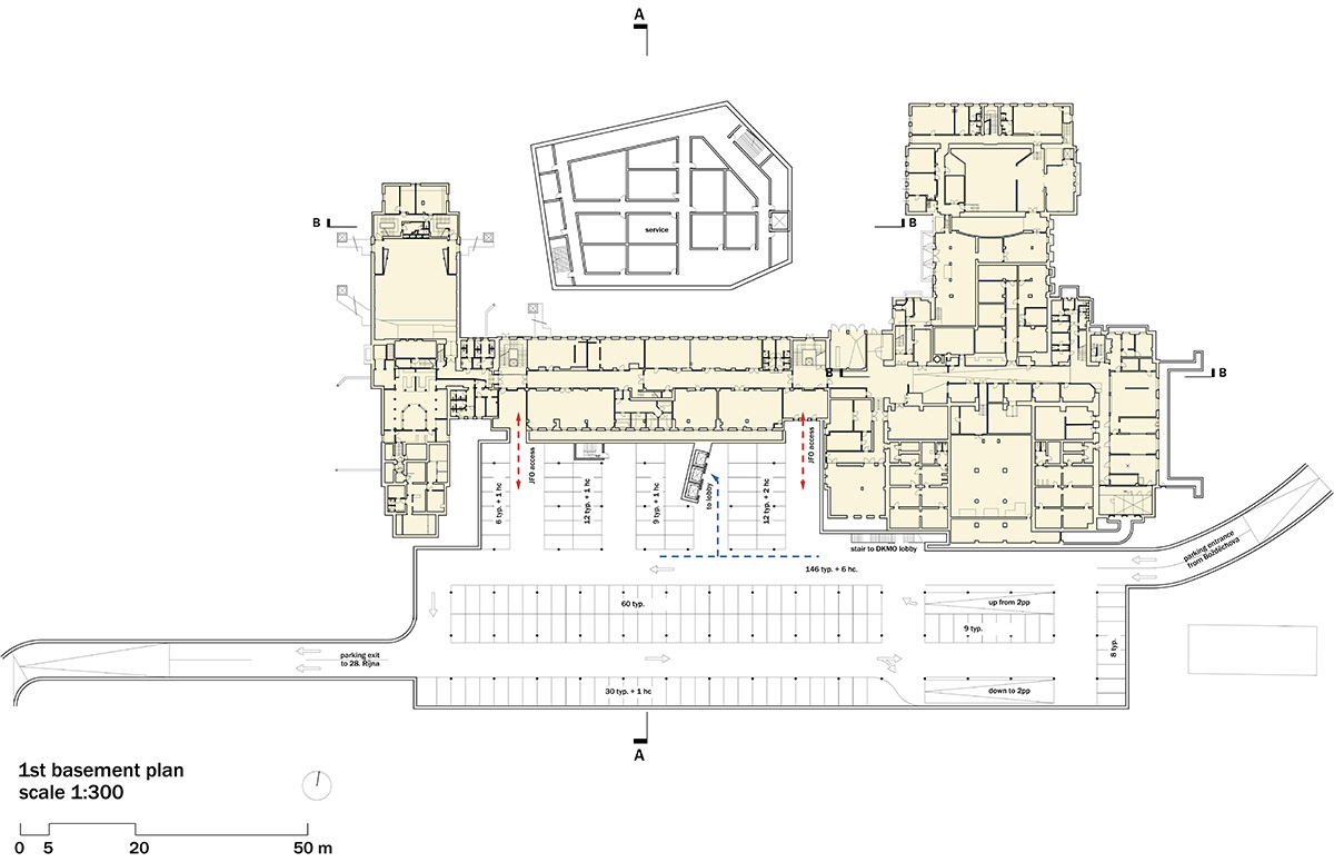
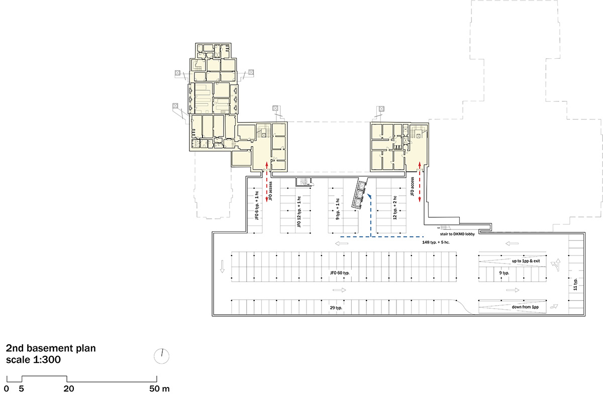
Site plan












Climate concept diagram

Structure diagram - plan

Structure diagram - section

Preliminary sketch of Steven Holl

Preliminary sketch of Steven Holl
All images courtesy of Steven Holl Architects
> via Steven Holl Architects
