Submitted by WA Contents
RIGI Design renovates Shanghai's historic house with punched holes and white colour palette
China Architecture News - Jan 02, 2018 - 07:19 24154 views

Shanghai-based design firm RIGI Design has renovated a three-storey historical building in Shanghai, by adding skylight, punched holes and new steel stairs in all-white colour palette, which is compatible with other residences in a common Shanghai old-style lane.
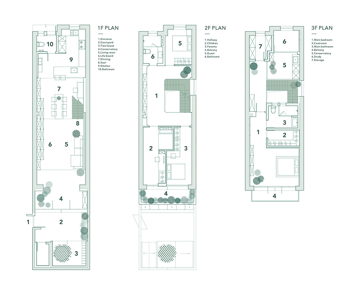
The house, sitting on a 240-square-metre area and named as "A White House, A Growing Home", is transformed from the existing block built 1947 in the same plot. The house consists of 3 floors, 5,5 meters in width, and about 15,2 meters in depth.
"There are plenty of similar buildings in Shanghai which is not new, and located in a naturally-formed block, carrying the memories of this city," said RIGI Design.

Led by chief designer LIU Kai, the house is built from a variety of materials in the interior and on its outer facade, the architects used materials such as metal plate, stoving varnish, felt, art paint and punched plate to give the building artistic look.
The house faces south and has entrances in both sides. Due to the complicated compartments and deep depth, the overall indoor lighting was bad. As it was built long time ago, part of the building structure need to be repaired, we also reinforced the whole architecture, and unified the height of the entire building.

The staircase in the northern side was torn down, skylight and staircase are designed to be the center of the architecture, reshaping the whole logic and form of this 3-story building.
Punched holes, the steel stairs can bring in light, the stairs go upward around the natural light patio from the 1st floor, extending the whole house vertically around the light.

LIU Kai and RIGI designed a semi-opened area on the 1st floor which blurs the boundary between indoor and outdoor. After reconstruction, the original isolated courtyard has a new connection with the 3-story space.
The semi-outdoor space adds enough warmth into living room. Sunshine, plant, interior, exterior, and blurry boundary allows spaces and life scene to switch freely. A hole is reserved in the courtyard, where to plant tree in Spring, which could accompany the kids to grow up - as the time is also a part of their design.

"On the 1st floor, the sunlight living-dining room and the kitchen are designed as a whole space, where family spend most of time together. We hope this space belongs to every scene of life, instead of being defined by functions," said the studio.
"We designed a whole modular furniture wall, called "life board", which can be decorated or assembled by accessories in diverse ways, along with life changing. From this point of view, we hope the future form of the design could be gradually shaped by daily life."
"On the 2nd floor, the door and the storage space are hidden behind the wall, which creates a clean and complete area. During sunny days, it will be a warm family space."

"The kid's bed, desk and storage space are connected through our design. The kid likes the house very much, climbing stairs, playing in the courtyard, which is also our design original purpose - to bring a bigger world to the kid, allowing him to know about the changing world from another dimension."
Following natural daylight, going up along the steel staircase, visitors can see modified skylights, vertical lighting windows and a pure outdoor space. This is the area we modified most. The whole building starts from light and vertical space.

For the main bedroom, the architects kept the slope structure of original building, unified the cloakroom and the toilet into a box, reserving the original architectural form to the largest extent and creating a new connection in the original space which is not big.

"We want to design something carrying beauty and happiness. There is not so much joy in life, and our life is filled with small happiness. What we love is not to possess good things or luxurious furniture, but a self-made life on our own," added the studio.
"Having seen so many houses, the only concept we believe is that a person cannot be stuck with a settled life, whether in the house value or style."

"A house is not equal to home, home belongs to us and our family. A house is like a container to carry our growth, experience and hope. And design, brings more tolerance into life," explained the architects.
"The city where we live and work is not perfect, and there are even some disorder traffic and a lot of garbage, but it is not an obstacle for us to design a warm house. This is a house of 1970s, witnessing the lives of generations. At this moment it seems to be reborn."
"This is the meaning of our life, to be better," they concluded.













Axonometric drawing showing functions

1st, 2nd and 3rd floor plans

Axonometric drawings showing existing structure with the new one
Project facts:
Project Name: A white house, a growing home
Location: Shanghai
Type: Residence
Design Company: RIGI Design
Chief Designer: LIU Kai
Participating Designer: YANG Junyi
Area: 240m2
Main Materials: Metal plate, stoving varnish, felt, art paint, punched plate
Design Time: 2016.05
Completion Time: 2017.11
All images © TIAN Fangfang
> via RIGI Design
