Submitted by WA Contents
Strong interdisciplinary team wins competition for first newly built Architecture School in Denmark
Denmark Architecture News - Mar 20, 2017 - 17:25 16617 views

Vargo Nielsen Palle, ADEPT, and Rolvung og Brøndsted Arkitekter in collaboration with engineering companies Tri-Consult and Steensen Varming have won the international competition for the first newly built architecture school in Denmark.
They were in competition with BIG, Sanaa, and Lacaton & Vassal, among others. The jury cites the entry’s playful combination of flexible studio space, specific functions, and public spaces which together create a strong connection to Godsbanearealerne.

Arrival from Carl Blochs Gade. Image © Vargo Nielsen Palle, ADEPT, Rolvung og Brøndsted
Vargo Nielsen Palle was chosen as one of the winners of the initial open idea competition for the school, and lead the team with an open design process focused on a multidisciplinary collaboration.
Together with the team, they envision a school of architecture that functions as a laboratory for architecture and the local creative community. Vargo Nielsen Palle will be the contract holder and will continue to lead the project with the same open spirit.

The school’s interaction with Godsbanearealerne. Image © Vargo Nielsen Palle, ADEPT, Rolvung og Brøndsted
''When given the right tools and opportunity, people engage their surroundings. Godsbanearealerne already prove this by inviting the local community into an experimental campus. The school should not just be an institution for architecture – it should continue this open laboratory, sharing its tools and programs with the public to create opportunities for the informal evolution of architecture,'' says Vargo Nielsen Palle.
The design of the architecture and landscape of the invited competition is made by Vargo Nielsen Palle and ADEPT. Rolvung og Brøndsted has advised the architectural development and project management. The new architecture school will build a bridge between the school and the city, especially to the scale of the local activities.

The school’s interaction with Godsbanearealerne. Image © Vargo Nielsen Palle, ADEPT, Rolvung og Brøndsted
The site borders the ''Green Wedge'' of Aarhus, an open landscape reclaimed from industrial uses. The building steps down to meet the scale of this informal environment and is divided into smaller structures within the larger building.
''The building is organized as a city within a building: Rich in diversity but within a simple and rough frame. A variety of functions can be used by the entire city, and the larger open spaces throughout the building allow students and the public to interact in both planned and unplanned activities. The mixture between the school and the city is one of the things that will really give life to the school and the local area,'' says Martin Krogh from ADEPT.

The framework for tomorrows architectural education is shaped by architects, for architects. Image © Vargo Nielsen Palle, ADEPT, Rolvung og Brøndsted
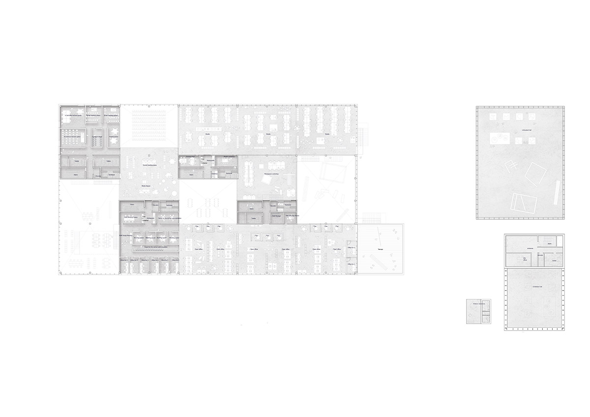
The Aarhus School of Architecture desires a flexible framework of workshops, studios, and open spaces within a raw, industrial framework. They imagine a building that can withstand a high level of activity and intensive functions, which may also change over time.
The winning proposal accomplishes this vision by creating a frame for architecture and compact ''toolboxes'' with specific functions within that frame. This provides both the space and tools for students to experiment, and the activity of the building becomes the architecture itself.

Image © Vargo Nielsen Palle, ADEPT, Rolvung og Brõndsted
''The team members have all contributed to a building concept that brings form, function, and technical aspects together into one concept. The two engineering firms, Tri-Consult and Steensen Varming, being part of the creative process from the start,'' says Jakob Brøndsted of Rolvung og Brøndsted Arkitekter.

Image © Vargo Nielsen Palle, ADEPT, Rolvung og Brõndsted
This integrated process supports the holistic vision for the school, balancing a healthy and comfortable environment with sustainable solutions that consider social, economic, and environmental opportunities.
Passive and active ventilation strategies combined with optimized daylight conditions for color rendering will create a good learning environment and an inspirational place to teach architecture.

Image © Vargo Nielsen Palle, ADEPT, Rolvung og Brõndsted
The building is scheduled to be completed in 2020. In addition to the school building itself, the winning project proposes several optional smaller buildings in Godsbanearealerne. These include a small artist’s residence, an architectural center for children, and workshops that continue the spirit of ''Institute for X'' on the site.

Image © Vargo Nielsen Palle, ADEPT, Rolvung og Brõndsted

Image © Vargo Nielsen Palle, ADEPT, Rolvung og Brõndsted

Image © Vargo Nielsen Palle, ADEPT, Rolvung og Brõndsted

Image © Vargo Nielsen Palle, ADEPT, Rolvung og Brõndsted

Image © Vargo Nielsen Palle, ADEPT, Rolvung og Brõndsted

Image © Vargo Nielsen Palle, ADEPT, Rolvung og Brõndsted

Image © Vargo Nielsen Palle, ADEPT, Rolvung og Brõndsted

Image © Vargo Nielsen Palle, ADEPT, Rolvung og Brõndsted
Top image: The new architect school invites you to be experimental. Image © Vargo Nielsen Palle, ADEPT, Rolvung og Brøndsted
> via ADEPT
