Submitted by WA Contents
David Chipperfield Architects to design Shanghai’s Centre Pompidou in West Bund Art Museum
China Architecture News - Aug 09, 2017 - 16:44 24663 views

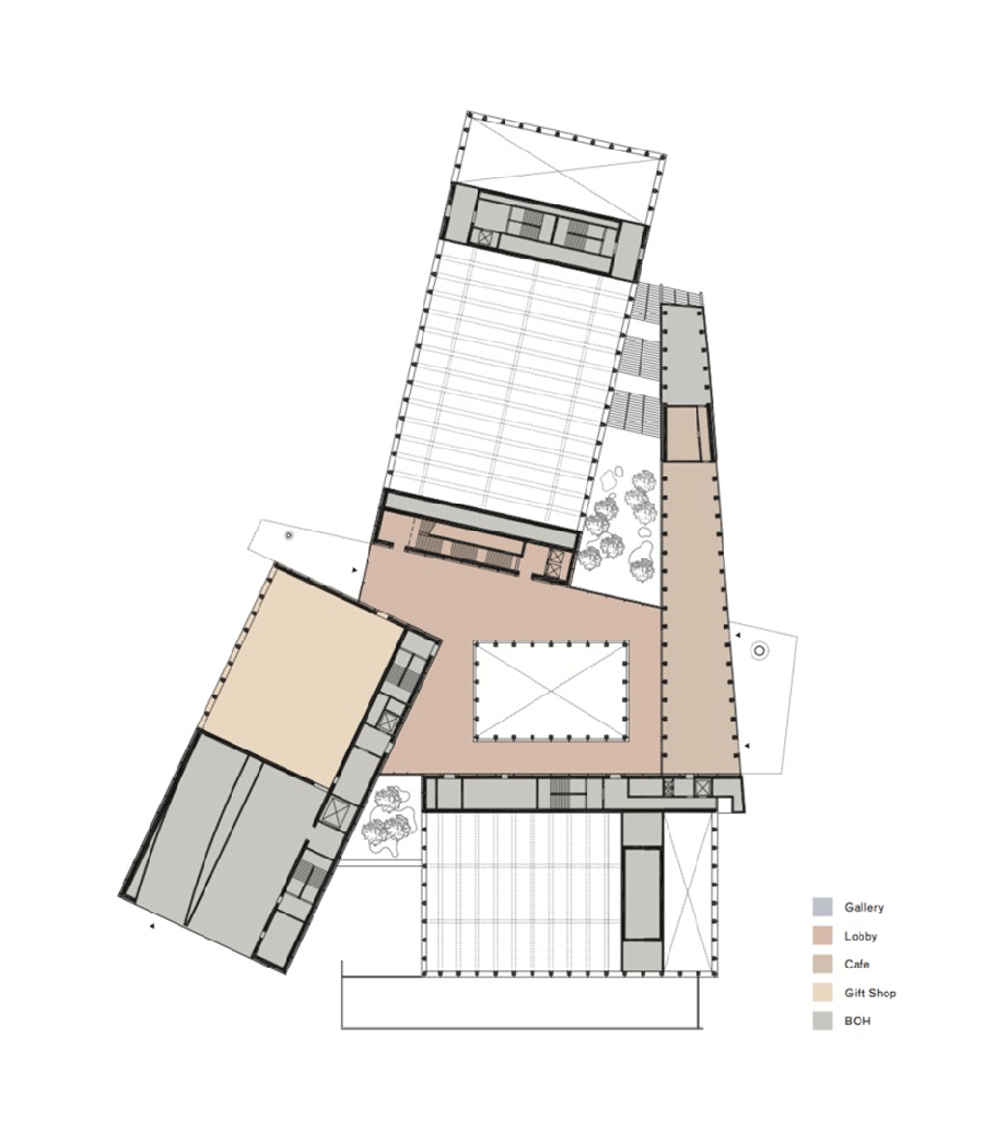
David Chipperfield Architects has unveiled the images of the new home of the Centre Pompidou for Shanghai. The West Bund Group and the Centre Pompidou have recently signed a Memorandum of Understanding initiating a unique, long-term (2019-2024) cultural cooperation project between France and China, the Centre Pompidou Shanghai (West Bund), which will be located in the West Bund Art Museum.
Called the Centre Pompidou Shanghai, the new 25,000-square-metre Pompidou will offer more than 20 high-standard exhibitions and events taking place at the Centre Pompidou Shanghai (West Bund) during the first five years of its existence. This cultural cooperation is expected to resonate at the Centre Pompidou with the possibility to organize a number of projects displaying Chinese art in Paris.

In addition to this cultural program, regular bilateral academic exchanges, training and exchange programs of international museum operation and management will also be expected to follow through during the five-year period, which will generate further cultural communications between France and China.

"The Centre Pompidou will contribute to the project with its expertise and assistance, and play an advisory role throughout the collaboration, on matters such as curation, art conservation as well as public art education, in order to promote its international outreach," stated the Centre Pompidou.
"This cultural cooperation will enable the Centre Pompidou to be present in one of the world’s richest and most diverse art scenes, and to build bridges with local artists and cultural institutions in France and China, and also to address the widest possible audience and offer its visitors keys for apprehending modern art and contemporary art by means of innovative interpretation programs conceived with everyone in mind."

The project will also contribute to enriching the Centre Pompidou collection with more masterpieces of Chinese art in the future. This in-depth and comprehensive cooperation will be expected to foster a prominent platform for international cultural exchanges with a global perspective in the development of contemporary art.

An implementation contract is expected to be signed between both partners before the end of 2017, detailing the terms of this ambitious partnership which will run for a renewable period of five years. The project will officially launch in early 2019, when the public will visit, experience and engage with the exhibitions and various artistic projects elaborated by the Centre Pompidou Shanghai (West Bund).
The West Bund Art Museum is located in the core area of Xuhui Waterfront Public Open Space and designed by David Chipperfield, a famous British architect. The building was initiated in the end of 2016 and is expected to be completed by the end of 2018 as the venue for the common project of Centre Pompidou and West Bund Group.

In the scope of this project, West Bund Group will be the exclusive partner of the Centre Pompidou for cultural exchange programs in the Yangtze Delta Area, and its only long-term partner for highest-standard programs in China.




All images © David Chipperfield Architects
> via Centre Pompidou
