Submitted by WA Contents
X+Living fills Shanghai's retail and shared office space with rounded details and machine-like rooms
China Architecture News - Feb 06, 2018 - 04:35 25549 views

Shanghai-based design studio X+Living has completed new retail space with a shared office in Shanghai, filled with a series of machine-like rooms, pink-coloured boilers, pastel color-painted outfits and space age technology-looking fixtures, which take users to a different information age.
Named Ideas Lab, the 1,100-square-metre space is designed in response to the invisible information age, created by the advent and popularity of computers in the 21st century.

"The invisible Information Age deduced and changed the humanity and commercial mode of this physical world," said X+Living.
"Starting from the West, industrial revolution had began to affect the change of times throughout the world since the 1760s; the invention and application of the new power machine—steam engine marked the beginning of the Age of Steam."
"Plants facilities with oil tanks and steel pipes had become an important symbol of that glorious age, what's more, what hidden behind these symbols is the power that starts the capitalist world system," added the studio.

The project hopes to be a lab where more information for learning are created and spread, with hoping to complete the joint research and development of information technology by consumers and information technology creators, it explores the hidden business value of this era through a multifunctional space.

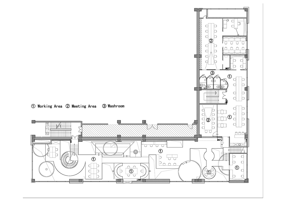
Office area on the 2nd floor
"There is no iconic symbols for Information Age, the amount and efficiency of information is the first perception. So while designing this lab, we based on and mapped the symbol of the previous era, for that they share something alike: for example, they are both equipped with subversive technology and research and both are very enlightening to the development of business," said the studio.

For the shape of the whole space, though X+Living takes factories of the Age of Steam as the prototype, the studio cut off the complex parts, and kept only the most basic functional parts, which includes practical compositions such as reaction tanks, energy delivery pipes and walking platforms for engineers. These main functional parts also reflect corresponding activities which are going to happen here.

"We demolished the floor slabs in the original two storied space, and turn it into a space of 8 or 9 meters' high. We restored the ground space with a minimalist approach, and designed devices which offers new retail experience in the "reaction tanks". Consumers could have different new consumption experience brought by different devices in different tanks," added the firm.
"And we reconstructed the floor slab in the 4-5meters high space; they are interweaved with the "reaction tanks" we restored and acted as shared work and transportation platform for R&D staffs on the second floor. In this way, staffs are working on the platforms in the air while consumers downstairs are experiencing commercial experience brought by new technology and informationization."

The sight interaction in this high space makes them feel the existence of each other and makes the space more interesting. "Energy delivery pipes" are used to hide wires as well as cables of the air conditioning, so industrial designs exposed in the space are simplified by this refined way of decoration, utilities pipelines which should have been exposed in the space are hidden perfectly in this post-built "energy deliver pipes".

For parts of the space, such tubes are used on the ground, and a series of tables and chairs are made according to the shape of the tubes, this adds to the whole space a sense of layering and creates different sense of composition for this space.

Shared commercial, coffee area, shared meeting area on the 1st floor
Li Xiang, who is Director of the project and X+Living, hopes to express her revolutionary feelings in this Information Age through this concept design. Clean and cool concrete is applied to depicts the concise and efficient character of this space.

Through vertical generatrix and sight line, she hopes to create a multifunctional composite office and commercial model, where R&D staffs can share the space while consumers can enjoy the same art space.













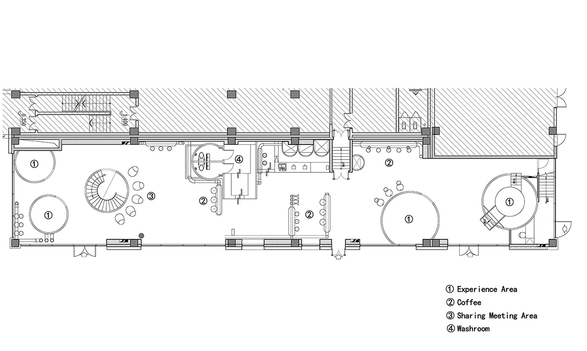
1st floor plan

2nd floor plan
Project facts
Design Director: LI Xiang
Design Team: FAN Chen, YAN Xiafei, CHEN Xue
Developer: Powerlong Group
Design Company: X+Living
Project Type: New retail commerce + Shared office
Area: 1100m2
Location: Shanghai, China
Completion Time: 2018.01.08
All images © SHAO Feng
> via X+Living
