Submitted by WA Contents
Unboxed:prefab wooden house
United Kingdom Architecture News - Oct 14, 2014 - 15:08 6372 views

"Unboxed", designed by Micaela Colella and Maurizio Barberio, is the wooden transposition of the typical characters of the Mediterranean house, as a valid alternative to masonry or frame structure buildings. The house is thinked to be placed in the beautiful town of Polignano a Mare, Apulia. The high standardization of the modules and their total prefabrication, allow to study various solutions easily.

This goal is achieved by splitting the building in several basic structural elements designed to be mounted with all the finishes and without thermal bridges. The house is 100% recyclable. It is also completely removable - thus movable - thanks to an innovative foundation made of steel, which allows to reduce or eliminate the excavation. A low inclination roof on the top (5%) allows the installation of solar roof tiles (Tegosolar technology), capable of producing electricity and heat.

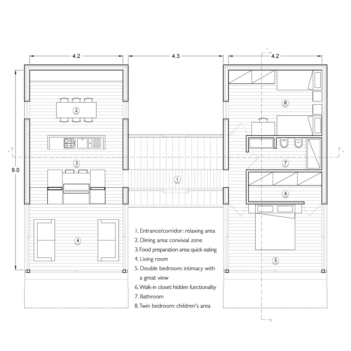
The house has a clear division between the living and the sleeping area with a glazed corridor/entrance in the middle: a journey in the nature, able to re-establish the contact with the surrounding environment (flow of time) at each passage.








plan

section

sizes
Project Facts
Photo credits: © Micaela Colella, Maurizio Barberio. 2014
Firm:Barberio Colella ARC
Email:[email protected] / [email protected]
Project name:Unboxed - 100% recycable prefab wooden house
Credits:Micaela Colella (Project Leader), Maurizio Barberio (Principal Architect)
Further info:https://www.dropbox.com/sh/oh6dupze9dfx1tj/AABZfvesShPwG3-40oDADSxOa?dl=0
