Submitted by WA Contents
Dietrich | Untertrifaller Architekten completes sandwich-shaped House D on the Bregenz mountain
Austria Architecture News - Dec 21, 2016 - 15:06 15398 views

A fully-open, sandwich-shaped, filled with natural light, three-storey countryside house presents magnificent views over the surrounding countryside and Lake Constance, designed by Austria-based Dietrich | Untertrifaller Architekten.
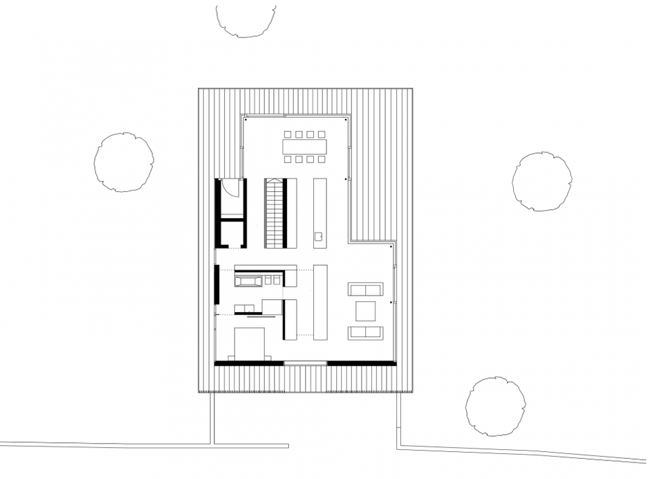
Located on a mountain overlooking Bregenz, the private residence encompasses a 210 square-metre space and House D features open floorplans and generous glazing on the facade. The home is stratified into 3 stories, with the Entrée and utilities located on the first floor, guest and children′s rooms on the second, and Master bedroom and an open layout kitchen+dining+living room on the third.

In order to strengthen the connection to the natural environment, the third floor also boasts a patio which wraps around the entirety of the building. The geometric form of the home, combined with the architect′s decision to construct with concrete and wood, create a powerful building that seems to blend into the surrounding landscape.
Furthermore, the attention to detail highlights the craftsmanship for which this region of Austria has become famous.











All images courtesy of Dietrich | Untertrifaller Architekten
