Submitted by WA Contents
These Triple-Shifted Volumes in Iran create a sense of suspension designed by New Wave Architecture
Iran Architecture News - May 11, 2016 - 14:53 21805 views

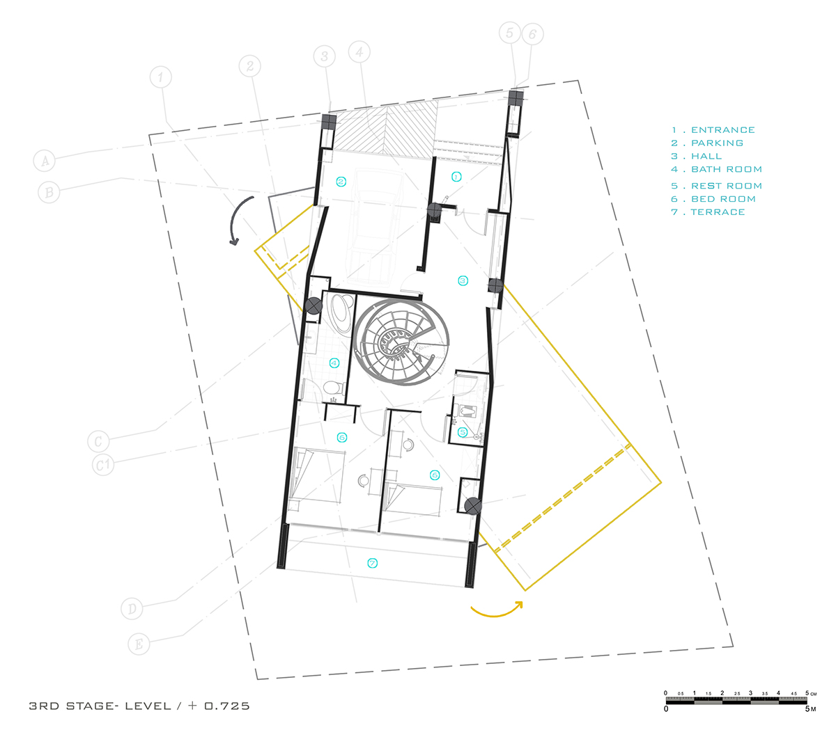
Mosha House is made up of three shifted volumes and put on the natural landscape of Mosha, Iran, designed by Iranian architecture firm New Wave Architecture. Three triangular boxes are placed towards different angles to create sense of suspension and wide view for all spaces. The main design approach of merging nature with human life led the architecture studio to have vertical distribution of functions with less land occupation for building and hence allocates more portion of land to design landscape. The location of project is Mosha site in the vicinity of north side of Tehran in domains of Alborz mountains. Mosha House completed in 2016.

The adopted shape for this project is a transverse volume with direction from domain to Mosha plain, so the form of three cantilevered boxes, with specific rotation to each other, comes out. Consequently additional spaces are generated, whereas a ceiling of each story is the terrace of another. Apparently high slope of site provides perfect sense of suspension for each box. Functions are distributed from upper to lower level respectively.

For having endless view, the sides of the boxes facing the plain have floor-to-ceiling windows with numerous panoramic views. Here windows acting a role more than just an opening or constructional element, They are like a transparent curtain between in and out that overflow interiors with natural vision.

An inclined cylindrical shaft is located in the intersection point of boxes which covers the stairs and has shaped a void that due to its position supplies an oblique view among all three levels and improves family interactions.

Sense of nature is flowing inside spaces moreover to all aspects with using wood as one of basic natural elements in building that can be seen in floor and wall of sport rooms and in stairs which is moving upward from lower levels to the upper ones. For saving Purity of the form building is covered with one single white shield which is made building’s volume distinctive and bright in domain of mountain.




















All Images © Parham Taghioff
Project Facts
Architect: New Wave Architecture (Lida almassian/ Shahin Heidari)
Architects: Lida Almassian/Shahin Heidari
Associate architects: Maryam Amanpour
Team members: Sheida Ghotbi, Soheila Zahedi, Ilnaz Ashayeri, Elnaz Shokravi, Fatemeh Honarbakhsh
Structural designer: yaghoub abedpour
Client: Private (Yaghoub Abedpour)
Gross floor area: 2800 sqf
Designed date: 2009
Completion date: 2016
> via New Wave Architecture
