Submitted by WA Contents
David Chipperfield Architects reveals the design of Carmen Würth Forum in Germany
Germany Architecture News - Jan 04, 2016 - 15:55 6054 views

all images © David Chipperfield Architects
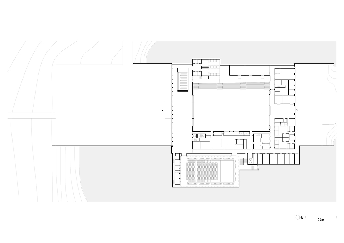
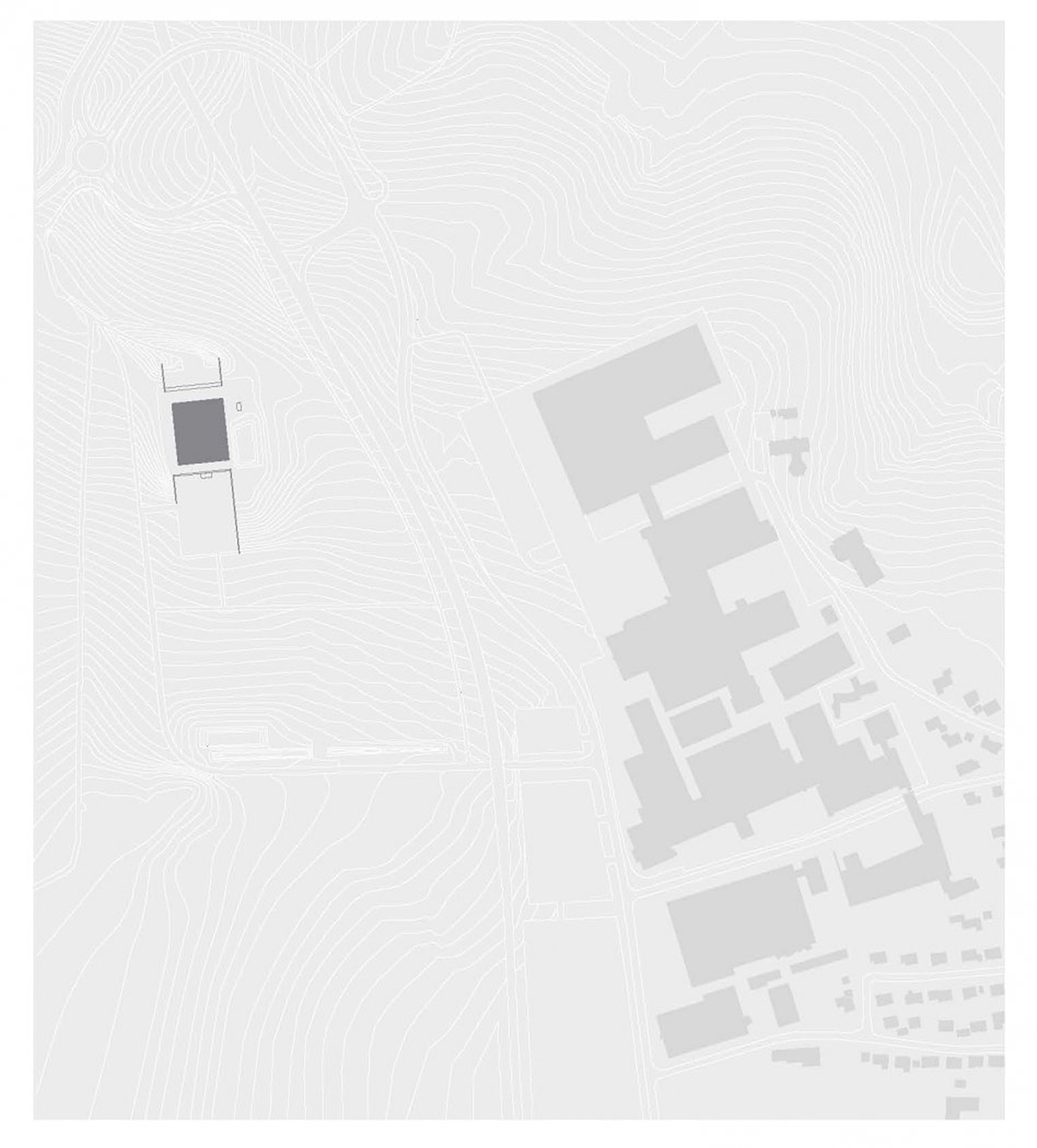
David Chipperfield Architects revealed the design of Carmen Würth Forum in the Germany town of Künzelsau, which is embedded to the landscape and showed itself partially with retaining walls in the existing context. The Carmen Würth Forum, designed by David Chipperfield Architects, is to be built within its direct vicinity. During a first stage of construction, an event hall and a chamber music hall are due for completion in 2017. The design reveals itself as a 'ghost building' that catches the visitor's eye with only partial walls and glass facades from afar.

The studio explains that the building is characterised by expansive meadows and fields, which it integrates as an architectural theme. Two retaining walls made of bush-hammered, in-situ concrete frame a forecourt in front of the main entrance to the building. This square serves as a forum for diverse outdoor events, such as open- air concerts.

The main entrance leads into the naturally lit foyer, from where the large event hall is accessed. While the lower level of the hall is sunk into the earth, the upper gallery level, which is glazed on all sides, rises above the highest point of the terrain. The event hall provides space for 3,500 people and can be used for a diverse range of events, including sporting events. The trussed steel construction of the ceiling spans column-free over the entire length of the hall.

The more intimate chamber music hall seats up to 500 people. From the outside this smaller hall is only perceptible as a modulation of the landscape. As is the case for the event hall, the chamber music hall likewise features a gallery level with audience seating. A conference centre and a museum for the Würth art collection are to follow in a second construction stage.




site plan
Project Facts
Competition: 2006-2007
Project start: 2011
Completion due: 2017 (first construction stage)
Gross floor area: 10,000 m2
Client: Adolf Würth GmbH & Co. KG
Architect: David Chipperfield Architects Berlin
Design: David Chipperfield, Alexander Schwarz – Partner
Project management: Harald Müller – Partner, Martin Reichert – Partner
Project Architect: Annette Flohrschütz, Christian Helfrich, Thomas Schöpf
Contract architect: Kraft + Kraft Architekten
Ladscape architect: realgrün Landschaftsarchitekten
Structural engineer: RPB Rückert GmbH
Services engineer: ZB Zimmermann und Becker GmbH
Façade consultant: Reba Fassadentechnik AG
Project management: Drees & Sommer AG
