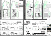
This is a renovation of an existing residential single house in Porto Garibaldi, a small village on the Adriatic sea in Italy.

2011

concept: Arch. Lorenzo Bergamini
renderings: Andrea Salmi
structures: Ing. Cristina Mangherini
geologist: Dott. Thomas Veronese

/

Andrea Salmi