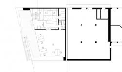
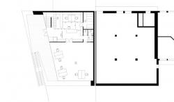
Client: Fruity limited company
Location: Bozen {BZ}
Program: commercial building
Realisation: 2008
Volume: 800 m³
Building area: 180 m²

2008

2008

/

monovolume