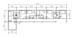
Designing six different rooms for a budget hotel with a compact room size 10` X 12`

2008

2008

/

Kean Ong