The majority of the residential public realm within the site adopts the principals of Home Zone, with carriageway and footway being on the same level. This design is to encourage slower vehicular speeds and to give the pedestrian priority. With slower traffic speeds safe doorstep play becomes a real possibility.
The drainage proposals for this site adopt the principals of Sustainable Urban Drainage Systems (SUDS). The surface water from the carriageways and footways drain into swales at the edges of strategic roads. As well as functioning as a sustainable drainage solution these swales provide a valuable ecological resource and are to be planted accordingly.
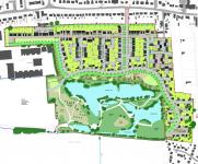
As a buffer zone between the proposed residential development and the existing wildlife zone (surrounding the lakes to the south) an ecological park is proposed. This will enable residents within the vicinity of this park to have an accessible public open space and possibilities to enjoy wildlife close up.

2011

2011

/