Lima Villa College explores the idea of a patio at a public scale. It’s located in a suburb in Lima that’s surrounded by marshes. The educational principle encourages each student to recognize their skills and explore their individual and collective capacities. We understand there’s a difference between knowledge and learning. The former is given information that is transmitted in the classrooms; the latter is a dynamic experience that takes place in unexpected ways. It’s precisely along the corridors and around the casual spaces where the possibility of questioning appears.

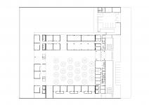
The building plan is defined by a lineal building that closes on itself to contain a central void. This 70m long square is made up of a grid equivalent to a classroom module. The perimeter of the patio is dilated through ambiguous spaces on the ground floor where students can gather spontaneously. A dialog is therefore established between what’s spatially defined and programmatically undetermined. On the first floor these spaces are attached to the corridors, making them more than merely transit areas.

The classrooms are simple and bare, with special care on natural ventilation and shading. The entrance is conceived as a threshold that reveals its true scale upon entering the building. Unusually for schools in Lima, closed fences and brick walls were discarded as enclosure; instead glass doors maintain a visual connection between the public domain, the children inside and the marshes beyond.

2012

2013

Land area: 9,000 m2
Project area: 4,000 m2

Architecture: Nomena Arquitectura + Patricio Bryce
Client: Lima College
Builder: Nicolas Paredes
Structures: Prisma Ingenieros
Electrical and sanitary: Fernando Mendoza ING.
Photographs: Juan Solano

/