We received a call from a client that they brought a new property in the commercial tower and wanted to cover the space into meaning full office space.
When we say office space, we as humans have a typical understanding of chairs and tables but what about the essence of the space? the aura of the space, we as a designer can change that? As every office has its own principles and philosophy of work that derives from its daily flow, so architecture and interior play a major role in keeping the aura positive.
When we analyze the business and background of the client, we understood everything is related to soil. We had a walkthrough of the site (Raw shell), and the unorganized beam grid and lighting conditions came in front as a challenge.
There were a few minor changes that we suggested in the wall layout and window openings, relocation of the toilet.
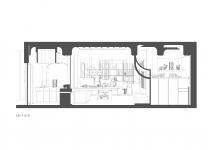
The brief from the client was pretty clear: In an area of 850 sqft we have to fit a reception table, waiting area, CEO cabin, managers cabin, associates work desk and main working table, pantry, toilet, etc., and special space for Dhoop (type of extruded incense).
In our various deliberations on space allocation and programming, the key concerns were to be able to strike a balance between collaborative and private zones
We came up with an interesting idea to retain the feel and essence of soil through the plaster. Soil has sacred importance in the context and is used in many things. As the beam depth was not the same and to achieve the maximum height of the ceiling we played with the volumes of gypsum ceiling.
As we had a discussion with the client, we set the main focus on the placement of the CEO cabin to have visual control all over the office. When one enters the office 1st thing one can see is beautifully captured photo of Wari (Wari is a yatra to Pandharpur, Maharashtra, to honor Lord Vithoba) by Mahesh Lonkar, Later space takes you towards reception and work station while having a glimpse of the CEO cabin. The working table is designed in such a way that it can turn into a conference table, and the interior is a functional rectilinear space, organized around a long table to encourage collaboration. The placement of work station is a central space of the office surrounded by reception, CEO cabin, managers cabin, and associated cabin to act as a connector for everyone.
From the entrance of the CEO cabin, an imposing curved lattice screen sweeps past the foyer into the main office, hugging the planter box, added MS screen on the western window for letting natural light enter into the space which is back of the CEO,
While the project does not make a loud stylistic statement, it serves as the perfect setting for its users.

Thank you,
Tres Atelier.

2022

2022


The brief from the client was pretty clear: In an area of 850 sqft we have to fit a reception table, waiting area, CEO cabin, managers cabin, associates work desk and main working table, pantry, toilet, etc., and special space for Dhoop (type of extruded incense).
In our various deliberations on space allocation and programming, the key concerns were to be able to strike a balance between collaborative and private zones
We came up with an interesting idea to retain the feel and essence of soil through the plaster. Soil has sacred importance in the context and is used in many things. As the beam depth was not the same and to achieve the maximum height of the ceiling we played with the volumes of gypsum ceiling.
We set the main focus on the placement of the CEO cabin to have visual control all over the office. When one enters the office 1st thing one can see is beautifully captured photo of Wari (Wari is a yatra to Pandharpur, Maharashtra, to honor Lord Vithoba) by Mahesh Lonkar, Later space takes you towards reception and work station while having a glimpse of the CEO cabin. The working table is designed in such a way that it can turn into a conference table, and the interior is a functional rectilinear space, organized around a long table to encourage collaboration. The placement of work station is a central space of the office surrounded by reception, CEO cabin, managers cabin, and associated cabin to act as a connector for everyone.

Design Team : Suchit Mutha, Mandar Khele, Anuja Datir-Khele
MEP : Tres Atelier
PMC : Advait Infra
Furniture : India Furniture

/

Siddhant Temkar