The clients, a married couple, approached us with a request to tear down and rebuild their grandmother and uncle’s house so that they could move in together. The design enables family members spanning four generations—the clients, their children, their grandmother, and their uncle—to live under one roof while also establishing three separate households.

The design process began with some doubts as to whether it would be possible to create a multi-generational residence on the relatively small lot. After considering both a two-story and a three-story design, we settled on a three-story structure with a steel frame.

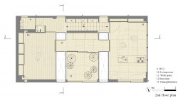
The family was close even before moving in together and often gathered at the grandmother’s house. For this reason, we took care when creating the floor plan to ensure that the residents would be able to sense one another’s presence even while occupying different floors. Ensuring as much natural ventilation and light as possible given the dense residential neighborhood was also a priority. To achieve both of these goals at once, we included two voids in the design. These voids link the first through third floors, serving to connect the residents as well as bring in light and air. Their exterior walls and roof of the void are made of glass, which allows sunlight to pour into the entire house; the height differential enables air to circulate.

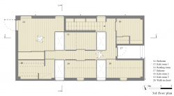
The first floor contains rooms for the grandmother and uncle as well as a kitchen and bathroom. The second floor contains a living room and kitchen-dining area for use by the entire family, with each room separated by glass to give the space a more expansive feeling. The third floor contains bedrooms for the clients and their children. The result is a home for three households, each of which is able to maintain the distance it needs but still feel connected to the others.

2014

2014

Project Location : Japan
Completion Year : 2014
Principle use : residence
Site Area : 110.8?
Building Area : 63.9?
Total Floor Area : 176.2?
Storeys : 3
Structure : steel
Photo by: Shintaro Fujiwara, Yoshio Muro

Office : FujiwaraMuro Architects, Lead Architect : Shintaro Fujiwara, Yoshio Muro

/