Located on a golf course of a suburban neighborhood of Buenos Aires.
It was built almost exclusively on concrete and glass.
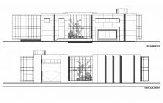
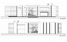
From the street two solid and subtle concrete volumes hold a floating glass body.
Two different zones are located at both sides of the glass cube.
One of them holds the basic home functions, and the other the complementary program.
The central greenhouse brings the outside into the very core of the house, not only does it articulate the two main volumes, but also connects them in a vertical and horizontal manner using metal and transparent elements.
By walking through the well-defined circulation of the house you get a perceptible aesthetic experience. Everything happens along this pathway.
There is a deliberate search for continuity between the different interior functions and visuals.
“From the house you can see the house”.
The pool, in addition to its specific use, is an infinite floating fountain that becomes the focal point of the surroundings.
The treatment of the park followed the same guidelines of the golf course, minimizing the differences between the private sector and the large outdoor space.
The functions of the house are closed off to the street, and they are generously opened to the parkland on its opposite side.
There is an architectural stance to differentiate both main facades. Two attitudes, one intentionally private and the other more relaxed. The addition of rust steel gives the house a timeless perception.
The external elements of the building such as ramps, terrace and pool serve as anchors that ground the project.

Office Name: Alberto Tonconogy y Asociados
Design Team: Arq. Nicolas Bozzano
Project Location: Pilar, Buenos Aires, Argentina
Completion Year: 2020
Gross Built Area: 350 m2
Constructor: AFG Desarrollos
Photographer: Daniela Mac Adden

2019

2020

Concrete and glass

Arq. Nicolas Bozzano

/