Open Menu
Close Menu
World Architecture Community
WAC
WA Awards
News
Projects
Professionals
Videos
Join WAC
Sign in
Search on World Architecture
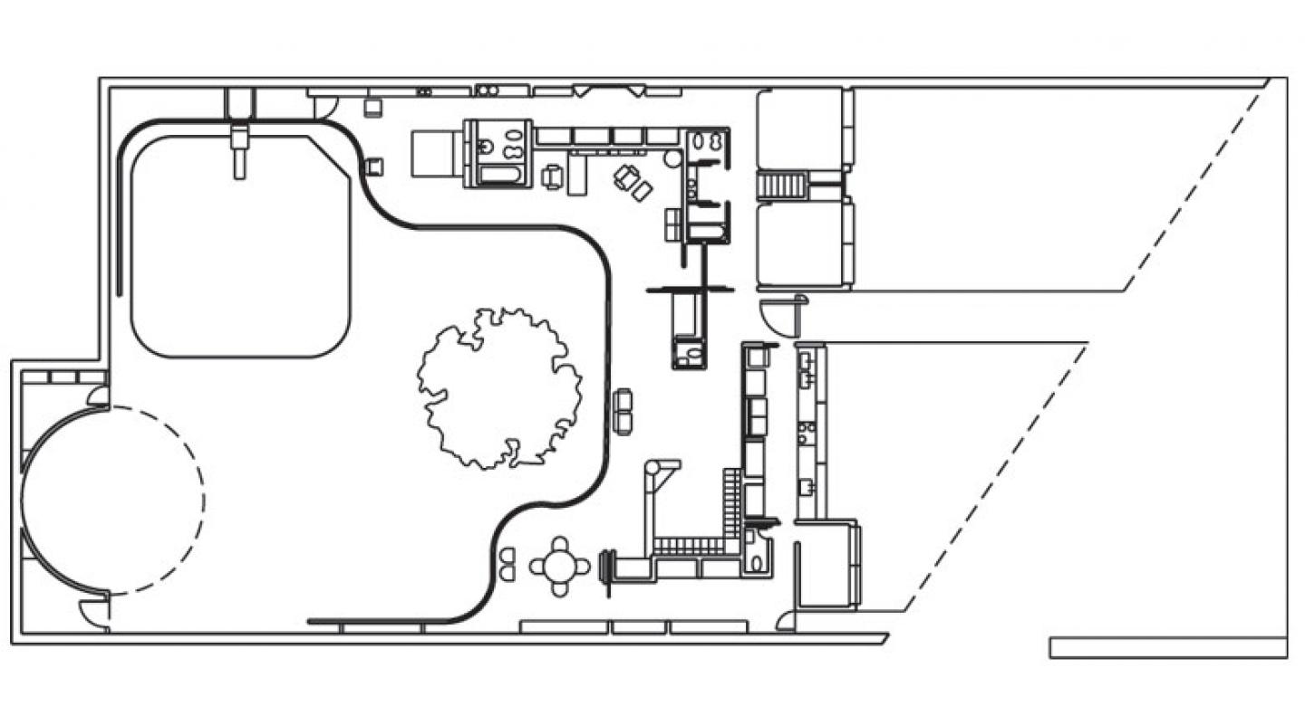
Private House
Rafael Vinoly
Argentina
Architecture
Residential buildings
Single Houses
12,225
page view
Basic
Completed
1967
Oct 13, 2007 - 14:50
/
Oct 13, 2007 - 14:50
Cookie Consent by
Privacy Policies website