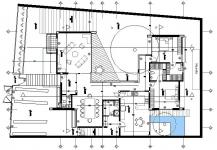
Is the project done for 2 old sisters, who wanted to make a new home for themselves, respecting the existing trees on the site. They also wanted us to consider the design preferences and future needs of their grandniece, whos supposed to live in the same house, some day.

Is for that reason that we consider Time has a special role in this case. Our goal was to combine past and future under the same roof, getting a quite humble balance between tradition and innovation.

2009

2010

María Leonor Andrade: Special Collaborator; Victor Diaz, Jean Maldonado, Cassandra Kortum: Collaborators.

/