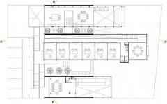
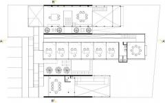
Three boxes – one of crystal, one of wood and one of steel – float over the hill looking for the views of a nature-reserve. The boxes are joined by a concrete element that by means of roof, wall and floor embraces architecture and irradiates nature. A palm-tree garden connects the wooden box and the steel box, and a bamboo garden connects the wooden box and the crystal box. The concrete element lies upon 16 columns in order to generate parking space, maintain the slope of the ground intact and outline the view.
The access is created by means of a ramp that arises over a water body.
The boxes develop the program in a lineal direction, to organize the lawyer`s office, advertising’s office and the architect’s office. The experience pretends to emphasized the entranced to an interior but at the same time extend the views to the green of the landscape.

2003

2004

/

Maricarmen Chavez