Submitted by WA Contents
Center For Psychosocial Rehabilitation In Alicante
United Kingdom Architecture News - May 30, 2014 - 11:54 4495 views

The project refers to a new building to house a Centre for Psychosocial Rehabilitation designed for social-health uses, promoted from the Area of Mental Health of the Provincial Government, in a plot located at the Centro Dr. Esquerdo complex, of the municipality of San Juan de Alicante.

In accordance with the Competition technical specifications, the project attempts to meet the needs derived from the to entities concurring in the same plot: on the one hand, a Residence for people with serious mental disorders that do not require hospitalization; on the other the Centre for Social Rehabilitation and Integration (CRIS) and a Day Centre for persons with serious mental disorders.

The building, therefore, provides an open and flexible residential community service for persons with chronic mental disorders that do not require hospitalization; the users, about 50, live in an internship. On the other hand, the Day Centre is a specialized and specific centre for persons with serious mental disorders, with a great deterioration of their functional capacities and of their social environment, where functional recovery programs and structured activities for the occupation of free time are carried out throughout the day, in an open regime, for a number of up to 25 people. The CRIS, for 50 users, is defined as a centre of specific and specialized services addressed to those persons with a chronic mental illness, with a significant deterioration of the functional capacities, where work programs suitable to the characteristics, needs and specific situation of the users are carried out.

The project, in short, develops the winning proposal of the corresponding de ideas competition, in which all the space and functional needs were grouped together in a single building, in keeping with the architectonic answer to the peculiarities of the plot, and the saving given the superposition of uses and optimization of the use of space, redundant in evident personnel, budget and surface economies.

The scale of the site and the relatively large and peripheral nature of the plot lead to the designing of one storey building, with a semi-basement for a car park and auxiliary rooms, linked to the freeing of a great diaphanous space designed for the creation of a large and well looked after garden.

The volume is designed as a large parallelepiped container, including and organizing the different areas of the programme, with single access and one shared garden recreational area. The relatively important separation of the building with regards to the access street gives importance to the single access to the building. The size of the plot allows extracting a scheme of three areas for different uses. In addition to those related to the exterior and to the garden, there is a wider central bay designed for social activities. A system of patios provides room for the inside of such a deep prism. And it allows achieving a feeling of intimacy, resolving important matters such as the control and movement of the staff, of the users or of the visitors, with the relevant physical and visual filters.

The scale of the public building can be highlighted by the considerable length of the facade. Further than its noticeable setting back a system of adjustable vertical slating controls the sunlight, an objective which is delegated to the suitable trees in the inside facade. The slight difference in the level of the garden reinforces the privacy. In fact, it ceases to be a green area to become pleasant and ambitious oasis.





situation plan

plan1

section1

section2

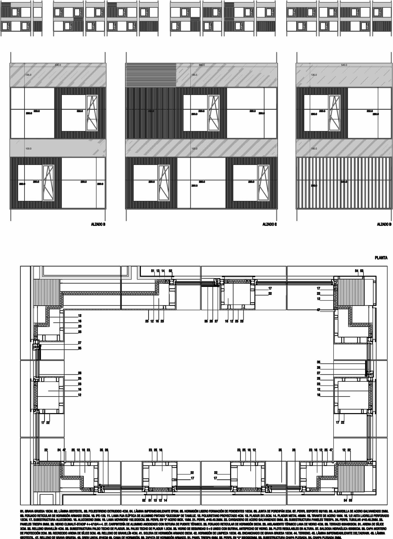
construction details

contruction detail2
Project Facts
Location:Alicante, SPAIN
Architect and construction management:Juan M. Otxotorena & José L. Camarasa
Collaborator architects:Gloria Herrera, Jorge Ortega
Quantity surveyor:José Javier Segura
Structural engineer:Javier Benlloch
Client:Diputación de Alicante
Site area:16.657 m²
Building area:10.403,00 m2
Completed date:February 2014
Photographer:Pedro Pegenaute
