Submitted by WA Contents
Ryuichi Sasaki Architecture built staircase-linked layered housing in Tokyo
Japan Architecture News - May 06, 2024 - 09:46 2333 views

Tokyo-based architecture practice Ryuichi Sasaki Architecture has built a house that stood on one leg on a compact site in Tokyo, Japan.
Named Cuadro Nakano North, the 176-square-metre building is located within walking distance from Nakano Station in western Tokyo.

Image © Bauhaus Neo
The concerete house was designed by Ryuichi Sasaki Architecture, in collaboration with Kiz Architects, Hidetaka Gonai/Escenario, for the client, Nobumitsu Ohashi/Shukou Kensetsu.
Completed in Winter 2022, the building, made of reinforced concrete, it was designed to accommodate residential rental units and parking.

Image © Sherpa
The project reimagines contemporary dwellings in a densely populated, historically rich urban environment with limited per-plot space. Comprising three units, the project emphasizes maximal utilization of natural energy and pursues comfortable livability.
Reflecting Tokyo's historical housing context where areas with small plots still exist, the project stands on such a compact site, measuring 4.7 meters wide and 14 meters deep.

Image © Bauhaus Neo
Despite the constraints of slope limitations and floor-area ratios shaping modern Tokyo's urban landscape, Cuadro Nakano North elegantly balances and optimizes the use of the site.
Given the recent housing challenges in Tokyo, the project tackled the challenging task of accommodating three residential units and parking spaces within this proportionally small site, responding to the site's unique shape and constraints.

Image © Bauhaus Neo
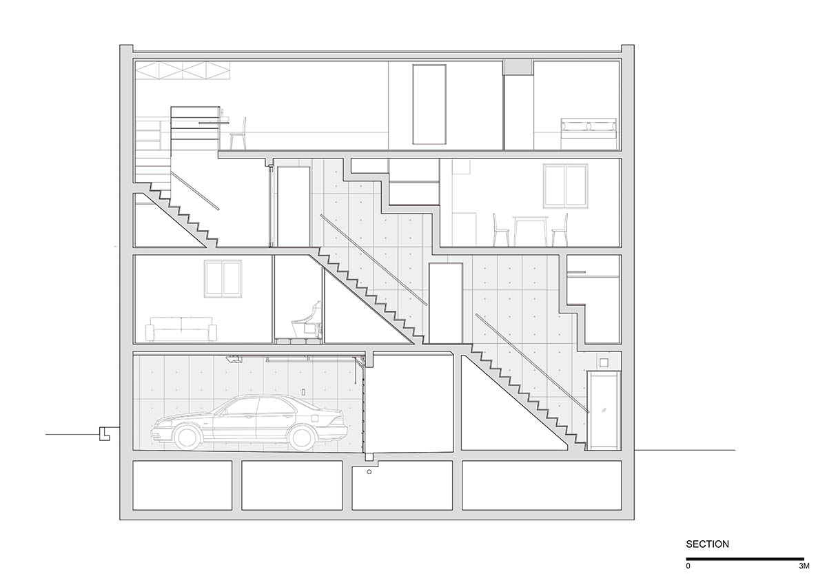
The project involved a single staircase linking up to four levels, utilizing the space efficiently to ensure ample living areas. The staircase, visually integrated within the living spaces, serves as both functional steps and display storage.
Additionally, the top floor incorporates a workspace counter atop the staircase, addressing the demand for remote work in contemporary society. To accommodate two parking spaces, the building elevates on the eastern side, creating a compact piloti and considering potential room for recreational use, ensured by high-side lighting for ventilation and illumination.

Image © Sherpa
Rooms, including the kitchen, feature a minimalist color scheme with unified white fixtures, fittings, and lighting, alongside concrete and white walls. Collectively, it creates an uncluttered, refined ambiance.
High-performance airtight windows, with 1,700 square millimeter openings, facilitate natural ventilation and lighting, minimizing the need for air conditioning.

Image © Bauhaus Neo
The building employs linear lighting to enhance a sophisticated urban atmosphere. Despite slope limitations, the lighting design on the inclined top floor walls creates a contrast of light and shadow, enlarging the space's appeal within its limited area, and ensuring a rich living experience.

Image © Sherpa

Image © Sherpa

Image © Bauhaus Neo

Image © Bauhaus Neo

Image © Bauhaus Neo

Image © Sherpa

Image © Bauhaus Neo

Image © Sherpa

Site plan

Floor plans

Section

Section

Elevation
Project facts
Project name: Cuadro Nakano North
Lead Architect: Ryuichi Sasaki /Ryuichi Sasaki Architecture
Location: 2-8-9 Arai, Nakano-ku, Tokyo, Japan
Site Area: 66,59m2
Building Area: 44m2
Total floor Area: 176m2
Completion Date: January 2022
Collaboration Architect: Junpei Kiz/Kiz Architects
Collaboration Producer: Hidetaka Gonai/Escenario
Client: Nobumitsu Ohashi / Shukou Kensetsu
Architecture Team: Ryuichi Sasaki, Yuriko Ogura / Ryuichi Sasaki Architecture, Junpei Kiz/Kiz Architects, Shinsaku Karasawa/Modelia
Structure Engineer: Tatsumi Terado /Tatsumi Terado Structural Studio
Light Design: Natsuha Kameoka /Lighting Sou
Metal: Shinko Stainless Polishing
Contractor: Nakamuraya Komuten
Video: Hideki Ohashi/Shukou Kensetsu, Ryuichi Sasaki Architecture
Top image © Bauhaus Neo.
All images © Bauhaus Neo, Sherpa.
