Submitted by WA Contents
Tropical Space built an office building with a continuous vertical void in Vietnam
Vietnam Architecture News - Jun 13, 2023 - 14:33 5472 views

Vietnamese architecture studio Tropical Space has built an office building featuring a continuous vertical void in the center to help natural light and airflow throughout the building in Ho Chi Minh City, Vietnam.
Named Premier Office, the 300-square-metre building, made of clay solid brick, steel and concrete, is designed for rent located on a quiet street in Ho Chi Minh City where several other rental offices have been built.

Tropical Space, led by Nguyen Hai Long and Tran Thi Ngu Ngon, aimed to create a building that can maximize the performance of natural lighting without being affected by the negative impact of direct sunlight.
The architects designed the system of doors and windows to be opened when the weather is nice.
Wrapped by brick walls with a concrete structure, the architects divided the functional areas with a continuous vertical void in the heart of the building. This void is aimed to help natural light and airflow going throughout the building.

Office space is arranged on one side of the central void with two facades opening to catch the sunlight and wind. Other functions such as the restroom, storage, elevator and stairs are designed on the other side.
Corridors, spanning the void, connect these two blocks. By connecting the void between the corridors and empty spaces, both vertically and horizontally, the building can create moving light areas and space displacement during the day.

"Many consider the office as a second home where they spend most of their time during the day," said Tropical Space.
"To inspire people working there, the architect endeavored to design an interesting space filled with natural light and ventilation by having a double-layer with a unique “brick curtain” outside, and aluminum sliding glass doors inside."
The building is wrapped by a perforated brick wall structure that rotates at a 45-degree angle to create a buffer layer. This buffer layer helps to reduce the impact of sunlight and creates moving shadows.

The buffer layer, with trees interweaving, contributes to purifying the air and stopping direct sunlight from entering the workspace.
The Premier Office has two opening facades that allow it to make use of natural light and ventilation in order to reduce energy consumption for lighting and cooling the space.

Meanwhile, empty spaces, trees, light, brick, and even rain can create an openness, stimulate creativity, and regenerate the energy of those working there.
With the perforated brick shell, the rotated wall, and the gaps, the Premier Office does not have the feeling of invading the urban space. Bringing an old material like a brick into the project makes the newly-built building blend into the neighborhood itself.







Basement floor plan

First floor plan

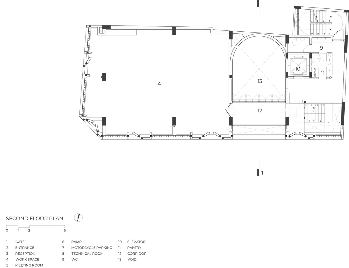
Second floor plan

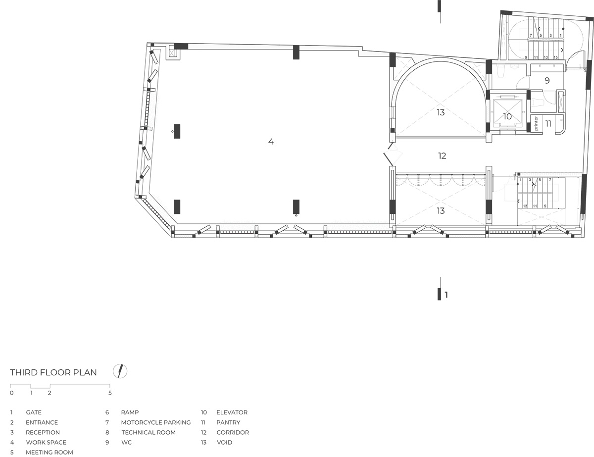
Third floor plan

Roof floor plan

Section
Tropical Space also converted an old house into a new showroom that contains Vietnam's traditional fish sauce and organic products.
Project facts
Project name: Premier Office
Location: 11A Nguyen Van Mai street, Tan Binh district, Ho Chi Minh city, Vietnam
Architects: Tropical Space
Structural Engineer: Bach Ngoc Hoang
MEP Engineer: QCONS
Year: 2018
Finishing: 2022
Construction: Starcon company
Site area: 200 m.s
Building area: 300 m.sq
Level: 07 (1 basement, 1 ground floor, 6 floor
All images © Trieu Chien.
All drawings © Tropical Space.
> via Tropical Space
