Submitted by WA Contents
LubanEra·Design completes Rui Spacetime Concept Store in Shenzhen
China Architecture News - Sep 26, 2025 - 04:31 841 views

LubanEra·Design has completed the interior design of a store in Nanyou, Shenzhen, China. The river of time is compressed into the taut arc of a bowstring at this tense area.
With arrow-like rails cutting through, sleek metal display fixtures like a fully drawn bow, poised to break the serenity of time and space and unite the eternal and the transient in a single, decisive gesture.

The instant a "arrow" leaves the "bowstring" is permanently recorded in the space, changing the structure of the area. Time impressions are left on the floor as its trajectory changes into the guiding play of light and shadow.
Echoing the rhythm of heavenly movement, suspended garments rise and fall with the strain of rails reminiscent of bowstrings, resembling floating slices of time and space.
Inspired by the dynamic trajectory of an arrow cutting the air, LubanEra·Design's Creative Director Bobo Chen transforms this brief action into a potent spatial emblem.

One can sense, the store, named Rui Spacetime, narrative goal of capturing ephemeral moments in time as well as the accuracy of industrial design when fingertips move across the arrow-shaped display rails.
The aesthetics of the "bow and arrow" produce a poetic dialogue between people and space, materiality and time, where each garment becomes a vessel traveling through time.

Creation is revealed through sense; in symbolic presence, one can feel the beat of heaven and earth. A captivating tension between hardness and softness is produced in the room by the sharp coolness of metallic "arrowheads," the warm tactile quality of red travertine, and the coarse granularity of resin-bound stone.
Whereas the latter portrays the warmth of geological sedimentation, the former represents the precise, industrially created edge of metal. This juxtaposition creates a tactile tension and a subtle sensory paradox when touched, suggesting a larger philosophical metaphor of time and space.

Frozen Arrow Motion
The tremor of a pulled bow suspended in motion is captured by the grainy texture of resin-bound stone. The arrowhead-shaped metal supports, which pierce vertically through the space against the coarse, ochre-red backdrop, create a temporal counterpoint to the red travertine's natural folds.
The former represents the eternal freeze of a released arrow, while the latter represents the sedimented strata of geological time. The gray resin-bound stone flooring gently changes tone as the eye follows the arrow's pointed direction, reflecting its imagined route. Time itself is imprinted onto space, and comet-like tails are traced across the spatial surface by narrow light strips buried within the metal structure.

A Realm Where Form and Spirit Intertwine
Here, a profound philosophical impression is produced by the interaction of the material and the immaterial. Every measured inch is a profound and tangible presence that upholds the grandeur of the spatial framework, and everything comes together in a spatial dialogue with mankind.
Like the spirit resonance of the room itself, intangible energy and delicate atmospheres pervade every area, directing the growth of the spirit and the extension of the mind. In order to create a stunning visual symphony that stimulates the body and mind, form and spirit, the concrete and the abstract, blend together without compromising.

Arc of Tension
Similar to the poised alertness of a hunter traversing vast wilderness, the taut arc of the "bowstring" emanates a latent tension. The "bow's" concentrated sensation of power becomes an unseen spirit guide as its curvature spreads in the room.
Materials and shapes come together in the interaction between the bow's extended arc and its resonant tension—bold but quiet, profound yet restrained. They become conduits for the human inner world, composing a symphony of beauty and strength that goes beyond simple form or color.

A New Chapter in the Commercial Realm
Stone's primordial genuineness is enveloped by time and place. A raw, rugged, and resonant visual tension is created by the interaction of two red-toned stones, bringing the primal force of natural aesthetics into the business setting.
The soft clothing fabric adds to the space's richness, while the stiff "bow" serves as the skeleton of time. Each piece of clothing crystallizes the exact instant that stress meets balance as it floats on the bowstring and catches the glint of metal. Customers' perceptions of the items are enhanced by these design techniques, which produce a strong, competitive brand identity that evokes both an emotional bond and intuitive familiarity.

Customers experience their actual selves in this specially designed area—unrestricted by outside forces, surrounded by a landscape that embodies both the privacy of contemplation and the immensity of the cosmos.
Here, borders collapse, and each individual becomes part of a peaceful dialogue with time and space, gaining a glimpse of the genuine self.









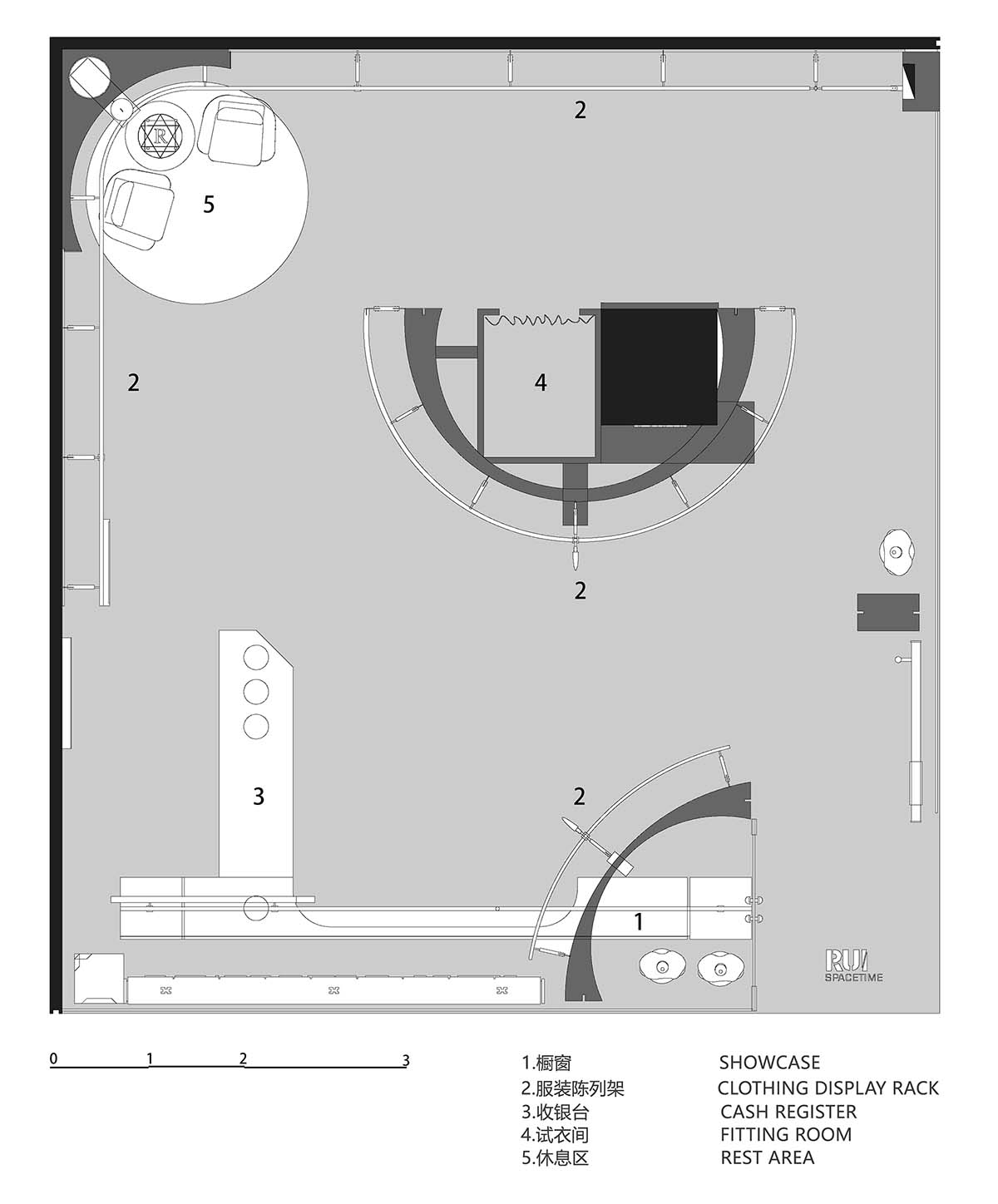
Floor plan

Section

Section

Axonometric exploded diagram
Project facts
Project name: Rui Spacetime Concept Store
Location: Nanyou, Shenzhen
Design firm: LubanEra·Design
Area: 80m2
Completion: October 2024
Creative director: Hongbo Chen
Design Team: Zhang Le, Liu Zhixin
All images © Nie Xiaocong.
All drawings © LubanEra·Design.
> via LubanEra·Design
