Submitted by WA Contents
MoDusArchitects celebrates 100 years of hazelnut wafer with transformation of flagship store
Austria Architecture News - Oct 10, 2025 - 12:12 874 views

As it commemorates the 100th anniversary of its famous dessert, the well-known manufacturer of hazelnut wafers is reaching a significant milestone.
The company has commissioned MoDusArchitects to completely revamp its main store in honor of this centenary jubilee.

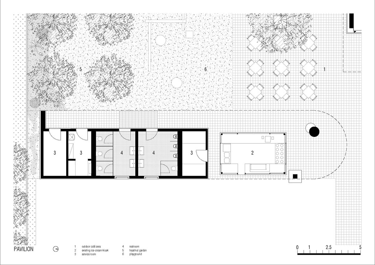
The café, store, and pastry studio have all been completely restyled as part of the refurbishment, which will improve guests' overall experience. The construction of a remarkable outdoor pavilion recently elevated the architectural adventure to new heights.
This unusual building, which is shaped like a truncated oval, blends in perfectly with the ice cream stand, the Hazelnut Garden, and a recently constructed playground.

The pavilion is constructed with elegant stainless steel panels and dark-stained vertical oak boards with classic rhomboid cuts. In addition to creating a striking visual impact, this combination has several uses: it shields the ice cream stand behind its sturdy concrete canopy, housing extra amenities, and acts as a barrier against the nearby parking lot.

The flagship store has been transformed into a must-visit location for both design enthusiasts and fans of the brand's renowned wafers thanks to the new pavilion, which perfectly captures the architectural vision of the Loacker Galaxy.

With these advancements, Loacker is poised to celebrate a century of deliciousness and further cement its place in the hearts of its patrons.






Floor plan

Floor plan

East elevation

North elevation

West elevation
MoDusArchitects completed the transformation of the brand's flagship store in Heinfels, Austria. In addition, the firm designed a new sports facility, making a bold statement with its 11-metres high lighting tower in Bozen, Italy.
All images © Marco Cappelletti.
All drawings © MoDusArchitects.
> via MoDusArchitects
