Submitted by Parisa Ziaesaeidi
A staircase that brings the family together by Sam Crawford Architects
Australia Architecture News - Dec 29, 2025 - 05:18 890 views

At the heart of this renovated home is a luminous staircase that ties everything together. The staircase connects the different levels of the home, creating expansive views while also creating small, quiet nooks to pause, sit or play.
Designed by Sam Crawford Architects (SCA) for a young family in Sydney’s eastern suburbs, Waverley House is a home built around connection with nature, with each other and with everyday life. Throughout the home, thoughtful details encourage moments of play and relaxation with continuous views of the surrounding trees and garden.
"The design responds to the changing needs of the family. This is a home that allows everyone to connect, while still having their own space," said SCA Senior Associate and Project Architect Jared Grace.

The original house was a modest 1950s bungalow on a heritage street lined with mature Moreton Bay figs. Rather than expanding outward, the architects kept the existing footprint and walls. At the rear, the ground floor was lowered to meet the garden, allowing the main living spaces to sit directly within the landscape. Two split levels were then added above.




This layered layout creates a series of overlapping spaces. Window seats, cosy nooks, and even a mesh hammock offer places to slow down and relax.
"From almost anywhere in the house, there’s a visual connection to the garden or tree canopy," said SCA Associate Charly Watson.

The entry is calm and sheltered, offering a gentle transition from street to home. Once inside, views are carefully framed through the house and out to the garden beyond. At the centre, the staircase acts as more than just a means of getting up and down. It is where the house comes together. Made from spotted gum and lit from above, it draws natural light deep into the home and creates shifting shadows throughout the day.
Living spaces are placed towards the garden, while quieter rooms sit at the front, offering a subtle separation between shared and private areas. Upstairs, the split levels help define parent and child zones while keeping everyone connected.




For the family, this layout has transformed daily life. “The way the spaces link together has made family time richer," they said. "The house feels calm and restful, but also playful. The nooks are used for reading, chatting, hiding, and just being together."
Externally, a new charred timber addition wraps the upper level, offering a contemporary contrast to the original home while still fitting comfortably into its leafy surroundings.

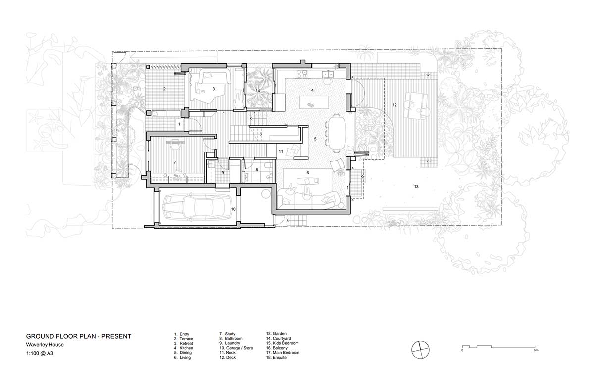
Ground floor plan

First floor plan

Front elevation
Project facts
Client: Undisclosed
Location: Bidjigal & Gadigal Country / Waverley, NSW
Status: Built 2024
Project Team: Sam Crawford, Jarad Grice, Charly Watson, Jacqui Singer
Builder: Build By Design
Consultant Team
Structural Engineer: Structure Consulting Engineers
Hydraulic Consultant: ITM Design
Landscape Consultant: TARN
Quantity Surveyor: QS Plus
Council: Waverley Council
All images © Brett Boardman.
All drawings © Sam Crawford Architects (SCA).
> via Sam Crawford Architects
