Submitted by WA Contents
Mix Architecture completes Red Box Exhibition Center in Nanjing, China
China Architecture News - Mar 09, 2026 - 05:06 1923 views

Mix Architecture created the Red Box, which is composed of red concrete. "Red" reacts to its surroundings, which can signify three different things.
The "red" of chronological memory is the first thing the Red Box reacts to. Founded in the 1950s, Red Mountain Park—formerly known as Nanjing Combat Machinery Factory—has witnessed the rapid growth of the New China. The development of several generations has been accompanied by the "red" memory.

Red Box by Mix Exterior view-Architecture. Photography © Arch-exist
Second, Mix Architecture chose to create the Red Box as a distinctive structure that echoes the factory's rhythm in response to the "red" of the original red brick building in the Red Mountain Park factory area.
Wooden templates are used to pour red concrete, and the wood texture's size is comparable to that of already-existing red bricks.

Red Box by Mix Aerial view-Architecture. Photography © Arch-exist
Lastly, the structure reacts to Red Mountain's "red" as well. Its original name was not Red Mountain. Known as the "Great Spectacular Mountain" during the Six Dynasties period about 1,500 years ago, Emperor Chen Xuan once examined Xuanwu Lake's water training.
Hematite was found at Red Mountain during the Republic of China era when people noted the scarlet of the mountain soil.

Red Box-Exhibition Hall and Water courtyard-by Mix Architecture. Photography © Arch-Exist
The "Great Spectacular Mountain" was thereafter dubbed "Red Mountain" as a result. The "Detailed Map of Nanjing Streets" showed "Red Mountain" as its official name in 1948. Iron oxide, which is the primary ingredient in "red" concrete, is the primary component of hematite.
The red box, which resembles a rectangular volume floating on the horizontal courtyard wall, is situated at the base of Red Mountain and has a sizable solid wall facing the park on the north side. In order to allow nature to blend into the structure, the terraces on the south side are stepping backward, mirroring the Red Mountain.

Red Box, Water courtyard, by Mix Architecture. Photography © Haiting Sun
The driveway winds into the building through a triangular carved in the courtyard wall, concealing the structure's entrance. Facing the six-fold staircase, the entrance area is elevated.
The largest courtyard in the red box is on the west side, which is also a public area that blends in with the courtyard next to it. In the courtyard, a big tree has been kept.
The Red Mountain Forest is reflected into the courtyard by the trees and water waves, and the reflecting pool is encircled by corridors. It's more secluded on the east side.

Red Box, Opening Reception, by Mix Architecture. Photography © Yuanyuan Zhao
There is a tiny courtyard on the north side and an evergreen pine courtyard on the south side. The corridor, which resembles a bridge, links the two usable areas on the second floor as you ascend the stairs. You can glimpse the greenery of the red mountain when you stand on the bridge and look south.
The acrylic semi-permeable material that makes up the two major walls of the two areas on the second floor appears to be sporadically implanted in the red concrete wall.

Red Box, Inner courtyard, by Mix Architecture. Photography © Arch-Exist
The dot-shaped one lets light in and out like a starry sky; the brick-like one uses openwork bricks that go well with the park's red brick buildings. The building becomes a frame as the red mountain blends into the red box as it rushes into view from the interior to the expansive terrace.
Several concrete block pouring tests are used to determine the concrete's red hue. Once the hue and texture satisfied the design specifications, a computer precisely regulated the raw material ratio during formal construction to guarantee that the color was impartial.

Red Box, Stairs Space, by Mix Architecture. Photography © Xiaobin LV
The architecture, interior design, and landscape design are all done simultaneously, and the construction and design are quite industrialized. The red box blends interior and outdoor spaces and is delicate and beautiful, much like a mechanical object.
In order to do that, the designer collaborated closely with numerous producers of concrete, windows, air conditioning, lighting, and numerous other systems to make sure that every component interacted with the others.

Red Box, Stairs and external landscape, by Mix Architecture. Photography © Xiaobin LV
The original goal of design was to provide durability. As a result, throughout the entire design concept, the manufacturers and designer collaborated closely. In order to ensure that the shape, space, lighting, and equipment would all fit perfectly and that the final product would last over time, the producers met the strict requirements.

Red Box, the corridor on the second floor by Mix Architecture. Photography © Xiaobin LV

Red Box, exhibition arrangement by Mix Architecture. Photography © Arch-Exist

Red Box, exhibition-by Mix Architecture. Photography © Arch-Exist

Red Box, exhibition-by Mix Architecture. Photography © Xiaobin LV

Red Box, exhibition-by Mix Architecture. Photography © Arch-Exist

Red Box, night View Details by Mix Architecture. Photography © Arch-Exist

Red Box, luminous wall by Mix Architecture. Photography © Arch-Exist

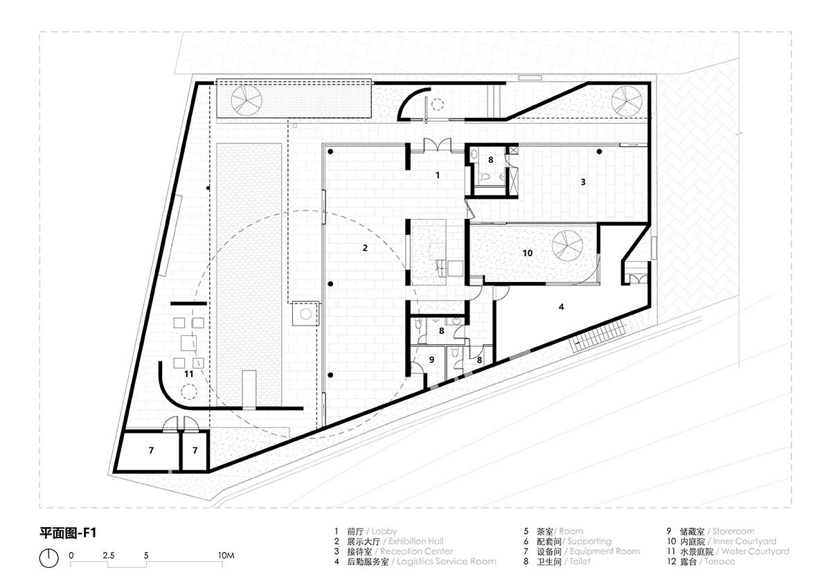
Floor level 1

Floor level 2

Section

Section
Founded in 2016, Mix Architecture is committed to exploring the possibility of architecture in various contexts to respond to the most primitive emotional and spiritual needs of human beings.
Project facts
Project name: Red Box
Project location: Huangjiayu Drive, block 41-1, Hongshan high-tech factory, 16th block, Gulou district, Nanjing, China
Project Owner: Nanjing Construction Machinery Works, Co, Ltd.
Project director: Mix Architecture
Design team: Suning Zhou, Ziye Wu,Ke Yang, Tao Tang
Structural Consultant: Shanghai Wilderness Structural Des. Firm Inc.
Lighting consultant: lumia lab
Construction drawings design: Nanjing Xinghua Architecture Design and Research Institute Co, Ltd.
Landscape construction drawings design: Nanjing 2nd Architecture Design Institute Company
General contractor of construction/ fair-faced concrete: BETONBAU Shanghai Kejian New Materials Technology Co., Ltd
Systematic windows and doors: VBM architecture
Terrazzo: EST Building Materials Technology Co., Ltd
Construction Area: 500 square meters
The top image in the article: East Facade. Image © Haiting Sun.
All drawings © Mix Architecture.
> via Mix Architecture
