Submitted by WA Contents
Kivinen Rusanen Architects built a substation featuring a patterned brick façade
Finland Architecture News - Jul 05, 2024 - 13:01 4696 views

Finnish architecture practice Kivinen Rusanen Architects has built a substation featuring a patterned brick façade.
Named Tammisto Electricity Substation, the 1,705-square-metre is located in Vantaa, Finland, and it has provided decades of central power grid service to the Helsinki metropolitan area.

View of the new substation building from the Northeast
It was necessary to update the site's oldest systems in order to increase their capacity, reliability, and security. In order to accomplish this, a large, aging air-insulated switchyard was replaced by a new structure designed to house a 110 kV Gas-Insulated Switchgear (GIS) system by Fingrid Oyj, the main grid operator of Finland.
In addition, new powerline structures, fences, a backup generator, lush landscaping, and new vegetation were built as part of the project. In order to minimize interference with ongoing substation and grid operations and to guarantee a seamless transition, the construction process was carefully phased.

The project also permits the substation's capacity to be increased in the future, future-proofing it against the rising demand for electricity.
"The architectural goal was to give a unified appearance to the new and newly improved buildings and structures on the site, which also follows the objectives and regulations of Vantaa City's town plan," said Kivinen Rusanen Architects.
"The design of the new substation building seeks to blend with a former historic substation and adjacent residential area, featuring facades of water-struck bricks with a lively variety of warm colour tones and textures."

Partial view of the West facade. Image © Max Plunger
The site is fenced in with a controlled gate to prevent public access. It is situated close to the Helsinki airport, commercial districts, residential neighborhoods, and major transportation routes. It consists of a number of structures, each with its own special qualities.
The plot has numerous buildings and other structures, each with special qualities. Constructed in 1947, the most famous and iconic structure is the former substation designed by Aarne Ervi.
This building is low and long, with a tall transformer tower at one end and elaborate facades made of red brick and tiles for a roof. The building has been transformed into an office complex and is safeguarded by the zoning laws of the city.

The South Section of the new substation building, with the main entrance at the corner of the two facades
Other facilities at the substation site include power transmission structures, transformer bunkers, open switchyards, and a 400 kV switchgear building. On the property, there are tall trees and areas of preserved forest.
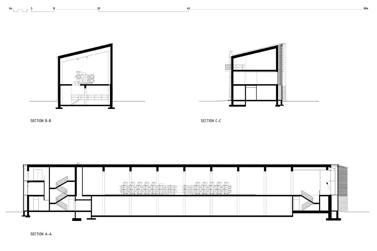
Through its scale, massing, and facade materials, the new substation building's architecture seeks to establish a connection with the historic substation building. It also attempts to match the scale of the nearby residential area. The triangular cuts in the mass of the new building are an homage to the two-part composition of the old substation.

View of the new substation building from the Southwest
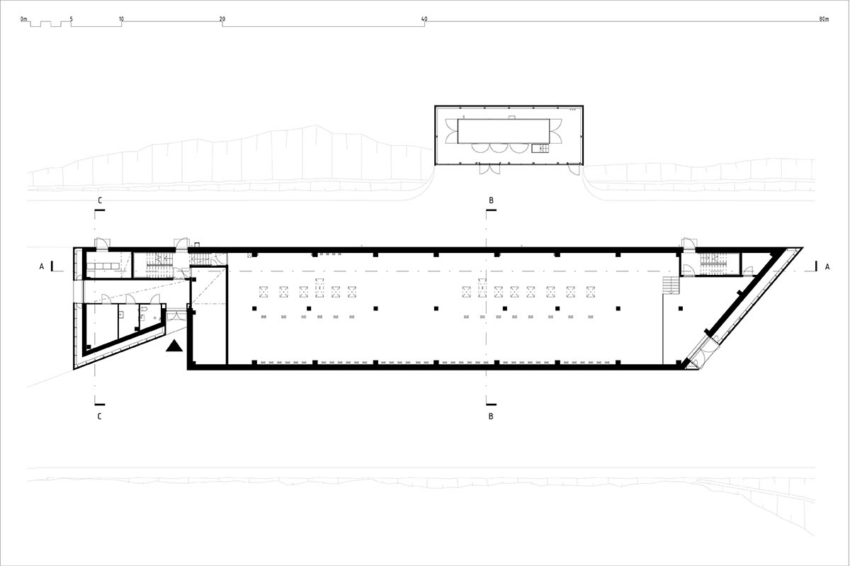
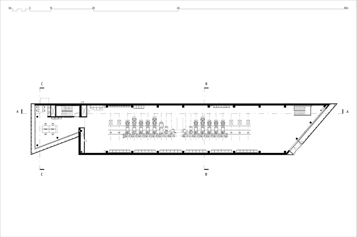
These cuts define three distinct sections that run the length of the building. There are sections at each end that give access to the building and services that run the entire structure and its systems.
The main process equipment and cable rooms are located in the long center section. The main GIS and control rooms are located on the second floor of the two-story building, which has serving spaces on the ground floor. The control room is beneath the machine room.

Corner detail view showing three different masonry patterns
Water-struck bricks are used in four distinct masonry patterns on the facades of the new building, emphasizing the massing and spatial arrangement. Thirteen distinct custom brick types were needed to detail the various masonry patterns around right-angle, tight-angle, and wide-angle corners and openings.
The supplier created the necessary molds for every type of brick after using detailed 3D models of the brick facades to create drawings for each type. Prefabricated concrete makes up the building's frame, and a steel frame positioned inside a cavity supports the double-skin facades.
Natural light is provided to the north and south sections by full-height glass curtain walls that are set back by approximately one meter from the double-skin lattice masonry walls.

The double-skin cavity of the facade in front of the control room
The main equipment room receives indirect natural light from the spaces at either end, while the center section lacks windows. In addition to meeting the client's safety requirements, the lattice masonry blocks direct outside visibility into the substation while allowing natural light to flow through.
"The design brief also included improving two concrete transformer bunkers from the 1980s," the office explained.
"Their facades were treated with Umbra colour patination, in which the patina's reagents penetrate the surface of the concrete and react with the cement to form reddish-brown, rusty-coloured compounds."
"The differing but harmonious reddish bricks used on the facades of the old and new substation buildings, combined with the earthy and rusty tones of Cor-Ten steel and Umbra-treated concrete, give the various structures of the substation site a warm, unified outlook," the office added.

The control room on the first floor
The existing switchyard and power lines continued to function during construction, and the new substation building is situated on the western edge of the property.
Following the completion of the technical installations, the outdated power line structures and air-insulated switchgear were removed from the property.

The main equipment room on the first floor
The Tammisto Electricity Substation project seeks to give an architectural image to sustainable urban infrastructure development. It contributes to society's electrification, provides a reliable power supply, and aims to improve the aesthetic and cultural integrity of the site and the surrounding landscape.

North-West corner of the new substation building with the old substation in the background. Image © Max Plunger

The Umbra-treated existing transformer bunkers

Site view facing South. The new substation is on the right, and the old, former substation is on the left

The main equipment room on the first floor. Image © Max Plunger

Site plan

Ground floor plan

First floor plan

Second floor plan

Sections

East-West area section through the site, facing South

Custom brick diagrams
Project facts
Project name: Tammisto Electricity Substation
Location: Vantaa, Finland
Client: Fingrid Oyj
Client's project manager: Jarmo Henttinen
Lead Architect: Tuomas Kivinen
Design team: Anna Blomqvist, Maria Karjalainen
Completion: 2023
Total floor area: 1,705m2
Construction costs: 6,1M Euro
Top image in the article: Partial view of the East facade.
All images © Tuomas Kivinen unless otherwise stated.
All drawings © Kivinen Rusanen Architects.
