Submitted by WA Contents
y.ad studio completes Baihua Commune within Tangchi Town, China
China Architecture News - Mar 24, 2025 - 06:16 1827 views

Shanghai-based architecture practice y.ad studio has completed a community building within Tangchi Town, Anhui Province, China.
Named Baihua Commune, the project is located in Tangchi Town, Anhui Province, northeast of Baihua Village, in a charming valley encircled by mountains.
The region, which is around 70 kilometers from Hefei City, is distinguished for its undulating landscape and buildings in the Hui style. The location has a certain pastoral beauty because it is surrounded by farmland and agricultural cultivation.

The story of Princess Baihua is well-known in the area. Born a girl, she had early instruction from her father and brothers in both literature and martial arts, and she demonstrated exceptional swordsmanship and battle abilities. She gained notoriety as she grew older for her courage, insight, and skill in both the literary and military spheres.

Her inherent beauty is considered to outweigh hundreds of flowers, which is why she was given the moniker "Princess Baihua." In the neighborhood, "Princess Baihua" came to symbolize bravery, self-assurance, and the resolve to battle. She also became a symbol of intelligence, beauty, and chivalrous spirit.

The term "commune" denotes solidarity and convergence, while the project name "Baihua Commune" is derived from the local legend of Princess Baihua.
Baihua Commune is situated at a pivotal point in the first phase of development as a separate entity inside the broader Tangchi Pastoral Hub project, a pastoral complex that combines hot spring therapy, agricultural tourism, and farming experiences. As the focal point of this space, it establishes the mood for the entire development and serves as a center for identity representation and meetings.

The Tangchi Pastoral center project's public lounge, Baihua Commune, is positioned as a space for co-creation, fusion, and gatherings. It represents a unique spirituality in addition to meeting the needs for social interaction, economic incubation, and a service hub for the farmhouse headquarters region.
This room, which can accommodate 70–80 people, is mostly utilized for meetings, small get-togethers, teamwork, and temporary exhibits. Additionally, it will be crucial in showcasing the Tangchi Pastoral Hub project in the future.

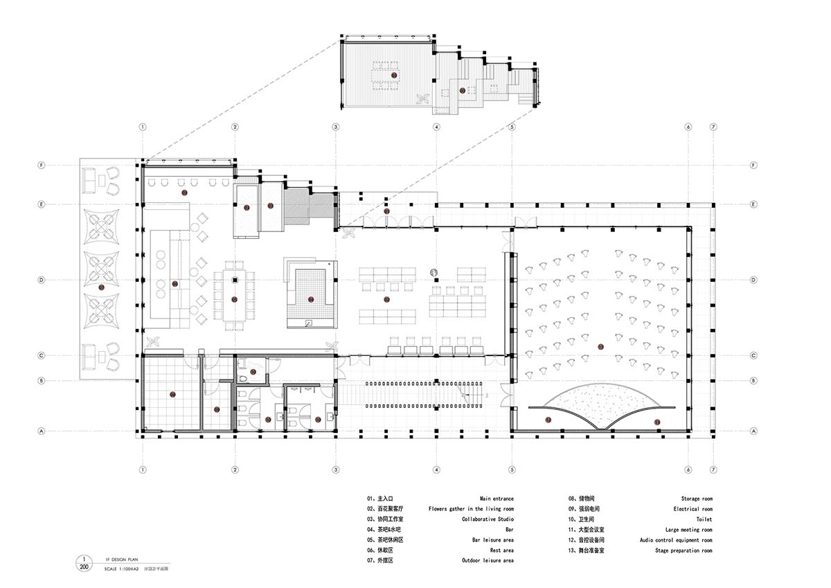
Three themed sections make up the building. With amenities including a tea bar and recreational areas, the first-floor "Wheatfield Conference Hall" and "Wheatfield Tea House" provide areas for sizable meetings, get-togethers, and cooperative seminars.
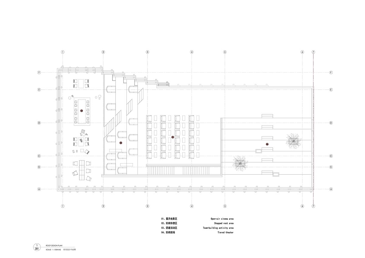
In order to provide guests with a well-rounded recreational experience, the roof terrace is designed as a "Rooftop Carnival," a multipurpose space that includes an outdoor movie theater, a stepped rest area, a tiered theater, an outdoor bar, and a team-building activity area.

The architecture's natural location, surrounded by rice fields, is reminiscent of Van Gogh's Cypress Trees. The interior color scheme was chosen with inspiration from the painting, and the artwork was discreetly incorporated into the layout of the room.
Flowers were selected as the main motif of the "Wheatfield Conference Hall," with their forms and meanings reflected in the building's construction, materials, and furnishings, in order to emphasize the space's spirituality.

The conference room is energized by colorful gradient acrylic surfaces, and the play of light and shadow gives the space a whimsical touch while also adding emotional and spiritual depth. People, light, nature, and architecture all engage in a calm and peaceful conversation that creates a profound and enthralling spatial experience.

The main idea behind the architect's design is to use color to create a social and artistic haven in a natural setting.
Reflecting the lively energy of life, this area seeks to communicate the ideas of upward growth, an artistic lifestyle, and a love of environment. It encourages people to rediscover and appreciate nature by showcasing the beauty of life and art.









Site plan

Floor plan

Floor plan

Axonometric drawing

Section
y.ad studio also converted a former architectural complex consisting of a former hospital and several old factory dormitories into a homestay hotel, offering bed and breakfast. In addition, the firm transformed a former office building into a light-filled conference center in Kunshan, China.
Project facts
Project name: Baihua Commune
Developer: People's Government of Tangchi Town
Client: Beijing New Pastoralism Operation Management Co., Ltd.
Design firm: y.ad studio
Construction drawings: Jiangsu Zhongfa Architectural Design Co., Ltd.
Construction firm: China Construction Second Engineering Bureau. Ltd. (Anhui Branch)
Project area: 751.73m2
Design phase: Oct. 2023 - Feb. 2024
Construction phase: Mar. 2024 - Jun. 2024
All images © Alice.
All drawings © y.ad studio.
> via y.ad studio
