Submitted by WA Contents
The stone and wood Tbilisi residence integrates architecture with the natural landscape
Georgia Architecture News - Jul 22, 2025 - 10:39 2051 views

Georgian architecture studio NS STUDIO has built a stone and wood residence that integrates architecture with the natural landscape in Tbilisi, Georgia.
Named House In Tvaladi, the house is located in the town of Tvaladi, a newly finished private home combines traditional building materials with modern architectural shapes.
The single-story home features open, contemporary volumes, large-format windows, and wood and stone construction that blend the interior with the exterior.

Integration of old and new
The aim of the project was to combine modern and traditional elements. The stone façade and contemporary architectural components silently place the house in its local and historical setting.
Interior and exterior areas are visually and materially continuous thanks to the one-story volume's construction, which combines wood and stone throughout the house.

Material palette and natural connection
A key component of the project is based on the use of natural materials. The overall usage of wood and stone creates a cozy and grounded ambiance.
A strong connection between the architecture and the nature is created by the large-format apertures in the façade that open the building to the surroundings and let light and views into the room.

Interior atmosphere
The harmony of rough and sophisticated elements defines the interior. Finishes, which range from polished details to raw surfaces, are selected based on their texture and visual contrast.
A coherent interior with a range of tones and textures is the outcome of this careful material selection.

Interior furnishings and lighting
The house's furniture, which is mostly made of wood and natural fibers, reflects the overall material concept. Without overpowering the room, the furniture's straightforward design blends in with the architectural language.
By employing gentle, indirect light sources that highlight texture and foster a serene, welcoming ambiance, mood lighting is incorporated to further accentuate the warmth of the materials.

Site layout and additional structure
A cellar that is perpendicular to the main house is another feature of the design. While keeping the same architectural language as the main volume, this area fulfills a utilitarian purpose.
Its positioning and layout support the site's overall spatial harmony and foster a feeling of architectural coherence throughout the property.

The private residence in Tvaladi is an example of an architectural style that honors the landscape, materials, and setting. The project strikes a delicate balance between the past and present, the inside and exterior, and architecture and nature by utilizing historic materials in a modern way.



















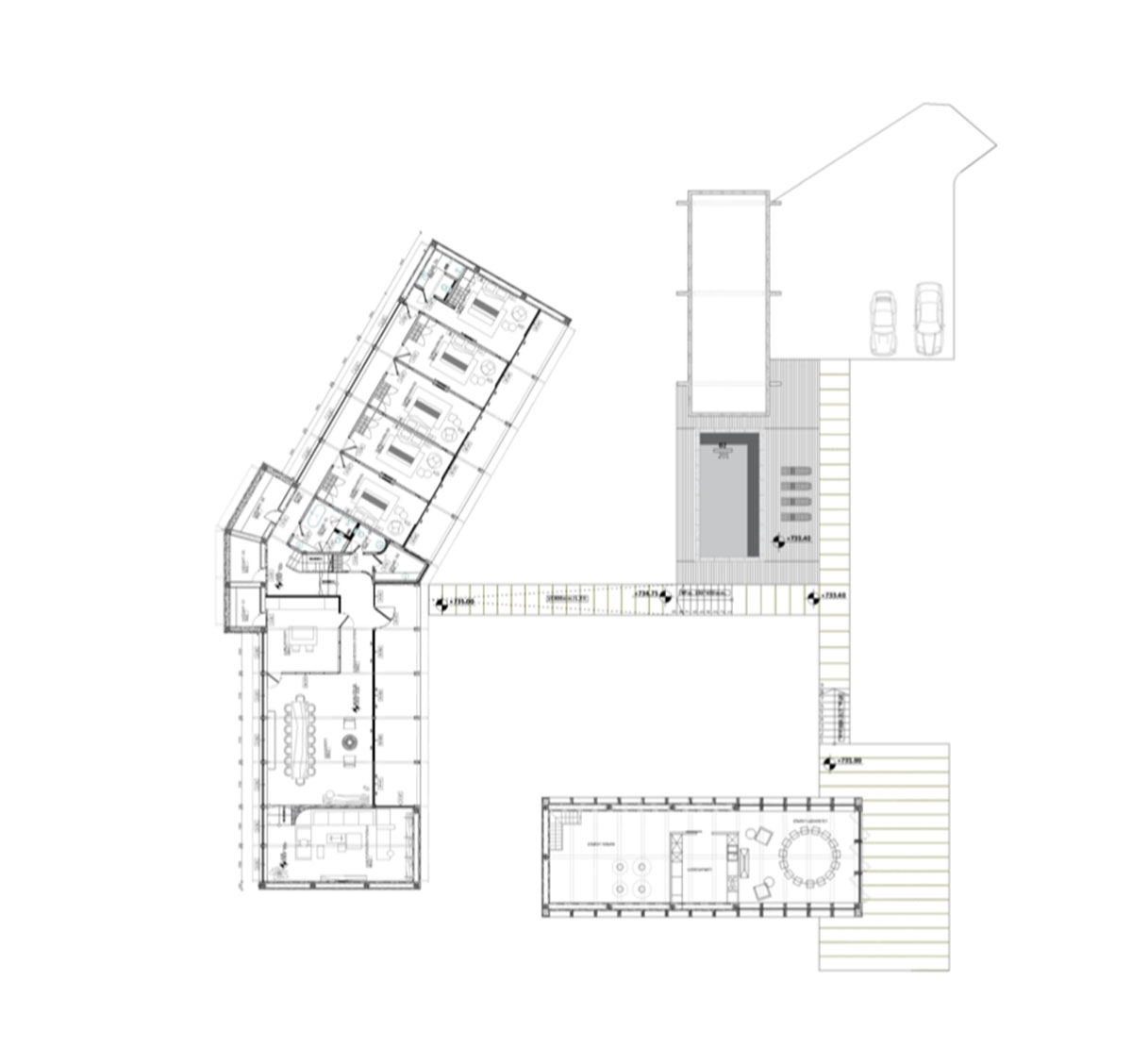
Site plan

Floor plan

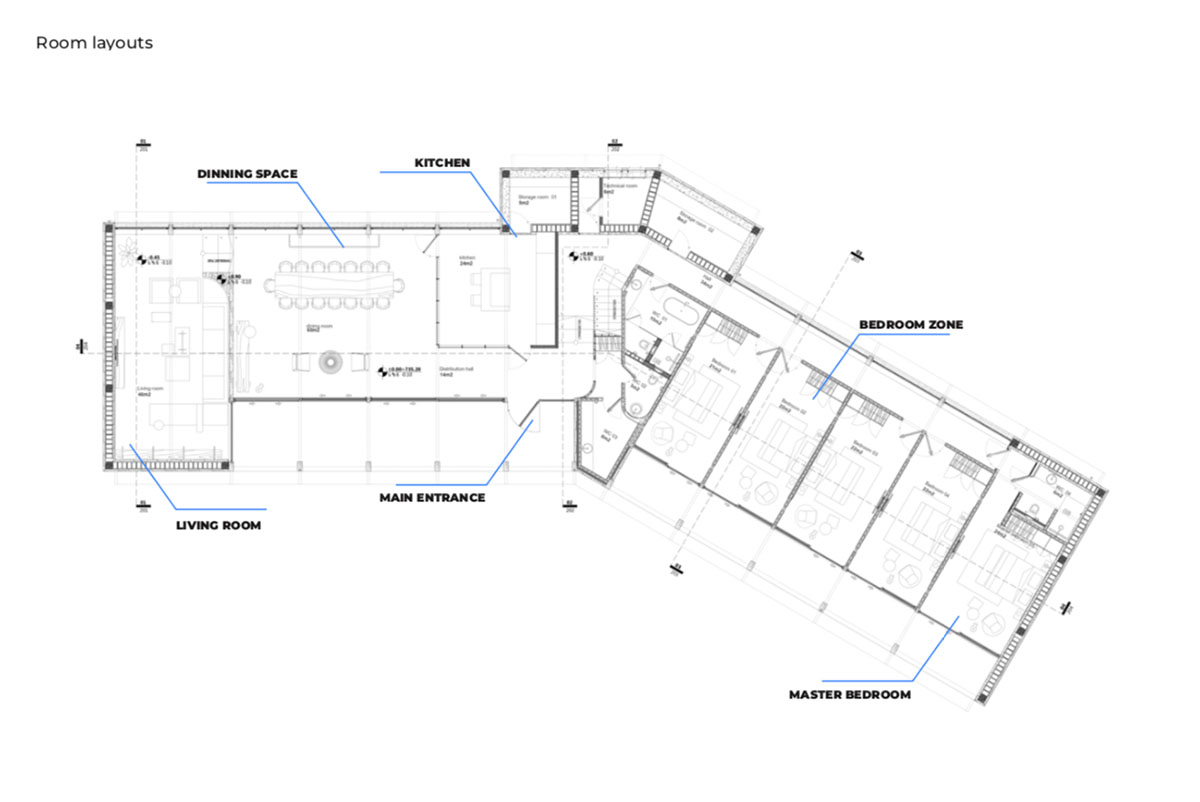
Room layouts

Section and elevation
NS STUDIO Architecture & Design, founded in 2013 by Luka Chaganava and Nini Tchanturia, has a clear mission: to create high-grade, captivating, and original works in architecture and design.
Project facts
Project name: House in Tvaladi
Location: Village Tvaladi, Kaspi region, Georgia
Client: Private
Architects/designers: Nini Tchanturia / Luka Chaganava / Mariam Karchkhadze / Vakhtang Tskhovrebashvili
Project Manager: NS STUDIO
Design team: NS STUDIO
Suppliers: Nemo, Marset, Riva 1920, Capdell, Ton, NS Product, Vibia, Iakami, Kamara stone, Ferm Living.
Lighting Designer: Light Studio
Project completion date: 2023
All images © Grigory Sokolinsky.
All drawings © NS STUDIO.
> via NS STUDIO
