Submitted by WA Contents
Jan Žaloudek Architekt converts a Baroque barn into a light-filled house with perforated gable wall
Czech Republic Architecture News - Apr 18, 2025 - 10:50 3104 views

Czech architecture studio Jan Žaloudek Architekt has converted an old Baroque barn into a light-filled house with perforated gable wall in the Kamenná Lhota, Czech Republic.
Named House Oskar, the 180-square-metre house is located on the South Bohemian settlement of Kamenná Lhota. The architect Jan Žaloudek created the House Oskar, which was constructed on a spacious garden that had once belonged to the nearby chateau.

The remains of a Baroque barn, old trees that date back centuries, and a stone wall that encloses the large property and opens into the charming countryside all contribute to the site's extraordinary genius loci.

Contemplation, Inspiration, Recreation
The architect constructed the home for himself and his family, emulating the ideas of reflection, inspiration, and leisure.
He and his spouse, art scholar and author Jolanta Trojak, had long envisioned a location where people might reconnect with nature or withdraw inward to regain their mental and physical fortitude.
In addition to encouraging relaxation, they wanted the area to be a source of inspiration and creativity, two things that are essential to their daily existence.

They built an environment where even the most basic daily activities may be transformed into brief but meaningful experiences by paying close attention to every little detail.
The House Oskar is a singular microcosm—a peaceful haven where people may read, write, eat, and create in harmony with the cosmos beyond their windows.

Perfection, Imperfection, Timelessness
The physical characteristics of the area and the limitations of constructing on a site that is protected by cultural heritage influenced the design of the house. In order to avoid overpowering the château and to give it a timeless quality, the architect meticulously incorporated the building into the surrounding environment and historical setting.
The final building, which was inspired by the concept of a chapel—lacking in the village—is a tasteful fusion of inside and exterior, modern and ancient, perfection and imperfection.

By referencing the vocabulary of regional agricultural structures, the design honors the traditional elongated shape of homes with gabled roofs. The distinguishing characteristic of the building is its perforated masonry, which features air and light holes present in neighboring historic buildings.
The wooden shading panels on the other façades are inspired by this element, which also serves as a sunshade for the southern gable wall. Niches on each façade—allusions to Baroque morphology—permeate the house's compact form. These niches provide adaptable shading by forming loggias and entry vestibules.
The house can either seal off to emphasize its meditative quality or open completely to the surroundings, bringing its occupants closer to the outside world.

The materials used in construction respect the regional identity of the nearby buildings and scenery. Reinforced concrete components and insulated ceramic masonry make up the load-bearing structure.
The white stucco facade mimics the texture and color of nearby structures. Whitewashed Czech fir and spruce are used to make the shade panels, and fired ceramic tiles cover the roof.

Natural Cycles and Light
Natural cycles and the passage of daylight are closely linked to daily life in the home. Residents may see the dawn and moonrise from the bedroom and the main living area, which opens onto a panoramic view of the orchard.
The social area is connected to the courtyard and the barn ruins by the southern façade, which features an amazing circular window and a perforated gable wall. Huge openings that flow into wooden terraces, lush foliage, and the cool embrace of old stone walls perfectly blend the indoors and outside.

The home is protected from village views by its entry alcove on the western façade. Echoing the curving shapes of the neighboring Baroque château, a domed niche in the northern gable lets light into the utility, bathroom, and bedroom areas.
White shade panels can be used to control the amount of sunlight that enters the house during the day. A sunny room can be transformed into a mystical, enclosed area with captivating light and shadow play in a matter of seconds.

The light changes direction at night, and the home beams into the surrounding landscape, lit by its incandescent recesses. Japanese washi paper lanterns and the flickering light of a wood-burning fireplace are used to enhance the interior's basic white lighting fixtures.

Sacred Inspiration
There is an original interior behind the house's classical morphology. Warm and rounded, the interior contrasts with the white exterior. Its holy theme is highlighted by the main space's unexpectedly large, seven-meter-tall vaulted roof.
Large aluminum-framed windows and white stucco walls accentuate the room's ethereal feel. The two-meter-wide circular window that pierces the house's southern gable is another example of ecclesiastical architecture.

A curving wooden kitchen with an island composed of Indian Shivakashi granite that resembles a church altar serves as the interior's main feature.
The focal point of every everyday routine is this. A 19th-century wooden carving of the Madonna overlooks the dining area with an oak table and seats in the southern portion of the room.
On the other side of this is a lounging spot with a long sofa that overlooks the courtyard with its barn remains and the surrounding countryside. A tapestry composed of undyed sheep's wool frames the sofa.

The ground floor comprises one of the bedrooms, a laundry room, a bathroom, and a toilet in addition to the main living space. The architect's custom-made stone and wood furniture around the house gives it a unified look.
This features matching bedside tables, a black granite bench in the entryway, and solid oak beds and closets.

The upper level is intended to be a distinct apartment with a studio, bathroom, and bedroom. The attic is a confined, cocoon-like place that is perfect for reading, creating, and reflecting, in contrast to the ground floor, which has an open link to the outside world. Cultivated by arches and recesses, the white, tiny cavern is lit by small roof windows.

Art in Every Detail
The family values art greatly, and their collection includes both modern and Czech Modernist pieces. This passion for art permeates every aspect of their house.
In addition to a large-format modern painting by Antonie Stanová and sculptures by Michal Janiga, the bedroom has a 19th-century Japanese panneau. In the attic, stone sculptures by Vanda Hvízdalová are on exhibit on travertine platform.

Every element of the home reflects the family's curatorial style. A wooden ceremonial mask from Gabon greets guests in the entry hall, and Martin Hanuš's original pottery and an African stool made from a single piece of wood are featured in the main living room. Isamu Noguchi created the sculptured Akari lights that light the attic and bedrooms. A sizable library of art books contributes significantly to the atmosphere of the house.

A Living Gesamtkunstwerk
The owners wish to share the House Oskar, which is named after the cosmopolitan composer Oskar Nedbal, who wrote his operetta Polish Blood at the nearby château.
The public can hire this one-of-a-kind Gesamtkunstwerk or use it as a space for workshops, pop-up events, and artist residencies. Around the house, the owners hope to cultivate a lively community of imaginative and motivating people.









Site plan

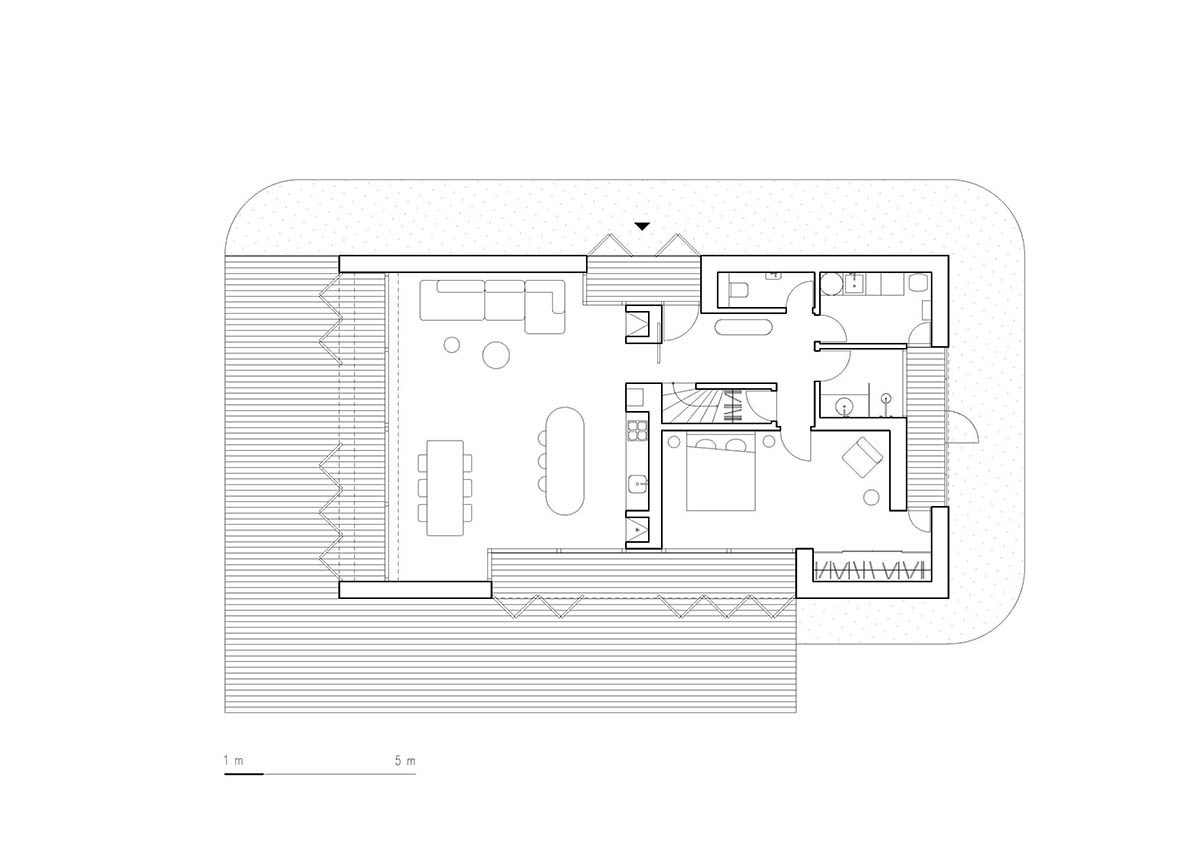
Ground floor plan

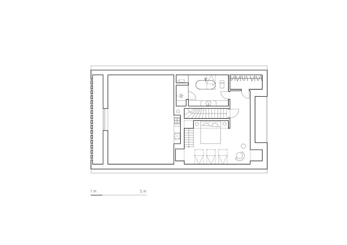
Attic floor plan

East elevation

West elevation

South elevation

North elevation
Project facts
Project name: House Oskar
Architects: Jan Žaloudek Architekt
Location: Kamenná Lhota, 391 33 Borotín, Czech Republic
Completion year: 2025
Built-up area: 180m2
Gross floor area: 171m2
Usable floor area: 154m2
All images © BoysPlayNice.
All drawings © Jan Žaloudek Architekt.
> via Jan Žaloudek Architekt
barn gable wall Jan Žaloudek Architekt perforated renovation
