Submitted by WA Contents
Archstudio completes Songmont Space by framing the courtyard in Beijing
China Architecture News - Mar 05, 2025 - 16:10 3111 views

Archstudio, a Chinese architecture firm, has designed a building in Beijing, China, based on the concept of "framing courtyard."
Named Songmont Space, the 695-square-metre building is located in a cultural and creative park in Cuigezhuang Town, Chaoyang District, Beijing. Set away from the city's hustle and bustle, the site offers a tranquil environment rich in cultural atmosphere.

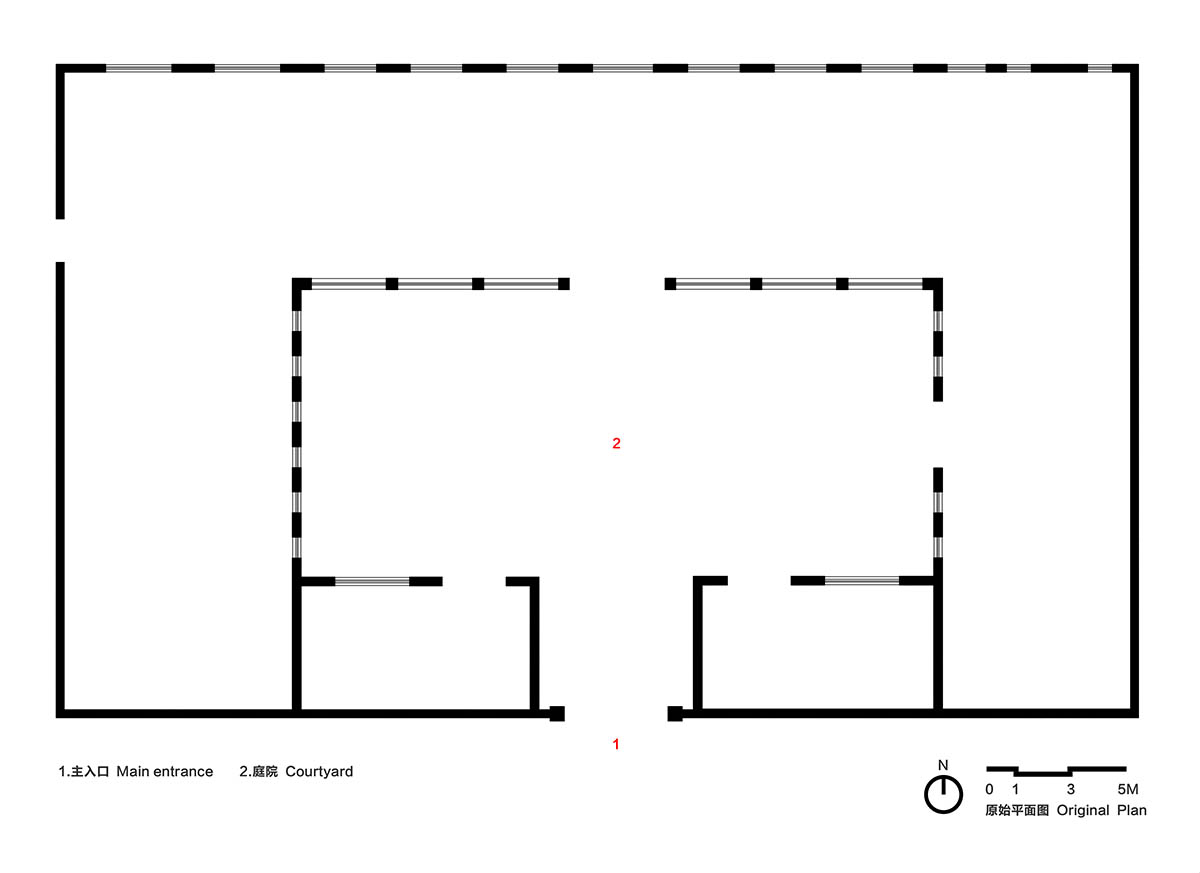
The original building was a light steel truss factory that was one storey tall and had a courtyard design with sloping roofs. The building's general spatial arrangement was somewhat straightforward and lacked unique character, despite its rather industrial style.
The main difficulty was to reimagine the area with a distinct identity and appeal while maintaining the original structural integrity.

The need for a better quality of life is growing in today's fast-paced society, and design ideas are increasingly fusing functionality with beauty in a seamless manner.
Renowned for its useful and fashionable bags, Songmont is dedicated to investigating user experiences that complement contemporary lifestyles.

For Songmont, Archstudio designed a brand environment that embodied the soul of the company. The design team's innovative introduction of a succession of carefully designed frames, inspired by the idea of a "Frame Courtyard," broke free from the limitations of conventional spatial bounds and captured perspectives.
This design creates a distinct experience by promoting a harmonious coexistence of the interior and exterior as well as a distinct spatial hierarchy.

Songmont is a well-known Chinese company that specializes in creating beautiful and useful bags by taking influence from Eastern philosophy, which emphasizes freedom and self-awareness. In light of contemporary lives, the company is always improving user experience design.

Songmont has been well-known in the home market over the last ten years and has started to establish itself abroad. Songmont asked
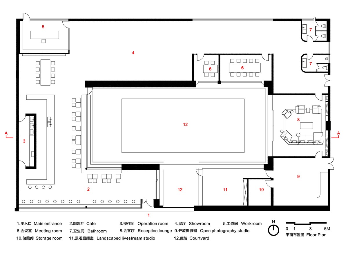
Archstudio to create a brand space that combines a variety of uses, such as exhibitions, receptions, meetings, photo shoots, and livestreams, in order to further enhance its brand influence and communicate its essence. It also offers a location where guests may unwind and have unforgettable adventures.

"Frame Courtyard"
The "Frame Courtyard" concept, which Archstudio came up with, defies conventional space rules with a number of well crafted frames. These frames create a spatial experience with a distinct hierarchy in addition to improving the spatial link between the interior and external.
The design team first took a close look at the roofs and facades of the old building before beginning the refurbishment. They created a unique link between the interior and outdoor environments by introducing frames of different sizes, which maximized natural daylighting and ventilation. The once boring courtyard-style arrangement was given new energy by this makeover.

In order to improve the building's physical performance, the design team covered the continuous new walls with insulation, which successfully protected the structure from outside environmental factors. Furthermore, the building appears neater and more attractive because to the creative concealment of the previous structure's messy eaves by the disguised rainwater gutters inside these walls.
In addition to providing protection, these new walls also serve as a window displaying the essence of the brand, with each frame evoking an exquisitely chosen, enthralling scroll artwork.

A crucial component of the project, the cafe, was painstakingly designed. In order to optimize the cafe's openness to the park and the interior courtyard, the design team used horizontal frames, which produced an interesting dynamic between "seeing and being seen."
A bar counter and booth seats are formed by the frames that extend into the interior. By blending the lines between building and furniture, this design encourages a fluid, organic flow across the room. Guests can savor meals while admiring the stunning outdoor scenery, which heightens their sense of enjoyment and leisure.

Another noteworthy aspect of the remodeling is the courtyard. The design team placed a thin reflective waterscape in the middle of the courtyard to reflect the white clouds and blue sky. Ripples appear on the river as the air blows across, seemingly removing the cacophony of the city and bringing about a calm environment.

In addition to being a significant location for product debuts, this mirrored waterscape enhances the surrounding area. A semi-outdoor area that satisfies practical requirements and provides more spatial flexibility can be created by draining the water during events and adding a canopy.
The courtyard's walls, which extend into a number of useful spaces like a conference room, reception lounge, and livestream studio, were designed with varied frames.
The motorized louvers outside the frames provide varying privacy depending on how the rooms are used, and these frames open rhythmically to the courtyard.

The heavy configuration of light steel trusses inside the original manufacturing building produced a somewhat dreary and confining sense of space.
The design team addressed this by carving out different-sized funnel-shaped frames in the ceiling. These frames provide a new spatial experience by increasing the ceiling height and letting in gentle natural light.

The design team carefully examined the aesthetics of the brand when choosing finishes, choosing warm, clean hues. The flooring was made of black microcement, which echoes the water ripples in the courtyard with its faint reflective surface, giving the space a cohesive and peaceful feel.
The use of beige stone for handrails, countertops, and partial walls added to the room's tactile appeal and material palette.

The project's architecture blurs the lines between the interior and outdoors by moving away from concrete forms. The contrast between openness and privacy, light and shade, encourages investigation and evokes the reflection and contemplation that are central to Eastern philosophy.








Axonometric drawing

Original plan

Floor plan

Section

Detailed section
Previously, Archstudio built a bridge-like exhibition center featuring an open-air flowing auditorium in Yichang City, Hubei Province, China. In addition, the firm renovated Beijing's old courtyard house with new wooden and glass additions in an ordinary village on the outskirts of Beijing, a typical plain-based northern Chinese village mainly composed of one- and two- storey courtyard houses.
Project facts
Project name: Songmont Space
Location: Beijing, China
Design firm: Archstudio
Chief designers: Han Wenqiang, Li Xiaoming
Designer: Wang Tonghui
Structural consulting: Zhu Chang'an
MEP consulting: Zheng Baowei, Li Dongjie, Li Zhongjuan
Image editing: Wang Tonghui
Construction firm: Beijing Jingyu Decoration Co., Ltd.
Project area: 695m2
All images © Jin Weiqi.
All drawings © Archstudio.
> via Archstudio
