Submitted by
Large Openings And Reddish-Colored Façades Mark This Holiday Home By Isla Architects In A Rustic Land
teaserb-80-.jpg Architecture News - Mar 26, 2021 - 14:28 2466 views

Mallorca-based architecture practice Isla Architects has designed a holiday home that can be marked by large openings, holes, simple geometry and reddish-colored concrete in rustic land in Santa Maria, in the Pla de Mallorca.
Named Lover's House, the 540-square-metre house was converted and improved from a house that is under construction as a holiday home to be able to stand out in the local real estate market.
The house was redesigned to offer a place to enjoy the island and its climate as a retreat.

Drawn with simple geometry but dominant and red tinted concrete, the house appears like a labyrinth structure that creates own language.
Large holes and windows frames the mesmerizing landscape outside and help to discover other surprising spaces around the house.

Surrounded by vineyards and protected by a pine forest that the client has been planting for years, the house gets sunlight all day and offers panoramic views of the Tramuntana.

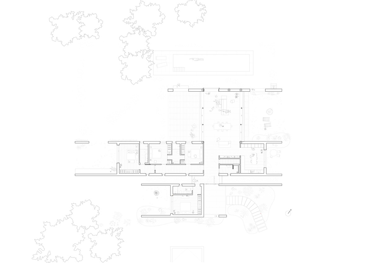
The layout of the plant refers to Jose Antonio Coderch; the program of the house is developed on several axes that are articulated along a series of walls arranged in a north-south direction.
Access to the house is made through the pine forest from the "camí" until guests reach the house, that appears totally closed, recreating the local Arab influences.

Designing a curved ramp, the ramp leads to the entrance through a wild garden parallel to one of the walls. Once on the porch, a large floor-to-ceiling pivoting door opens inviting guests to enter.
The foyer, which stretches to both sides of the longitudinal courtyard - a forest of bamboo trapped between two long walls - gives guests access to the bedrooms.

While the guest room occupies the first volume of the house, it has its own patio. The architects placed the rest of the rooms in the south wing, two twin bedrooms with a shared bathroom, open to the garden, and the main bedroom, which opens south to a large open patio with a tinted concrete bench.

The kitchen is placed to the North side, it seems independent but visually connected to the living room, and has its own patio open to the twin mountains of Alaró.
And finally the living room, which is situated in the widest bay of the house, opens up to the panoramic views over the mountain and the garden.

"The asymmetric inclination of the roof allows it to open more to the south than to the north, protecting the large windows from the incidence of the sun, which in turn, when open, allow for cross ventilation to better withstand the high temperatures of summer," said Isla Architects.
"An exterior window is cut into the west wall and visually connects the living room with the pool, allowing water reflections to dance in the beams of the room."
"When its blind - in the same tone as the wall and with flanges in metallic tones - is closed it filters the light, and the room acquires a red tinge," added the studio.

The pool was designed as detached from the house so that it gets its own space, and slides as another volume of the house that emerges from the ground, allowing to swim from the Tramuntana to the Puig de Ses Coves.

For the materials, defining its own language, the studio applied a specific materiality which was proposed to integrate the house and almost camouflage it with the local landscape.
On the outside, the walls are plastered with a rough rust coloured mortar making the house blend in with the land.

Inside, the color palette is reduced to tinted concrete of the same reddish color, white, copper and natural wood, giving the house a warm and natural atmosphere.

The floor, locally manufactured by Huguet and custom designed for the project, goes in and out diluting the limit of the house, while a series of elements also made of red tinted concrete -washbasins, showers, fireplace and benches- equip the different spaces.

This limited palette of materials reveals the simple geometry of the building and creates a visual and tactile continuity between the architecture and its surroundings.

"Monochrome and vibrant, the house changes hues during the day, reacting to the sun and land, revealing movement through shadows and changing material nuances," continued the office.













Isla Architects is a Mallorca-based architecture and design office founded by Marta Colon and Juan Palencia.
Project facts
Project name: Lover's House
Architects: Isla Architects
Client: Private
Architects: Marta Colón, Juan Palencia
Collaborators: Nelson Manuel Fidalgo, Katerina Kulanova
Location: Santa Maria del Camino, Spain
Size: 540m2
Date: 2020
All images © Luis Díaz Díaz
All drawings © Isla Architects
> via Isla Architects
