Submitted by WA Contents
Swimming pool is bravely extended from inside of this concrete house towards endless view in Tinos
Greece Architecture News - Aug 16, 2021 - 13:18 17497 views

Greek architecture practice Aristides Dallas Architects has designed a home that features a protruding swimming pool extended from inside of the house in Tinos, Greece.
The house, named The Lap Pool House, is located in Tinos, in the Greek Cyclades and emerging from the landscape in which its form is inspired by "the cavities and ledges of the rocks."

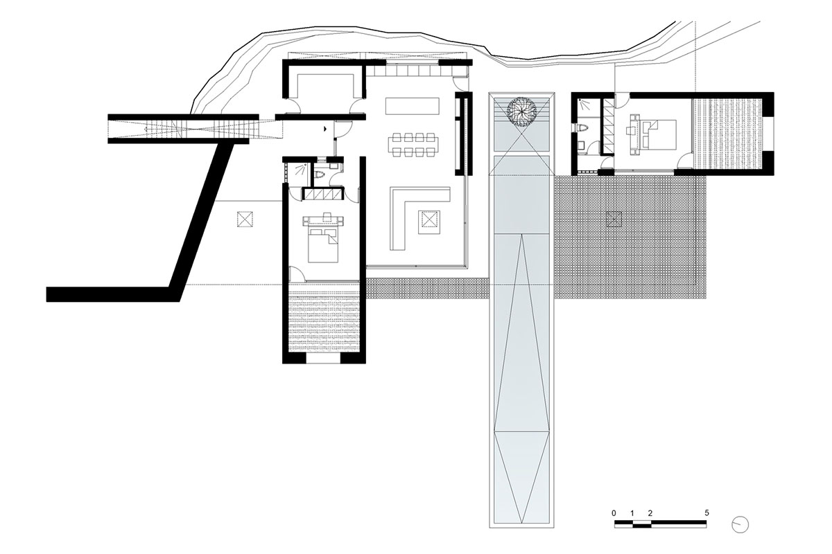
Covering a total of 150-square-metre area, the house emerges from its natural landscape as a man-made cave, re-creating spatial points of exposure and introversion.
Designed in a modular layout, the house mainly consists of three volumes under a single, concrete roof appearing as an extension of the landscape. The key design feature of this house is its longitudinal swimming pool protruded bravely from inside and extended towards a mesmerising view in the natural surrounding.

The entrance of the house is accessed in the rear side of the building, through an earth crack, while different cuts in the roof allow light and air to enter the building.
The water in the pool creates a contrast with the rocky texture of the bare concrete as a translation of the interactions between natural elements.

The house offers different individual architectural qualities of open and closed space in the residence, harmonized perfectly by considering inside-outside relationship.
The two volumes that project from the slab perpendicular to each other form private spaces, such as a bedroom and a guest house.

In the same volume there is a protected semi-outdoor space that frames the view while offering shelter, at the request of the owner.
"The roof that is blending with the ground in one side, becomes a big cantilever in the other side, setting its appearance as a greatly innovative structural element," said Aristides Dallas Architects.

"That way, in the middle space under the slab, the common areas are formed. Perfectly connected with the interior of the house this concrete cantilever provides with an extended semi-outdoor living space, which might be the most appealing spot during the summer period."
As the studio emphasizes, "the tense of the building is underlined by the linear volume of the pool that comes out of the slope and leads the perspective to the horizon."

For material and construction, the architects used the same color palette acting like emerging from the color of the rocks. The materiality and textures of the bare concrete also enhances the blending of the building with the sight.

The architects' aim was to camouflage the project in the landscape, while maintaining a dynamic presence itself. "Embracing this idea of merging with the landforms around it, the building urges the habitant to live with absolute connection with the scenery of Tinos and with nature altogether," the team added.









Roof plan

Floor plan

Section

Section

Section

Section

Elevation

Elevation
Aristides Dallas Architects was founded by Aristides Dallas in Tinos, in 2014. Based on both Tinos and Athens, the studio designs architectural projects varied in scale and typology.
Project facts
Project name: The Lap Pool House
Architects: Aristides Dallas Architects
Location: Tinos, Greece
Size: 150m2
Date: 2020
All images © Panagiotis Voumvakis
All drawings © Aristides Dallas Architects
