Submitted by WA Contents
ATOMAA renovates old stone house with minimal additions and light-filled interiors in Varzo, Italy
Italy Architecture News - Jul 12, 2021 - 09:43 10400 views

Milano and Edinburgh-based architecture and design studio ATOMAA has renovated an old, ruin house with minimal additions and light-filled interiors on a hilly slope of Varzo, Italy.
Named House Cinsc, the 142-square-metre house features elegant details with arched windows, wooden window and door frames, earth-toned color palette that complements the overall language of the house.
As ATOMAA explains, first inspections revealed that the structure was used as a mainly for livestock and seasonal hay - a precarious structure, reserved for unexpected discoveries. The structure served as a ruin in this area.

Later, when they see a large stone arch and an ancient fireplace emerge, they considered that the structure was before being used as a stable, it served as a residence.
The architects said that "the presence of a sort of Tholos outside, less typical of the area, gives the complex more connotations."

By benefitting from an exchange of volumes, the team has added an additional structure to enrich the original layout and clarify spaces and functions.

To achieve this, they have redesigned spaces at the heart of the house such as the kitchen and obtained a double-height ceiling. In this way, the space expands and the interior is filled with natural light.
They placed the entrance and living room in the new volume, with its heels on the mountain edge.

The studio configured the interiors as a privileged place from which to observe the surrounding peaks. When they revisit the existing restorated structure, they encountered with different openings that derive from its previous structure, as they revisit archetypal geometries.

"Designed from the inside out, these openings offer glimpses towards the landscape which rebuilds the domestic space," said the architects.
"In a valley of larch trees, we reuse the timber elements where possible, recovered from the disposal of the old floors and the deteriorated beams of the roof, giving them new functions."

The first room has been designed as a living room, anticipated by a sort of vestibule as this space was conceived to observe the mountain accompanied by the warmth of a free-standing stove. "Here the floor is in black resin, differentiating the new environment from the rest of the house, with their black stained larch floors," added the team.
Following slight differences in height, users move on to the pre-existing building where the entrance door once was.

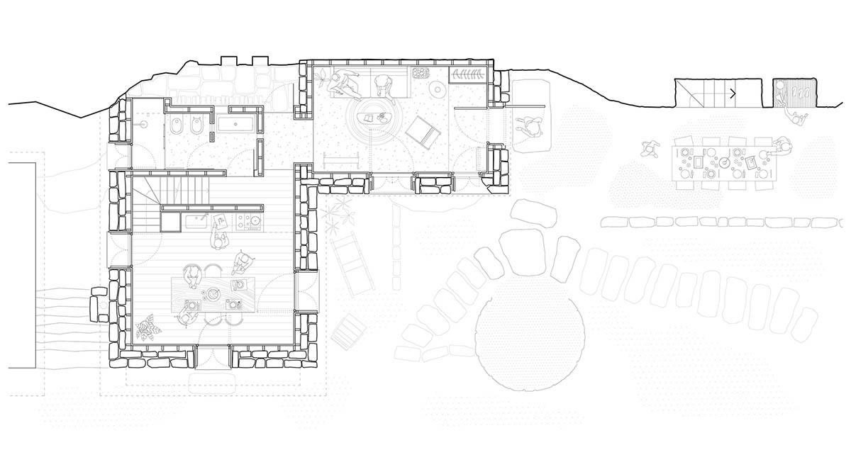
The kitchen/dining room is located in the heart of the home, from which all the rooms branch off. The kitchen is characterized by a large piece of furniture that occupies the entire double height of the room.
The room is filled with natural light that enters from the main table above. In addition, small windows frame the view towards the landscape, painting dynamic scenes as the seasons change.

The service volume, with the kitchen wall and two flights of stairs, is a real functional block for the use of the spaces for which it serves. This central element acts as a hinge around which it uses flow providing functions that orbit around it.
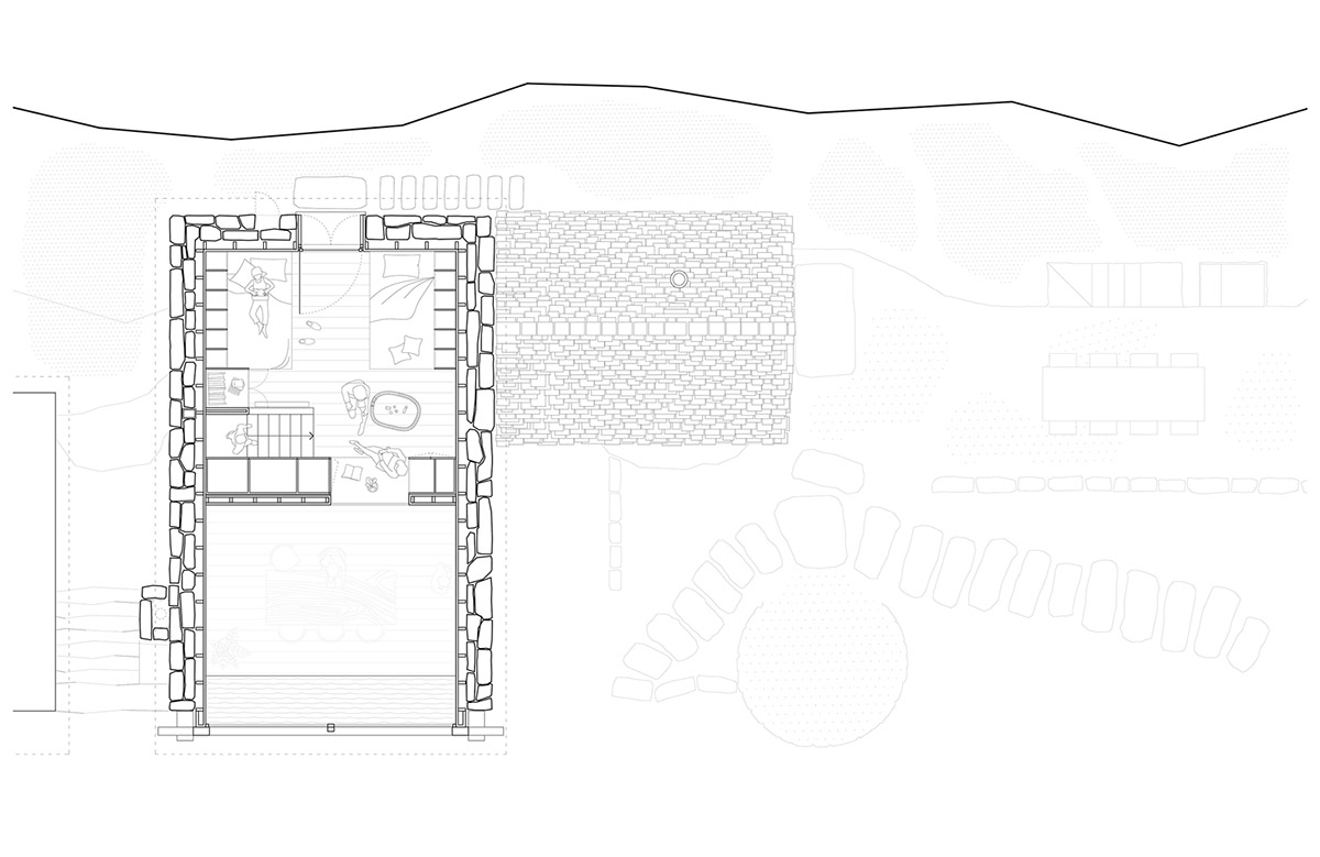
Down a narrow staircase, the main bedroom is located on the lower floor, to ensure greater privacy but above all to enjoy the privileged view from the stone arch.

The arched shape window provides a space for sitting and contemplation as the user has the luxury to gaze towards the landscape, through a unique tectonic element that mirrors and references a form that once was.

Up within the pitch of the roof, a second room is hidden, accessed by a retractable hatch. Only from this height, through an opening in the wall, can you admire the landscape through the glazed tympanum.












Site plan

Ground floor plan

First floor plan

Plan 1 floor plan

Section

Section

Perspective section
Project facts
Project name: House Cinsc
Architects: ATOMAA
Location: Varzo, Italy
Date: 2020
All images © Alberto Strada
All drawings © ATOMAA
> via ATOMAA
