Submitted by
Kapsimalis Architects Completes Cave-Like Summer Residence On The Outskirts Of Pyrgos
teaserf-5-.jpg Architecture News - Aug 24, 2018 - 01:26 2687 views

Santorini-based architecture firm Kapsimalis Architects has completed a cave-like summer residence on the outskirts of the traditional village of Pyrgos in Santorini.
Situated on a gentle sloping plot surrounded by vineyards, the multipartite residence overlooks the southwest part of the island and the Aegean sea.

Called House in Pyrgos, the 300-square-metre house is derived from the subtraction of mass so that they can gat a conceivable solid form.
The house is seemingly designed as one volume, but the structure is divided into different small volumes that function as a different program. Thus, it formed a solid and rocky appearance, pretending like an old monolithic house obtained from the existing landscape.

"The main idea of the design was the the formation of an artificial monolithic rock, diligently standing on a random spot of the landscape, eroded by the time and natural elements," said Kapsimalis Architects, describing their project.
"Parts of the remaining mass turn in different angles of orientation, elsewhere are split, leaving semi-open and outdoor passages between them. Fragments of the monolithic synthesis are placed as tracings like the retaining walls of the exterior planted yards."

Taking cues from the traditional Santorinian vaulted roofs, the old fortification towers outside the old castles of the island and the metallic cantilevers used in the old pumice quarries, all pieces of the architectural history of the island, the house combined all these traditional elements and transformed into a monolithic structure.

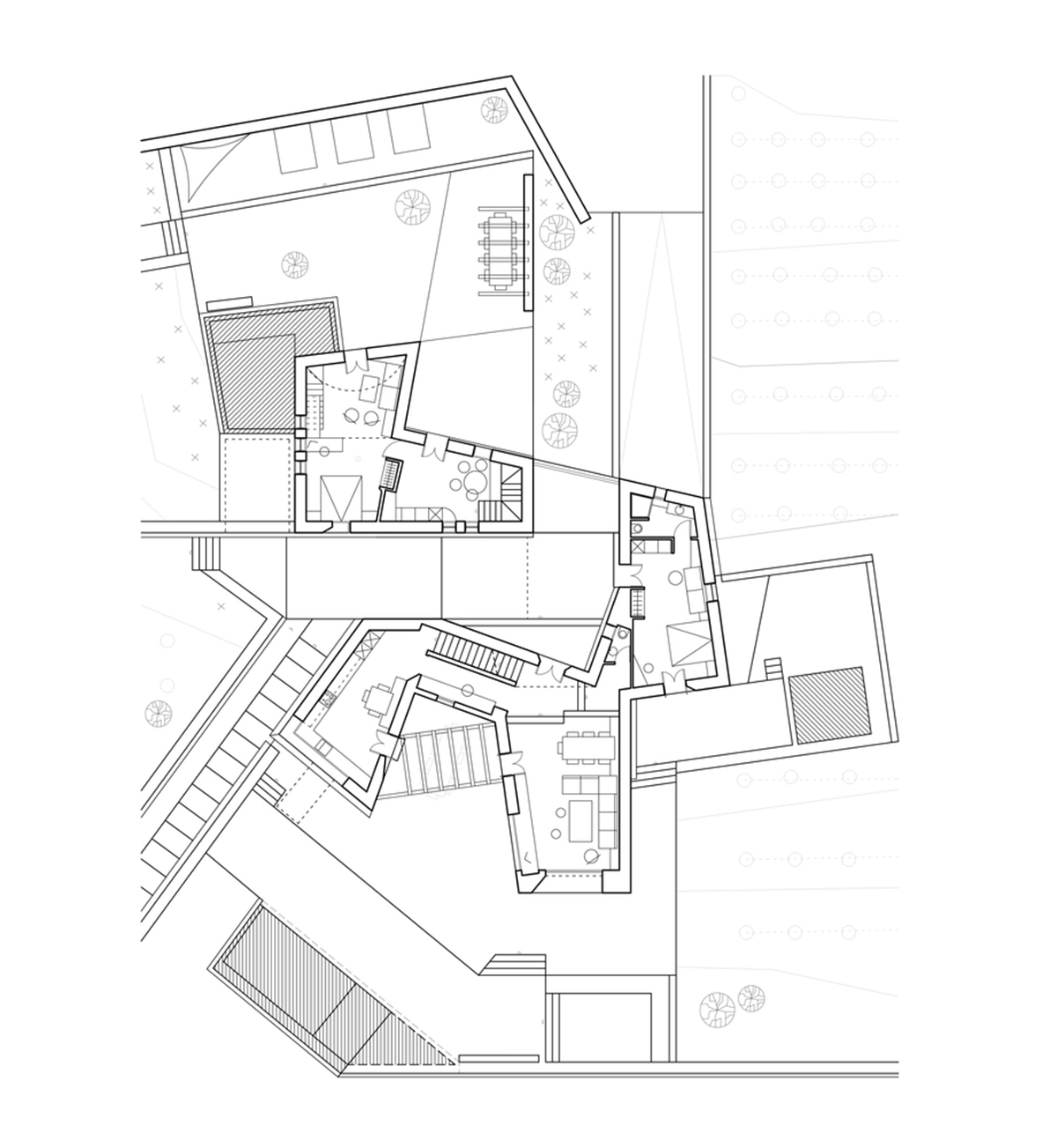
The building is used as a single residence which can be divided into three separate houses each with its own private outdoor space. On the ground floor, the architects design the main sitting-dining room, the main kitchen, two bedrooms, a bathroom and a secondary kitchenette.

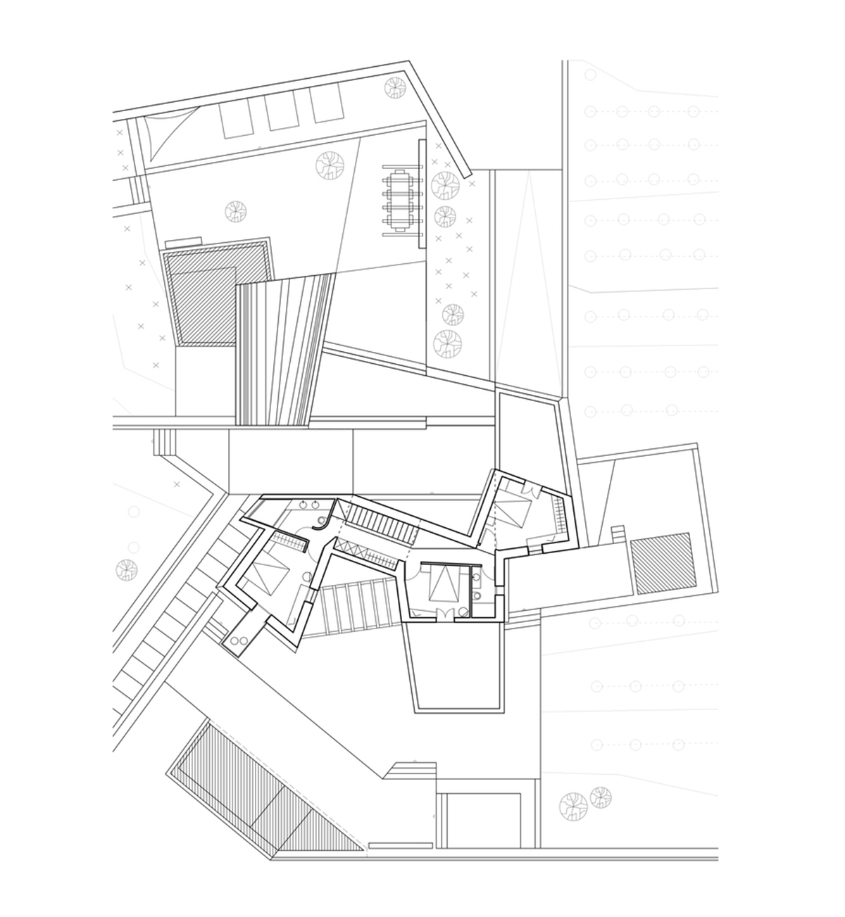
Three bedrooms with their bathrooms are placed on the upper floor, while a supportive storage/bathroom and garage spaces are designed in the basement floor.

The most important aspect of the house, undoubtedly, is the exterior façade and the materiality that is applied. The house is entirely built from reinforced concrete for its bearing structure.

The architects used local black stone, bricks and thermal insulation for the walls, and also colored it with earthy plaster for the coatings and the exterior floors.
"White color plaster and white mosaic for the interior surfaces. Natural wood, marble, rusty steel, cement plaster and clay are used to the built/handmade interior & exterior furniture. Mediterranean plants and cactus complete the integration of the building in the landscape," added the architects.









Ground floor plan

First floor plan

Second floor plan
Kapsimalis Architects recently completed a new summer residence in Santorini Island of Greece. The house was transformed from an old residence into a new summer house with amorphous curves and sculptural caves.
All images © Giorgos Sfakianakis
> via Kapsimalis Architects
