Submitted by WA Contents
Hitzig Militello Arquitectos completes Nim Bar in Buenos Aires with wooden meshes and oak tones
Argentina Architecture News - Aug 14, 2018 - 05:09 19259 views

Argentinian firm Hitzig Militello Arquitectos has completed a new beer bar within the historic fabric of Buenos Aires in Argentina, the new bar creates a dramatic effect and depth with its oak-toned material palette and wooden façade.
Called Him Bar, the project was developed in response to the traditional beer bars, which are suffered from the same aesthetic and architectural language.

"The challenge was to create a new aesthetic universe associated to the cocktail bars but without forgetting the impressive brand of 30 taps, emphasizing the idea of the largest beer bar in Buenos Aires," said Hitzig Militello Arquitectos describing the project.
"The conceptual idea incorporates elements distant to the reminiscences known by bars of these characteristics. To do this, it was extremely important to turn to an idea of conceptualization, where the starting point was the composition of plots based on a "possible influence" of a very traditional proto-rationalist style in American and Eastern interior design," the architects added.

Covering a total of 426-square-metre area, building is composed of two types of density of wooden meshes, closed and open, in oak tones that generate multiple depths. These are definitely veils and sieves that unravel mysteries between their interstices.
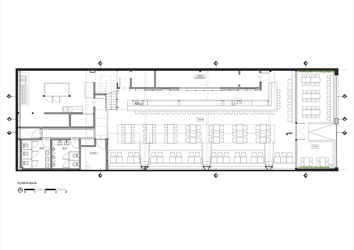
The interior also presents a dramatic space wrapped by the same of type of materials and colors to increase the depth of the interior. Each seating place is divided by wooden panels to ensure privacy.

Its chess-like organization composes the closed meshes of the open ones. Another material, but of the same compositional system, is the limestone in several of its walls. The communicative strategy on the façade proposes an expressionism and a system similar to its interior.

As these are high-density materials and compositions, we chose to contrast them with walls impaled with neutral patterns that allow a dialogue and not a competition between designs.
The design of the wallpapers is associated with a universe of plant nature, and in accordance with this there are several sectors where we have the living presence of nature, as defined in the name of the line descent.

Two plant interventions define spatiality. On the one hand, the semi-covered entrance on both sides as a method of pedestrian communication and on the other hand the long "green tongue" in the whole centre of the main hall dividing the large central dining area.

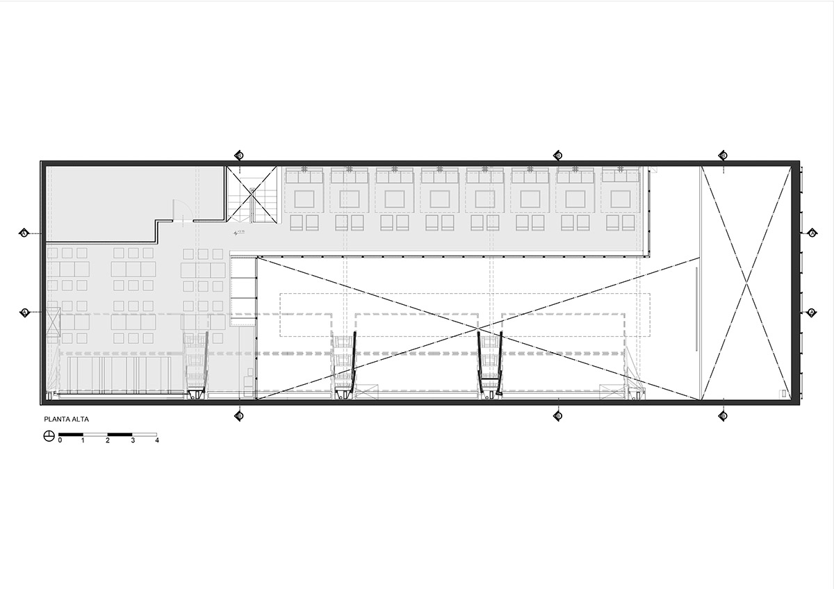
The organisation on the top floor, divided into two sectors, shows its most distinctive side in its large living-room space. These are subdivided with movable panels that swing upwards to form a large and unique space covered by a ceiling of meshes according to convenience.
The communication from its logo and isotype emulates the same system formed by a plot and background whose nature is expressed through the phoenix.











Project facts
Location: Defensa 880, CABA, Buenos Aires, Argentina.
Design Concept / Project / Construction Documents / Interior Design: Hitzig Militello Arquitectos
Construction Manager: Hitzig Militello arquitectos
Collaborators: Arch. Jeanette Zotta, Arch. Virginia Bottan
Promoter: Privado
Architectural Program: Restaurant & Bar
Year: 2018
Surface:
Covered ground floor: 253 m2
Half covered ground floor: 34 m2
First floor: 139 m2
Al images © Federico Kulekdjian
