Submitted by WA Contents
Architects of Invention designs residential block in Tbilisi oval and rectangular living rooms
Georgia Architecture News - Jan 26, 2021 - 16:28 11325 views

London and Tbilisi-based architecture studio Architects of Invention has unveiled design for a residential block that features fully-glazed, oval and rectangular living rooms that form the façade itself.
Called Lisi Residential, the seven-storey building is currently under construction at site in Lisi Green Town, Tbilisi, Georgia. Situated at a site, located to the North-West of Tbilisi, in the Saburtalo district, the new block sits on a sloping hill near Lisi lake, with views over the city.
The project has been commissioned as part of a masterplan, which includes buildings by Riccardo Bofill and UN Studio, with radically different, new build, 5 - 7 storey residential blocks, that will sit alongside a number of private houses.

The masterplan, called Lisi Development’s Green Town, will be a substantial residential project that boasts innovative green principles.
"Residents’ utility bills are reduced by up to 30%, thanks to Lisi’s energy efficiency standards, with electric charge points and rainwater harvesting included," said Architects of Invention.
"20% of the site is residential and the remaining 80% is dedicated to recreational areas and infrastructure."

For the design scheme, the architects are inspired by both American architect James Wines’ collage “House of Homes”, with its greenhouse style living spaces, and by architects Brodsky & Utkin’s “Columbarium Habitable”, the concept for this scheme is houses with gardens stacked on top of each other to form a single residential block.

The studio created modular living rooms that are configured as alternating oval and rectangular forms that create a rhythmical vertical pattern within the grid.
"As a modification to James Wines' vision, the Garden House’s verandas offer ample space for outdoor planting," added the firm.
The 7-storey building is notionally modular, with all elements, but not all modules, being constructed offsite. This represents a radical innovation for Georgian architecture, where offsite construction is still in its infancy.

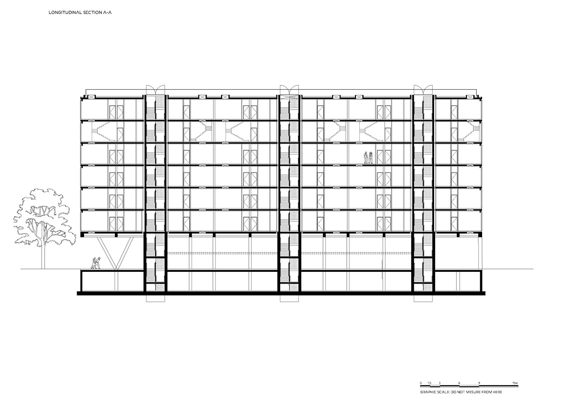
The Garden House consists of 42 units over 6, uniquely configured residential floors, with ground floor commercial space and basement car parking.
The building is vertically divided into three blocks. Each block contains a one-way staircase and an elevator cell with two flats located on each landing. The apartments on the standard floors have views both to the east and west, while the upper floors offer more luxurious, duplex apartments.

The facade of the building is treated with exposed concrete and high-quality, double-glazed glass panels, as well as with back-painted glass.
The balconies and terraces are covered with white marble slabs. A new green space to the east of the building gives landscaping context to the building, as well as fulfilling the Green Town vision of dedicated recreational space for residents.




Site plan

Ground floor

Level 1 plan

Plan level 6

Roof plan

Section

Elevation

Section
Project facts
Status: Under Construction
Location: Lisi Green Town, Tbilisi, Georgia
Gross Build Area: 11,500 m2
Budget: $25 mil
Stories: 7
Structure: combined steel & concrete
Programme: Cap Park, Retail, Residentials flats, Duplex Apartments
Client: Lisi Fo Ltd.
Consultants: Cubicon (Structure), Nec (M&E), IERI (Urban plannig), Sainjgeo (Geology), GZA (Transport)
London AI team: Nikoloz Japaridze, Ruth Sullivan, Simon Gatehouse, Elena Cruz Alcami
Tbilisi AI team: Eka Kankava, Vako Kelbakiani, Davit Tsanava,
All images courtesy of Archirost.com
All drawings © Architects of Invention
> via Architects of Invention
