Submitted by WA Contents
HONG Designworks converts old Victorian building into a brand-new experiential hall in Shanghai
China Architecture News - Oct 01, 2020 - 15:33 4057 views

HONG Designworks has converted old Victorian building into a brand-new experiential hall in Shanghai, China. Named Experiential Hall in Shanghai, the project features the traces of the century-old building within a contemporary design.
The project is situated within a Victorian building constructed in the last century in Shanghai. Over the years the old house has witnessed the changes of Julu Road where it sits, while time has given it a sense of history distinguished from the surrounding built environment.
Fritz Hansen, a Danish furniture brand that boasts a history of more than 140 years, gives the building new life, and injects vitality into the architectural space by bringing in daily dining and leisure scenes as well as creating a living atmosphere.

Inherit century-old styles and essence
The combination of furniture brand with catering and entertainment is a forward-looking, creative attempt, resulting in an unparalleled destination in Shanghai. The project echoes the spirit of Fritz Hansen, regardless of time and realm. And a key issue that the designers had to consider was how to balance the brand style and spatial character.
Fritz Hansen has been collaborating with exceptional designers across the world, and has worked out a great many simplistic, artistic and quality products. As approaching the project, the design firm HONG Designworks applied the brand's classical styles to the design of the second and third floors, thereby producing a space that's simplistic, stylish and artistic. In addition, Fritz Hansen furniture is brought into the space to create different scenes and ambiences. In this way, every detail is well-crafted, and each area takes on a distinctive style.

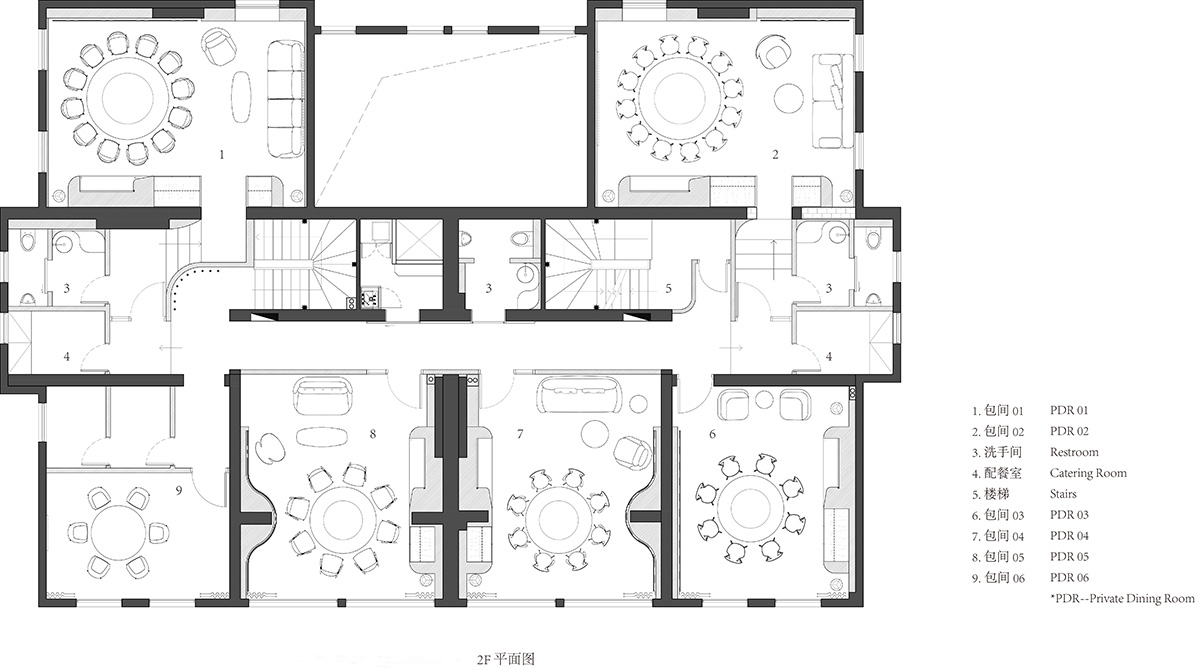
Furniture of different styles is matched with distinct private dining rooms, which opens up a wonderful food journey together with the simple and artistic atmosphere.
The design referenced the classic building structures of the old house. The designers tried to restore the wooden structures that had been damaged, to reproduce the characteristics of the old building and carry the traces of time in the space. Besides, wooden structures are highlighted along different circulation routes.

While restoring the interior wooden roof, the design also ensured its energy-saving and thermal insulation properties and aesthetic appearance.
Transitional spaces were created to separate yet connect different functional areas, thereby enhanced the sense of layering for the space and perfectly solved the problem of electromechanical equipment and pipeline exposure.
Iron-carved embellishments retained from the old house were restored and turned into staircase handrails. The structures generate charming shadows via the interaction with light, and produce a peaceful, calming ambience.

Define New Lifestyle
The project aims to create new immersive one-stop shopping experiences. The design team hoped that customers could experience the furniture in real scenes, and provided them with an array of choices and differentiated feelings through sorts of scene creation.
Victorian elements are noticeable from details. The hardwood floor and carpets featuring diverse patterns incubate varying atmosphere at different areas. Adornments and nature are merged, as plants and saleable artworks and furnishings can be seen everywhere within the space.

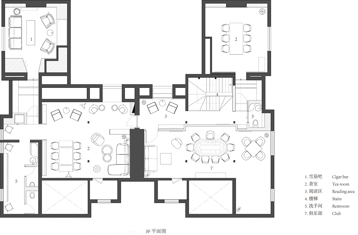
The tea room provides a perfect place for friends to gather and enjoy a cup of tea, while the cigar bar and club allow people to appreciate the charm of western leisure and recreational activities.

This space enables people to review the past of the century-old building, perceive the mutual complementation between the architecture and the time-honored brand and enjoy all the pleasure it offers.
Fritz Hansen is not only a furniture brand, but also represents a lifestyle defined by daily habits that go deep in people’s mind. In this space, diversified experiences brought by food, entertainment and furniture define a new lifestyle, which offers a destination to people who enjoy life, pursue quality and desire to try new things.















Floor plan - level 2

Floor plan - level 3
Project facts
Project name: Experiential Hall in Shanghai
Project location: Julu Road, Shanghai, China
Design firm: HONG Designworks
Chief designer: Dang Ming
Design team: Xie Xu, Ao Qinge, Wang Qing, Yan Zhen, Wang Haichuan, Hu Yifan, Shi Wangqian
Decoration design: Li Dandi
Construction firm: SDCIC Construction Group Co., Ltd.
Completion time: May 2019
Project area: 1,270 m2
Video production: Hua Sheng Studio
Video background music: Far by Daniel Rosenfeld
All images © Tan Xiao / Studio Ten
All drawings © HONG Designworks
> via HONG Designworks
