Submitted by WA Contents
y.ad studio completes production center for clothing industry in Cangzhou, China
China Architecture News - Jul 23, 2020 - 13:58 4641 views

y.ad studio has completed the Cangzhou Mingzhu International Clothing Industry Characteristic Town's Service Community in Cangzhou, China.
The architects explained the project's background below. After the Beijing-Tianjin-Hebei Integrated Development Outline Plan was upgraded to China’s national development plan, Beijing's non-capital functions have been transferred outwards, with the clothing wholesale and processing industries bearing the brunt.

South facade
Under such background, Cangzhou Dongsu Group took advantage of Cangzhou’s geographical advantages to invest in the construction of Mingzhu Trade City and Mingzhu International Clothing Industry Characteristic Town.
The whole industry chain has undertaken the pressure from Beijing’s Clothing Industry and even transformed and upgraded on top of it, trying to create a new business operation model that integrates design and development, production and processing, wholesale and retail, warehousing and logistics, e-commerce, entertainment and leisure.

South facade
This project is located in the Mingzhu International Clothing Industry Characteristic Town of Cangdong Economic Development Zone. The project has been fully launched. It has undertaken the entire industrial chain of R&D, design, processing, and sales of Beijing clothing industry. At the same time, it has also established a clothing research institute and a clothing design institute.

East facade
Cangdong Development Zone has obvious advantages in this process because there is a lot of unused and undeveloped saline land and it has very convenient transportation. The entire town is dominated by the clothing industry featuring the smart manufacturing.
The goal is to form a professional clothing industry cluster that integrates industry aggregation and services, industrial park development, clothing design research and development, one-stop sourcing of materials and accessories, financial services, logistics services, marketing services, branding, and exhibition services.

East facade
Proper Design Principles
In the initial site survey, the client took the studio to the site and some completed projects. The client was against relying on too much purely decorations or expensive materials to create spaces and scenes like some other typical real estate projects. They did not want the studio to deliberately build an “internet-famous spot” or “landmark” by creating catchy architectural form or spaces. Instead, the client team hoped us to approach the design based on functionality and actual situations while avoiding excessive pursuit of perfectionism of materials or craftsmanship.
The studio was asked to figure out an appropriate solution, and to define the space through the design, aesthetic and atmosphere. They also imagined this building as a “starting point” to create an open, friendly, natural and attractive public space for communication, leisure and exhibition, which can then extend to the entire industrial park.

North facade
These ideas are perfectly aligned with the design philosophy of the studio. The studio adheres to and practices the design principles of “staying thrifty, restraint and integrated, pursuing reality, daily life and natural beauty, and ensuring proper design based on actual conditions”.

North exterior of multifunctional area
Open Space/ Three-dimensional Community
There was an existing R&D office building in the southwest corner of the site, which had re-shaped the site from the original square to an L-shaped one. Therefore, the architects needed to not only consider the formal relationship between the existing building and new buildings, but also take care of the circulation between them. Since the volume and height of the existing building are not small, we placed the tallest volume in the corresponding northeast corner to balance the overall architectural form of the entire building cluster.
In terms of spatial organization, the architects stacked the functional spaces, living communities and supporting services with an open entry as connection.
"We intended to create a three-dimensional composite space, where commercial, exhibition, working, living and leisure functions can be integrated into one so as to achieve an ideal scenario of coexistence."

North entrance corridor
Inward Courtyard / Solid vs. Void
To avoid making the whole building cluster too bulky, the studio tried to construct the space through stagger and intersection of volumes and meanwhile, create many courtyards and open spaces between the building masses. The shift of the solid and void functions as the thread of the spatial narrative, and the in-between spaces enable natural transition between different functional blocks and courtyards.

Street-facing shops on the north side
Light, Shadows and Structure
Reality is an important concept that we wanted to implement throughout the design. We abandoned the excessive decoration and pursued the true presentation of materials and spaces. The architects also tried to make sure the process was as clear as possible from the functional space distribution in the early stage to the final construction to prevent waste from modification or duplication.
Starting from selecting simple and modest materials such as fair-faced concrete, the studio also wanted to avoid too many decorative surfaces so that one-time molding can be achieved.

East facade of design studio, fabric library
Due to the overall design of the interior and exterior of the building, different types of professions, like structure, MEP and architectural design, can be integrated as much as possible. The structure is almost completely exposed to display its beauty. Natural light and shadows also help shape the space.

West entrance corridor

West entrance - walkway

Part of apartments

Viewing the inward courtyard from the walkway

Viewing the walkway from the pool

Viewing multifunctional spaces from the walkway

Facade of multifunctional space

Opening for trees

Plant courtyard

Viewing the fabric library, design studio from the pool

Fabric library, design studio at dusk

Viewing the smart workshop from the inner courtyard

Corridor space

Corridor space under light and shadows

Corridor space under light and shadows

Corridor space under light and shadows

Multifunctional activity space

Steel roof structure of multifunctional activity space

Multifunctional activity area

Translucent glass boxes

Central tree array and corridor

Viewing the multifunctional activity space from the walkway

Viewing the multifunctional activity space from the walkway

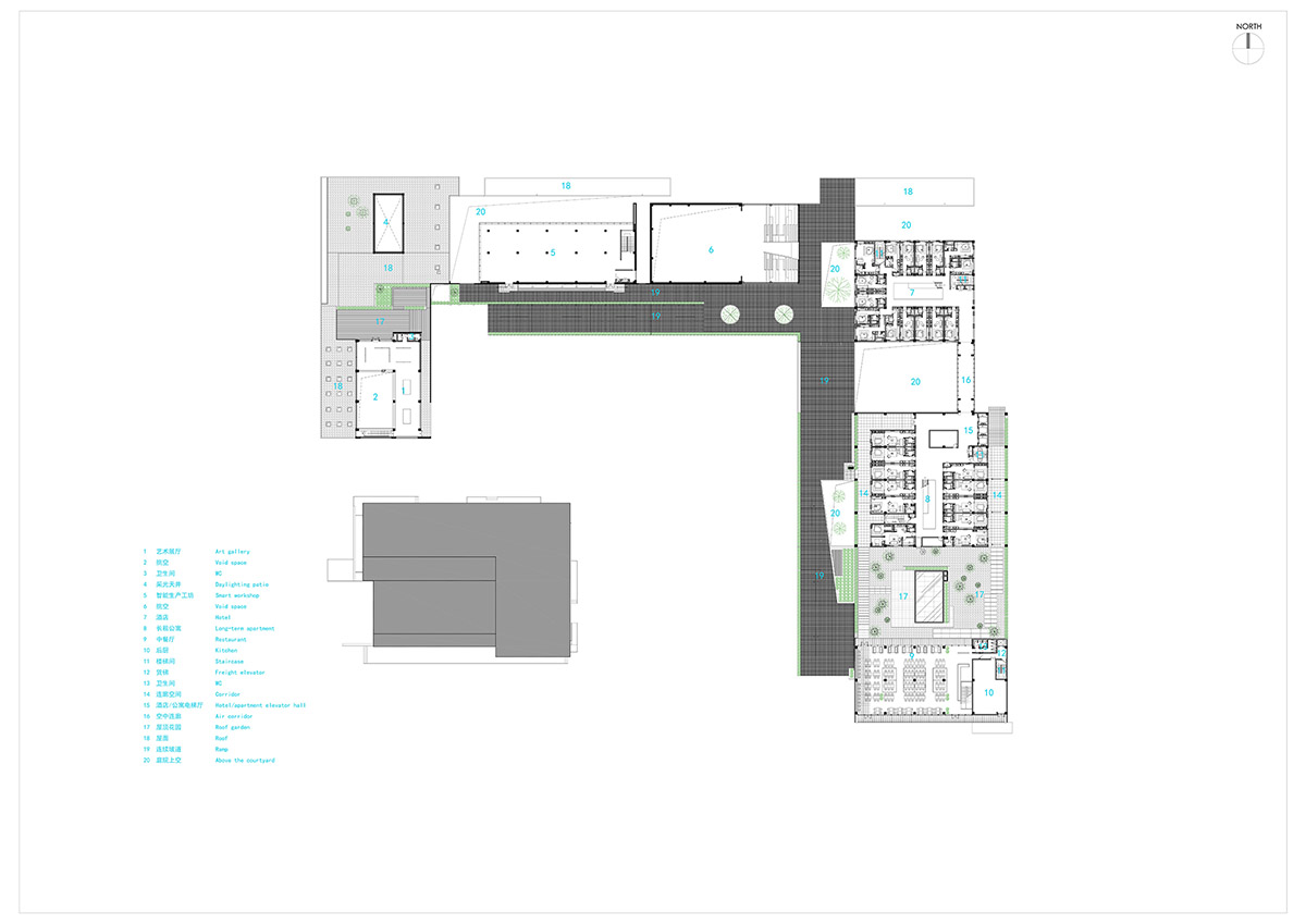
1st floor plan

2nd floor plan

3rd floor plan

Section and elevation

Section and elevation
Project facts
Project name: Cangzhou Mingzhu International Clothing Industry Characteristic Town's Service Community
Location: Intersection of Huanghe Road & Qiyun Road, Cangdong Economic Development Zone, Cangzhou City, Hebei Province, China
Client: Hebei Mingzhu Garment Culture Co., Ltd.
Project area: 26,666.8 square meters
Design firm: y.ad studio
Design scope: Architecture, interiors, landscape, lighting
Design team: YAN Yang, HE Maofeng, YAN Yu
Construction drawings: Hebei Jingcheng Architectural Design Co., Ltd.
Steel structure design: HUO Zhenzhong
Main materials: Fair-faced concrete, black travertine, wood cement board, laminated bamboo panel, terrazzo
Design period: December 2018 - June 2019
Construction period: May 2019 - May 2020
Top image © South facade of design studio / fabric library
All images © Peter Dixie (UK) / Lotan Architectural Photography
All images © y.ad studio
> via y.ad studio
