Submitted by
Zaha Hadid Architects' Opus Hotel In Dubai Recaptured In Photographs By Laurian Ghinitoiu
teasere-45-.jpg Architecture News - May 11, 2020 - 12:56 2577 views

Zaha Hadid Architects' Opus Hotel, also known ME Dubai hotel, has been recaptured in photographs by architectural photographer Laurian Ghinitoiu.
The new set of photographs of Laurian Ghinitoiu shows how the building is perceived from different angles at night and among other buildings.
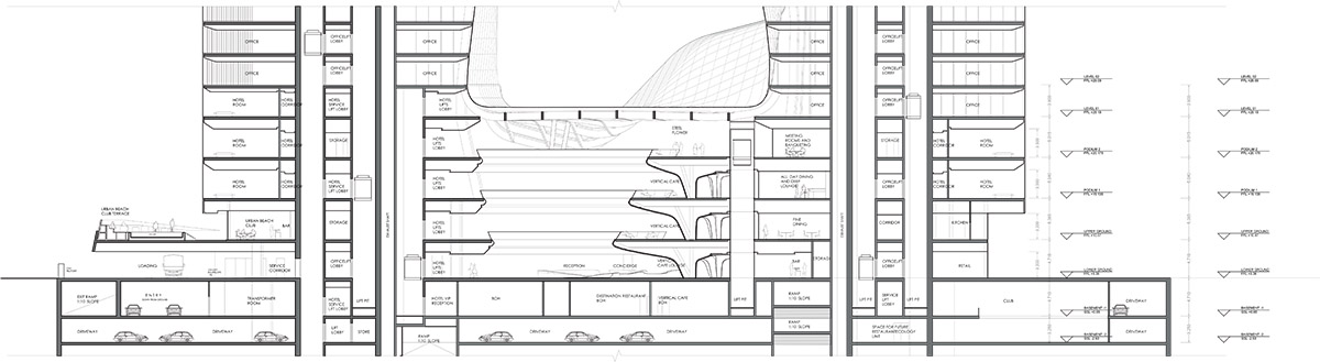
Named Opus, the 84,300-square-metre hotel is located in the Burj Khalifa district adjacent to Downtown Dubai and Business Bay on the Dubai Water Canal and features a dramatic free-form void that has been ‘eroded’ in its centre. The free-form void perfectly sits at the center of the building in its own right.

Completed in 2020, the Opus Hotel is the only hotel project of the late Zaha Hadid who has been involved, before passing away on March 31, 2016. The late Zaha Hadid designed both architecture and interiors of the building.

"Exploring the balance between solid and void, opaque and transparent, interior and exterior, the design was presented by Zaha Hadid in 2007 and is the only hotel in which she created both its architecture and interiors," said ZHA in a project description.
The Opus was designed as two separate towers that coalesce into a singular whole—taking the form of a cube. The cube has been ‘eroded’ in its centre, creating a free-form void that is an important volume of the design in its own right.

The two halves of the building on either side of the void are linked by a four-storey atrium at ground level and also connected by an asymmetric 38 metre wide, three-storey bridge 71 metres above the ground.
"The precise orthogonal geometries of the Opus’ elemental glass cube contrast dramatically with the fluidity of the eight-storey void at its centre," explained Christos Passas, project director at Zaha Hadid Architects.

The cube’s double-glazed insulating façades incorporate a UV coating and a mirrored frit pattern to reduce solar gain.
Applied around the entire building, this dotted frit patterning emphasizes the clarity of the building’s orthogonal form, while at the same time, dissolving its volume through the continuous play of light varying between ever-changing reflections and transparency.

The void’s 6,000 square metre façade is created from 4,300 individual units of flat, single-curved or double-curved glass. The high-efficiency glazing units are comprised of 8mm Low-E glass (coated on the inside), a 16mm cavity between the panes and 2 layers of 6mm clear glass with a 1.52mm PVB resin laminate.
This curved façade was designed using digital 3D modelling that also identified specific zones which required tempered glass.

During the day, the cube’s façade reflects the sky, the sun and the surrounding city; whilst at night, the void is illuminated by a dynamic light installation of individually controllable LEDs within each glass panel.

Furniture by Zaha Hadid Design is installed throughout the hotel, including the ‘Petalinas’ sofas and 'Ottomans' pods in the lobby that are fabricated from materials ensuring a long lifecycle and its components can be recycled.
The "Opus" beds in each bedroom while the "Work & Play" combination sofa with desk are installed in the suites. The hotel’s bedrooms also incorporate the "Vitae" bathroom collection, designed by Hadid in 2015 for Noken Porcelanosa, continuing her fluid architectural language throughout the hotel’s interiors.

The ME Dubai hotel incorporates 74 rooms and 19 suites, while the Opus building also houses offices floors, serviced residences and restaurants, cafes and bars including ROKA, the contemporary Japanese robatayaki restaurant and the MAINE Land Brasserie.

Sensors throughout the Opus automatically adjust the ventilation and lighting according to occupancy to conserve energy while ME Dubai follows Meliá Hotels International initiatives for sustainable practices.
Hotel guests will receive stainless-steel water bottles to use during their stay with drinking water dispensers installed throughout the hotel.

With no plastic bottles in guest rooms and a program to become entirely plastic free in all areas, the hotel is also reducing food waste by not serving buffets and has composters to recycle discarded organics.











Lower floor plan

Ground floor plan

Level 4 plan

Level 1 plan

Section

Section

Section
Project facts
Project Team
Architect: Zaha Hadid Architects
Design: Zaha Hadid, Patrik Schumacher, Christos Passas
ZHA Design Director: Christos Passas
Competition Team: Christos Passas (Lead Designer), Paul Peyrer-Heimstaett, Alvin Huang, Daniel Baerlecken, Gemma Douglas, Saleem Al-Jalil
Design Team (Shell and Core): Vincent Nowak (Project Architect), Dimitris Akritopoulos, Javier Ernesto-Lebie, Paul Peyrer-Heimstaett, Sylvia Georgiadou, Phivos Skroumbelos, Marilena Sophocleous, Chiara Ferrari, Thomas Frings, Jesus Garate, Wenyuan Peng
Base Built Supervision Team: Fabian Hecker (Team Leader), Barbara Bochnak (Team Leader), Tomasz Starczewski, Kwanphil Cho, Bruno Pereira, Dimitris Kolonis
Hotel and Apartment Interior Design Team 1:  Reza Esmaeeli, Bozana Komljenovic (Project Leads), Laura Micalizzi, Emily Rohrer (Senior Interior Designers), Veronika Ilinskaya, Eider Fernandez Eibar, Stella Nikolakaki, Bruno Pereira, Raul Forsoni, Thomas Frings, Chrysi Fradellou, Spyridon Kaprinis, Alexandra Fischer, Hendrik Rupp, Vivian Pashiali, Sofia Papageorgiou, Carlos Luna, Christos Sazos, Kwanphil Cho, Andri Shalou, Ben Kikkawa, Melhem Sfeir, Faten el Meri, Eleni Mente (Landscape Designer)
Hotel and Apartment Interior Design Team 2:  Alessio Constantino (Project Lead), Sonia Renehan (Senior Interior Designer), Afsoon Es Haghi, Zsuzsanna Barat, Ekaterina Smirnova, Chafic Zerrouki, Nessma Al Ghoussein, Christina Christodoulidou
Bespoke Furniture Team: Maha Kutay (Project Director), Margarita Valova, Reza Esmaeeli, Raul Forsoni, Bruno Pereira, Carine Posner, Filipa Gomes
Consultants
Project Management: Gleeds [London], Omniyat [Dubai]
Local Architects: Arex Consultants [Dubai], BSBG [Dubai]
Structural Engineers: Whitbybird [London], BG&E [Dubai]
MEP Engineers: Clarke Samadin [Dubai]
Façade Engineers: Whitbybird [London], Agnes Koltay Facades [Dubai]
Lift Consultants: Adam Scott, Roger Preston Dynamics [London], Lerch Bates [Dubai]
Fire Engineering: Safe [London], Design Confidence [Dubai]
Acoustic Consultants: PMK [Dubai]
Traffic Consultants: Cansult Limited [Dubai], Al Tourath [Dubai]
Lighting Consultants: Tim Downey, Isometrix [London], DPA [Dubai], Illuminate [Dubai]
Interior Consultants: HBA [Dubai]
Security Consultants: Control Risks [Dubai]
Kitchen Consultants: MCTS [Dubai], AV Consultants EntireTech [Dubai]
QS Consultants: HQS [Dubai]
Main Contractors
Facade Contractors: Brookfield Multiplex [London], Alu-Nasa [Dubai]
Hotel Operator: Melia Hotels
All images © Laurian Ghinitoiu
> via ZHA
