Submitted by
Snøhetta Completes ASI Reisen's Headquarters Wrapped By "Green Curtain" Of Climbable Plants
teasere-55-.jpg Architecture News - Aug 28, 2020 - 12:19 2180 views

Norwegian studio Snøhetta has completed a new headquarters of international trekking and adventure travel company ASI Reisen in Austria.
Named ASI Reisen Headquarters, situated in Natters, just south of Innsbruck, Austria, Snøhetta created an open office concept combining timber frame construction with solid wooden elements to optimize material use and allow for the greatest amount of open floor plans.
"This new timber building with an open office concept offers several solutions that will enable the long-term low environmental footprint of the office space," said Snøhetta in its press release.

Snøhetta is inspired by a symbiosis between nature and humanity, the design concept was developed together with ASI Reisen’s employees and the design team from Snøhetta.
The building is surrounded by a lush exterior and the four-story timber structure is wrapped by a "green curtain" of climbing plants growing on a suspended metal frame that covers the blackened wooden façade, ensuring the building blends harmoniously into its verdant forest surroundings.

"With its resource-saving timber construction and sophisticated sustainable energy concept, the new ASI headquarters marks an inspiration for responsibly constructing our homes and office spaces for the future," said Patrick Lüth, Managing Director of Snøhetta’s studio in Innsbruck.
"At the same time, the new office space offers a pleasant and modern working atmosphere for its employees."
The lush facade is composed of 17 different warm weather and evergreen species growing in big planters, this green curtain also serves as a glare shield and for shading the generous glass surfaces.

On the western side, the employees can use this metal frame as balcony.
The 118 climbing plants change the appearance of the façade throughout the year and thus also adapt to seasonal thermal insulation needs. The microclimate created by this green buffer zone reduces the energy required for cooling the building.

For the facade, Snøhetta used a traditional Japanese method of wood preservation, which is known as "yakisugi". "Slightly charred and thus carbonized, the façade is both waterproof and durable without the need for further painting, while also protecting against insects," according to Snøhetta.
The basement and the building core are made of reinforced concrete. Wood was also used for the mullion-transom-façade, the windows, floors and acoustic panels.

Rainwater from the roof is collected in an underground cistern and feeds the automatic irrigation system for the plants on the façade and the garden.
Together with the 1,215 new plants in the open space consisting of 73 local species, the green façade also contributes to local biodiversity, ensuring that the building is a good neighbor to its human and other-than-human communities.

Snøhetta created green interior solutions
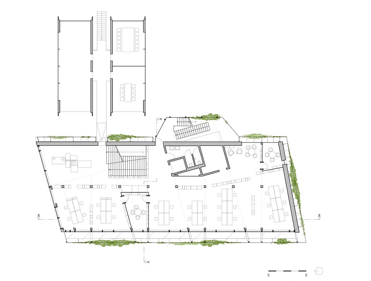
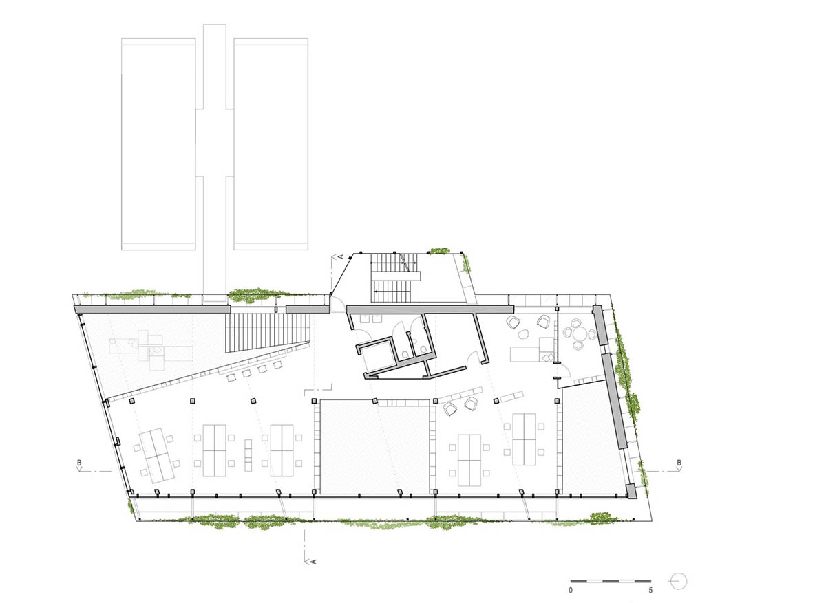
The open-plan office accommodates 65 employees of the company but can be flexibly adapted to future needs if required. Gallery spaces create a large, open and flexible office space, including a variety of individual workplaces as well as communal areas.
Generous glass surfaces offer panoramic views of the surrounding mountains and forests, and a large staircase and a double-height foyer create a welcoming space for visitors. Affectionately called Base Camp, the lobby is a point of entry where the history of the company is presented on large wall panels.

The bright and welcoming atmosphere of the building interior is emphasized by the use of light timber as the main material choice. Employee comfort is prioritized through the inclusion of communal spaces such as meeting niches and rooms, a relaxation room, a cafeteria, showers and changing rooms.
Shelves abundant with plants provide a visually pleasing subdivision of the different working zones and offer storage space as well as informal workspaces for reading and writing. A bridge connects the new building with an existing building which includes meeting and relaxation rooms.

The office has optimized energy concept
To achieve optimal results, Snøhetta tested and adapted the energy concept of the building by using a thermal-dynamic building simulation.
"A reversible air-water heat pump system (40 kW) heats and cools the building via underfloor heating or cooling," added Snøhetta.
"Sensors measuring room temperature, humidity, CO2 and wind, control the natural ventilation using thermal lift and wind pressure conditions to circulate fresh air through the building."
"The constantly monitored room climate then regulates how wide and how long the ventilation flaps are open. The roof is covered with PV panels, and the electricity generated partly covers the power consumption of the building," the firm continued.

As the studio highlights, "by offering solutions that will enable the long-term low environmental footprint of the office space, this flexible and open office space over several floors constitutes a healthy and enjoyable working environment for its users."
Snøhetta's building is tailor-made for the needs of ASI Reisen and reflects the values of the company in an intuitive and generous way.






Site plan

Ground floor plan

First floor plan

Second floor plan

Section

Section

Section

Project facts
Location: Natters near Innsbruck, Tirol, Austria
Architecture, interior design, landscape architecture: Snøhetta
Client: ASI Reisen
Completed: 2019
Structural engineers: Tragwerkspartner, Innsbruck
HVAC, building simulation: Alpsolar Klimadesign; Innsbruck
Site area: 2.027 m2
Built-up area: 347 m2
Gross floor area: 1 548 m2
Floor area: 1.389 m2
Building volume: 5.469 m3
All images © Christian Flatscher
All drawings © Snøhetta
> via Snøhetta
