Submitted by WA Contents
nea studio's cocoon-shaped residence in Long Island acts as a "private shelter"
United States Architecture News - Oct 14, 2019 - 13:56 11436 views

New York-based architecture practice nea studio has completed a rounded residence in Long Island, New York to act as a "private shelter" achieving the thermal comfort inside.
Named Cocoon House, the small residence has been designed as a half opaque and curved house facing its neighbors to the north and west, and half crystaline and transparent facing the east and south.
Described as "a solar house", the residence is LEED certified, using local building materials, as well as passive heating and cooling strategies.

"This rounded enclosed half of the house provides shelter and privacy. The other glass side of the house, facing south, takes in ocean breezes and open views," said nea studio.

To achieve sustainable strategies, the architects used cedar shingle cladding that blends in with the architectural material palette of the historic neighborhood.

By tuning in to given site conditions, and with the help of environmental technologies such as photovoltaic panels, the architectural design serves both the environment and wellbeing.

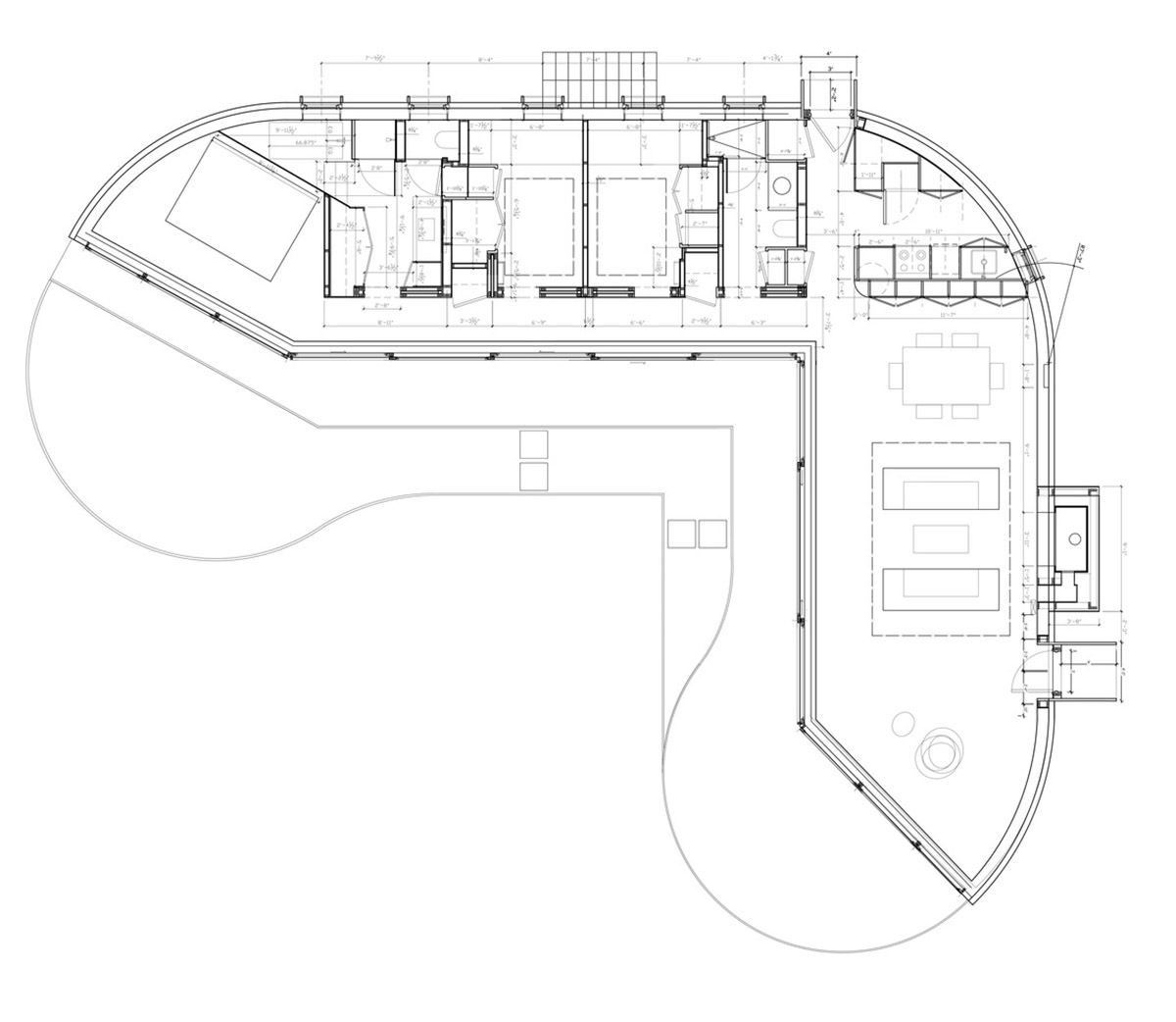
The 16-foot-high (4,87-metre) Long Island cottage is split in two: "cocooned" into a soft opaque shape that provides privacy, and transparent and crystalline to allow for views onto an undisturbed landscape.

Its L-shaped 1,730 square foot footprint is shaped by the legal restriction to build at a 150-foot radius from the wetlands and to keep a 35-foot distance from the adjacent properties.
"Luckily, the view of the greenery towards the ocean faces south and east, so that the southern glass façade provides both views and passive heating gain," added the architects.

The thermal masses of the thick northern/western walls, supported entirely by a timber structure, keep away humidity and retain heat while providing privacy. The large unbroken sliding doors connect inhabitants with the smells, feel and sounds of the garden and ocean in the distance.

In a structure that partakes in the natural landscape, a comfortable temperature is primarily achieved through passive strategies. The sliding doors open to catch prevailing southern breezes from the Atlantic Ocean that temper the heat in the warmer months.
In the winter the glass facade collects heat from the southern sun, and in the summertime, interior shades cut 50 percent of the solar heat gain.

"The sensual experience of the sun in a structure that is half opaque and half exposed guides the framework of the design," explained the architects.
"In the half of the cottage that is crystalline and transparent, sunlight filters through the translucent colored skylights reflect off of the water cistern and enter through the glass facades."

The skylights above the hallway of the bedroom wing are based on the color theory of Goethe, used by J.M. William Turner in his 19th c. paintings of sunlight above water.
The colors range from vermilion red, which signals sunset and rest, above the master bedroom, to deep yellow, which signals zenith and activity, nearest the living room.

Geometric patches of colored sunlight from the skylights and glimmering water reflections from the reflecting pool/cistern project onto the interior thick white ovoid back wall, which is punctured by just a few small windows.

The changing daylight on the round projection screen connects to solar rhythms throughout the day, directing attention to biorhythms in the passing of seasonal and diurnal cycles, marking hours through slowly moving light patches.
"It’s meant to serve as a cinematic screen, its round shape abstracting the play of light and shadow, cocooning the interior like an ocean wave with the light hitting its surface," according to the architects.





















Ground floor plan
All images © Caylon Hackwith
All drawings © nea studio
> via nea studio
