Submitted by WA Contents
gmp Architects wins competition to design Bavaria’s State Archives in Kitzingen
Germany Architecture News - Nov 05, 2019 - 16:02 11559 views

The architects von Gerkan, Marg and Partners (gmp), in cooperation with landscape architects Capatti Staubach, were announced as winners of the competition for the design of the new building for Bavaria’s State Archives in Kitzingen.
Of the 80 practices that had originally applied to take part, 25 were admitted to the competition. The new State Archive is intended to provide facilities for scientific work and also to be available to visitors and Kitzingen citizens. This meant that a holistic design concept was required that also includes the surrounding terrain with its proximity to the old city.

South perspective © moka-studio GbR
The planned archive building is located in an exposed position on a sloping site to the north of Kitzingen’s old city and benefits from views across the Main valley. The building is placed on a plinth and divided into three volumes that nestle into the landscape like sculptures and, owing to the small-scale detailing, fit well into the panorama of the adjoining old city.
Two cubes with a square footprint accommodating the archive are linked by a pavilion-type horizontal building volume. The continuous glazing of the entrance zone and the first floor opens the building to the surroundings, whereas the facades of the archive areas have no openings.

View from the Main River (model photo) © gmp Architects
The reddish/cream-colored sandstone of the new building places it into its green environment as well as that of the urban context. Visitors to the freestanding building are guided to the forecourt in the west, where the main entrance is located. The public areas are located at ground-floor level, including an events room with a view towards the south and a reading room that is oriented towards the Main River to the east and south. The offices have been arranged on the second floor and receive daylight via continuous fenestration bands. The archive itself has been placed in the upper floors, as well as in the plinth and basement stories.

Site plan © gmp Architects
From the viewing terrace at ground-floor level an open staircase leads to the surrounding urban park landscape. The design by landscape architects Capatti Staubach accommodates the existing topography with its 18 meter variance in height, providing a network of easily negotiable pathways, some of which are barrier- free.
The new building will be accessible from three sides from the Main River to the east via a serpentine pathway with a shallow gradient, from the south via a footpath with bridge to the adjoining site of D.-Paul-Eber Middle School, and from the west via the forecourt and main entrance.

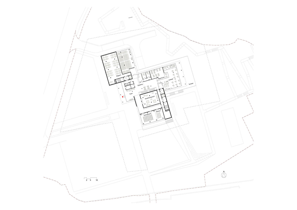
Ground floor plan. Image © gmp Architects

First floor plan. Image © gmp Architects

Plinth floor plan. Image © gmp Architects

Section in east-west direction. Image © gmp Architects

Section in north-south direction. Image © gmp Architects
Project facts
Competition: 2019 1st prize
Design: Meinhard von Gerkan and Nikolaus Goetze with Dirk Heller
Project Lead: Karen Schroeder
Competition Team: Chen Xiufu, Holger Schmücker, Marcus Tanzen, Jule Henning, Christoph Berle, Feng Cai, Vanessa Rodrigues Alves
Landscape Architecture: Capatti Staubach Landschaftsarchitekten
Client: Würzburg state building department
GFA: 12.300 m2
Top image: West perspective with entrance © moka-studio GbR
> via gmp
