Submitted by WA Contents
Marià Castelló Architecture combines family program in three monolithic volumes on Formentera island
Spain Architecture News - Mar 06, 2020 - 10:14 12699 views

Formentera-based architecture studio Marià Castelló Architecture has combined a family program in three monolithic and protruding stone volumes that are situated on top of an excavated base on the Formentera island in Spain.
Called Bosc d’en Pep Ferrer, the house is located in Bosc d’en Pep Ferrer, the traditional toponym of a large plot located next to the beach of Migjorn, on the south coast of the island of Formentera.
This territory has a place that unleashes the desire to inhabit an oneiric view, where the horizon is only cut by the beautiful silhouette of the Pi des Català Tower, built in 1763.

The language of these three volumes is so strong that they reveal themselves as sculptural element based on an effortless beauty in this untouched nature. They have only focus on the rocky island with their pure form, while allowing maximum flexibility in between the volumes.

"The project focuses on the duality between the telluric and the tectonic. The heavy and the light. The earth and the air. The handcrafted and the technological. Compression effort and traction resistance," said the architects in their project description.
"The rock, which comes to the surface in the chosen place, has been carved as if it were a sculpture, offering a cavity reminiscent of the ‘marès’ stone quarries. A whole space materialized with a single stone. Monolithic. Megalithic. Stereotomic."

Described as "a sensitive intervention" on the plot, the house was designed for a family and its program is divided into three light modules built in dry construction systems and a cavity made by subtraction of material on the lower floor.

This longitudinal disposition gives place to full-empty successions, patios, connecting walkways, transverse views and a place created by time and discovered by surprise: a natural cave in the main access courtyard, which was integrated to the Project during the process of construction.

The structure is easily comprehensable and manifests itself in three stratums with ascending levels of precision: the lower floor expresses the obvious absence of containment walls added to the rocky layer, as well as the appearance of a small concrete structure that regulates the upper level of this floor and constitutes the support platform of the ground floor.

On the upper floor, as if it were a real-scale scale model, the double-supported set up of the structure becomes evident from the inside, where it has been left seen in most cases. Here a single element (cross-laminated wood pannels) cluster several functions: structure, closure and interior finishing.
The superior quality of the used materials and their unions has played an important role in the process of creation and realization of the project. Bioconstruction criteria has given preference to natural materials and if possible from the construction place: sculpted rock, crushed gravel from the excavation, capri limestone, pine and fir wood, recycled cotton panels, white macael marble, high permeability silicate painture, etc.

All this has reverted to hygroscopic enclosures which are permeable to water steam and guarantee pleasant and healthy indoor environment, while at the same time require less energy efforts for the proper bulding functioning.
At the environmental level, the design provides passive bioclimatic systems of proven effectiveness in this climate, as well as water self-sufficiency thanks to a large volume rainwater cistern that reuses rainwater.

"Conceiving the detail in Architecture is an intellectual exercise necessary to move from the abstract conception of the project to the physical reality of the work," added the firm.
"As if it were an x-ray, in detail the most intimate decisions of the architect, their values, priorities and aspirations are concentrated."

There are works of such conceptual clarity that could be summarized in a single constructive detail. Other buildings, on the other hand, show the lack of consideration in the matching and the relationships between the different materials, as if paying attention to these aspects was something of third order, without importance.

The clarity and suitability of the constructive detail is for the Architecture a promise of happiness: It represents the creation of laws and concepts whose continuous meditation shows the way in the decision making during the whole process.

With the detail the body is defined but also the soul of the architectures, thus establishing intimate relationships with its inhabitants.

The cult to constructive detail is also a guarantee of executing a building with few surprises, problems or economic deviations. In my modest opinion, there is no Architecture where there is no detail, because this is in itself the embryo of the constructive process.















Site plan

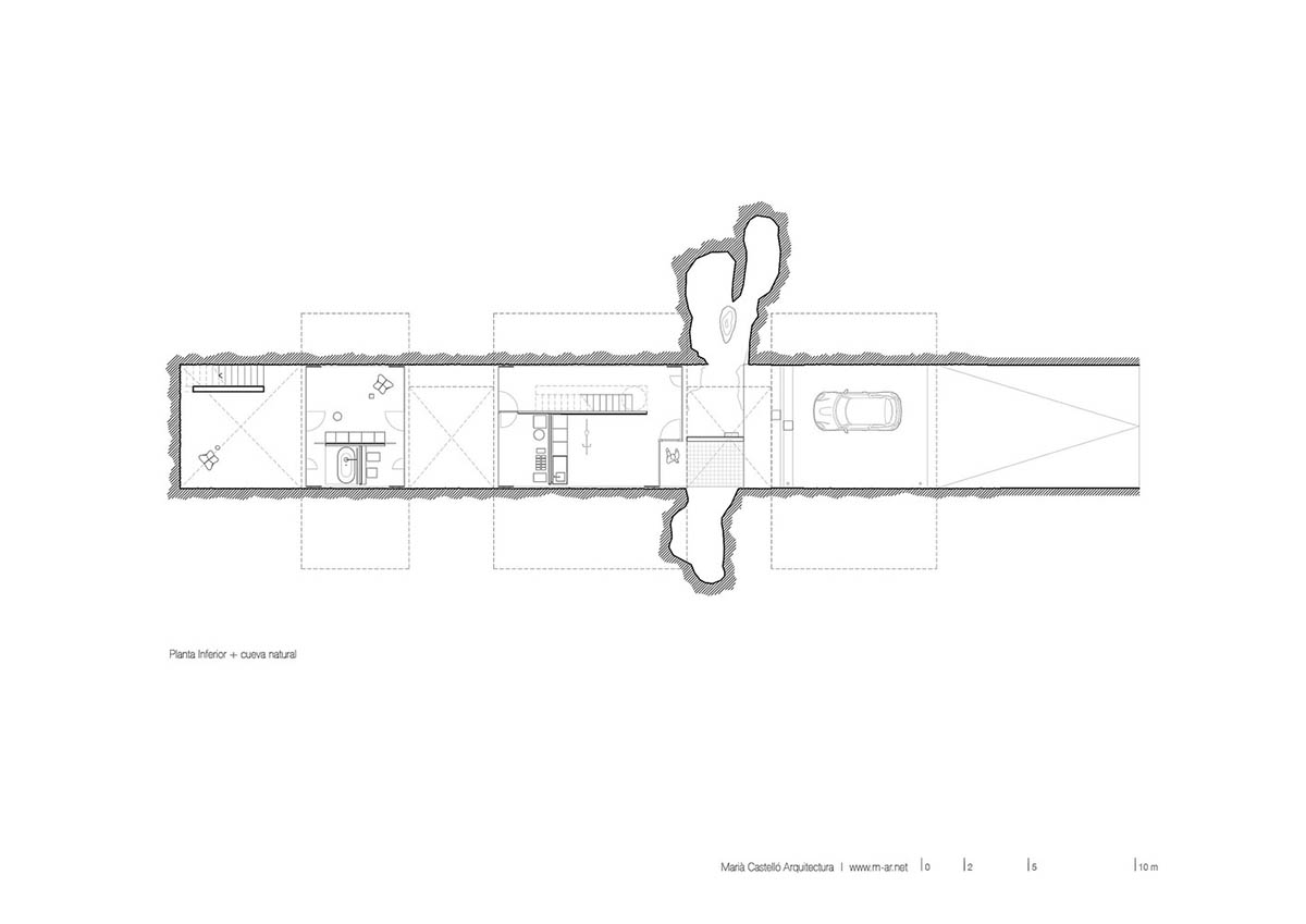
Underground floor plan

Ground floor plan

Rooftop floor plan

Section

East and West elevation & Sections

South elevation and section D

North elevation and section E
Project facts
Project name: Bosc d’en Pep Ferrer
Architects: Marià Castelló Architecture
Location: Playa de Migjorn. Formentera, Spain
Size: 243,59 m2
Date: 2017
Building Engineer: Agustí Yern Ribas
Structure: Miguel Rodríguez Nevado / Ferran Juan
Installations: Javier Colomar Riera
Collaborators: Marga Ferrer, Natàlia Castellà, Lorena Ruzafa y Elena Vinyarskaya
Builder: Motas Proyectos e Interiorismo S.L. / Luis Tulcanazo Castro / Antonio Serra Requena / Foreva S.L.
Subcontractors: iCarp Valencia S.L. / Velima System S.L. / Astiglass S.L. / Singularglass S.L.
All images © Marià Castelló Martínez
All drawings © Marià Castelló Architecture
